两人住150㎡,砸65W只做一室,拒绝传统配置:不瞒你说,这对夫妻不怕宅家隔离



这对从欧洲留学回来的小夫妻,真的太契合了。
设计师初见两个人的时候,发现他们的身上,都散发着浓郁的人文气息、举止温文尔雅,虽然瘦瘦小小的,却像是一缕清风,声音也温柔至极。
但相处过后就能发现,其实两个人的内心中,都住着非常有趣的灵魂,他们热爱着一切新奇的事物,生活中随处可见的小事物,也能被抓拍得很是可爱。

两只小猫在阳台处晒太阳,这一幕恰好被屋主拍到了,治愈又美好

冬日里卧室的一缕阳光照进卧室,可爱的猫咪在暖阳下伸着懒腰,又软又萌
而关于自己的家,他们也有着明确的需求,很清楚自己期待什么,想要打造出什么样的居住环境。
两个人都很喜欢西北那种特别质朴,人与自然和谐共生的感觉,也很喜欢南欧那种悠闲随性的生活方式,于是他们对于即将改造的老房子的要求,就是在居住其中的时候,可以尽情享受当下的生活。

同时,他们还坚定地认为,家的定义,就是可以做很多没有意义、但自己觉得有趣的事情。
比如各种拼图,模型,手工制品,乐器……

即使在别人看起来有些消磨时间,但对于这对小夫妻来讲,家嘛,就得能呆住,且能呆得痛快又舒适。
尤其是疫情下的宅家假期,即使足不出户,也不觉得腻味和无趣。


地址:湖北 武汉
面积:145㎡
花费:65万(不含电器)
户型:一室二厅二卫
屋主需求:
交谈之初,屋主藏书颇多,对家里书架收纳的需求特别大,且希望把所有喜爱的物品展示出来。
因此,设计师设计了大量的展示书柜,每个区域书柜的展示形式也有不同规划,多而有序,这样使用时也会更加方便。
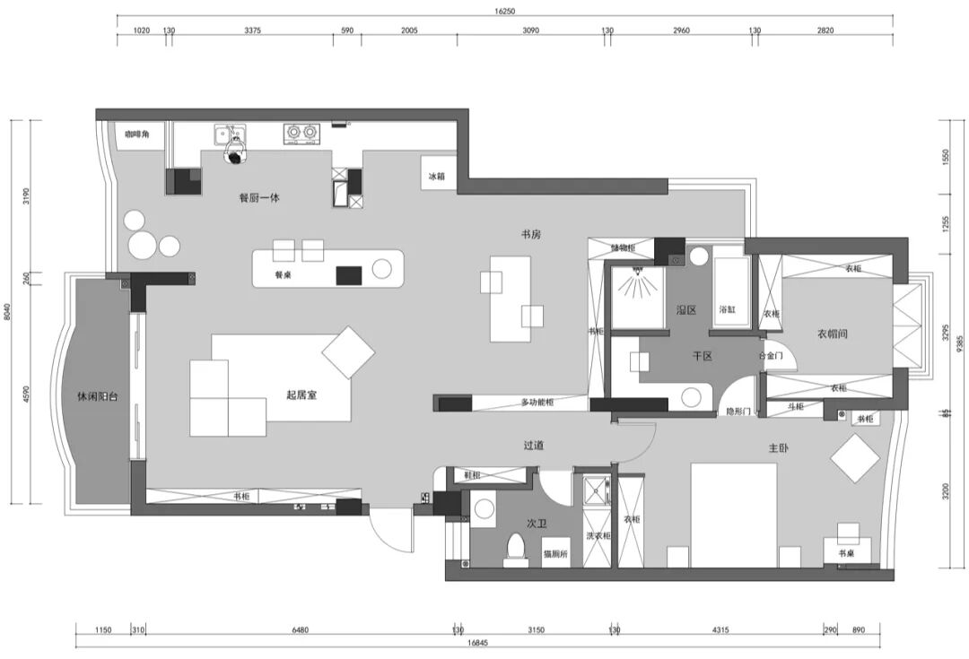
原始户型解析:
1、原厨房空间小,且被柱体分割得十分零碎,无法满足收纳储物需求,整体光线也不通透,餐厅区域挤压书房面积,导致两个区域的使用感都不好;2、主卧无套内卫生间,晚上起夜非常不方便;3、次卧面积小且无法满足基本配置,进门过道黑暗狭长;4、公共卫生间原本的窗户正对楼梯间,老房子因为隐私性完全封闭,导致内部全无采光。

原始户型图
改造要点:
1、拆除原厨房所有墙体,改造成全开放式厨房,阳台归为专属咖啡角,利用原柱体结构制作岛台及餐桌一体化,开放式书房收纳满满,原来的晾晒小阳台过道区作为家政收纳柜及猫屋躲避区,让猫咪在家里也有惬意的空间;
2、将次卧并进主卧作为衣帽间,形成一间大套房,增加储物能力,避免产生凌乱感;
3、拆除原本被封的窗户,加高实体墙,缩小至天窗,满足卫生间的采光及通风,天窗的高度也解决了楼梯区对窗的隐私性;
4、居住人口较少,两个卫生间的功能重合,且做了干湿分离。公共卫生间只保留洗手如厕的功能,洗衣房也能与其合并。主卧套间里集淋浴、浴缸和梳妆的功能为一体,大大节省了重复空间,让每个区域都很舒适。

改造后户型图

这是一个典型的无玄关户型。
没有用任何屏风或大柜子遮挡视线,推开入户门,映入眼帘的便是开阔、质朴、充满阳光的大客厅,每天辛苦工作后回到家,就能带来放松、自在的好心情。

一组开放的嵌入式书架摆放在沙发对面,代替传统电视+电视柜。
书架里摆放着各种不同类型的书籍,其中专业的书籍和艺术类偏多,除此之外,还有不少夫妻俩喜欢的小物件,都是他们多年来的积累。
它们承载着特别的故事与记忆,静默地诉说主人的生活轨迹,充满了生活的滋味。

白色布艺沙发虽然尺寸较大,但颜色浅、靠背矮,并不会让整体空间显得拥堵和压抑。
沙发旁,放着一棵大型绿植,枝干与叶子的线条简洁,充满了生命力与张力。

站在窗边看向公区,客厅、书房、厨房没有明确界限,格局开放、动线流畅。
无吊顶、无石膏线,甚至连踢脚线也不存在,简洁的白色大背景下,各种实木家具和少量绿植,为空间带来极其质朴自然的气质与氛围。
有趣的小泥塑娃娃,以及猫咪造型的陶瓷摆件,被精心摆放在各个角落,无论站在哪个区域,都有机会收集到一些主人的故事。

客厅连接着一个户外露台,这里也是整个家里最具有大自然气息的地方。
户外躺椅+小木桌,将自然元素引入室内的同时,也营造了度假休闲的惬意感。

屋主提供

客厅背后是一体化的开放式餐厨,当女主人在厨房忙碌时,也能够与餐厅中的男主人交流。

木质餐桌成为客厅与厨房的分界线,它与旁边不能打掉的梁柱连接在一起,最大限度节约了活动空间,让生活动线更加便捷。

利用原柱体结构制作岛台及餐桌一体化的设计,形成了实用又美观的U型厨房。

厨房外的阳台,布置成咖啡角。
对于无比爱喝咖啡的夫妻俩来说,有一个属于自己的咖啡角,让每一个清晨都从缕缕咖啡香气开始,简直太美好了。

屋主提供
挨着墙角放一张边桌,摆上郁金香,搭配搁架和餐椅,情调与舒适感兼具。


屋主提供

开放式书房中,有一面巨大的L型书架,它由自购的老木头层板和木工师傅现场定制的框架组成,每一个尺寸都得到了精细把控。
同时,这个围合书架,既能收纳藏书,又能展示装饰品,拼图、模型、手工制品、字画、盆景都能摆放在上面。


沿着走廊走到最深处,便能抵达明亮温柔的大地色卧室。
暖色系粘土背景墙,再配上藕粉色被子,柔软又舒适,让人不由自主就能进入美梦中。

梳妆区布置在落地窗旁,这里采光很好,女主人可以坐在这里慢慢画一个美美的妆。
左侧还摆放着一张躺椅,成为简单的居心地,闲暇时坐在这里晒太阳,别提有多舒服了。

从梳妆台看向卧室一角, 柔和的灯光营造出温暖放松的氛围, 保证一觉睡到天亮。


主卫采用了特殊的工艺,浴缸以下包括地面全部采用的微水泥,这样让整个卫生间留有空气感的同时,光脚踩在地上也有更好的触觉。

改造完成后,老房焕然一新,年轻的小夫妻也觉得满意极了。
主卫里的特殊工艺、书房里的开放式大书架、卧室房门上暗藏的猫洞......家里的每一个角落,都暗藏着小惊喜。

如今,夫妻俩在新家中已经住了一段时间。
无论是屋外青蛙“咕咕呱呱”的叫声,还是屋内暖黄的灯光与书籍,都能让他们感觉到舒适又自在。
两人一起阅读、看电影、画画,即享有各自独立的领地,也不完全隔绝,这种若隐若现的陪伴带来一种安全感,也像一种生活的白噪音,能让人沉静在专注里。

最后,再总结几个能让家越住越舒服,即使疫情期间足不出户,也能越宅越上瘾的小tips:
1、既要布置能让家人待在一起的公共区域,又要有各自独立做事的私密空间;
2、厨房尽量宽敞,让居住者保持愉悦的烹饪心情,即使不叫外卖,也能吃到好吃的食物,通过满足自己的味蕾,带来好心情;
3、卧室色调尽量简单素雅,烘托沉静安定的睡眠氛围;
4、储物空间充足,让家永久保持整洁有序;
5、收纳空间有藏有露,杂乱的物品能够被藏起来,露出自己喜欢的东西;
6、做好室内保暖,抵御漫长的寒冷冬季;
7、灯光柔和且要具有层次感,避免单调冰冷之感;
8、学会为平淡的生活制造仪式感,比如和家人一起小酌一杯酒,或泡杯咖啡慢慢喝,让家也能拥有咖啡店或小酒馆的氛围感。
素材及图片由桃弥空间设计提供
看直播
成都音乐故事叙述计划,5月18日晚19:00直播专场,此刻,等你来。

看视频
他是从大凉山走出来的“音乐人”,如今重新回故乡,发起“荒原计划”,用图书、戏剧、音乐和诗歌的艺术与精神力量,让世界听到彝族的声音
精彩文章推荐



到顶部