广州45㎡“老破小”翻新:屋主为方便出租,低预算改造出精致效果


前阵子,广州一对夫妻买下了一套仅有45㎡面积的“老破小”户型,这并不是夫妻俩要住的,而是打算收拾收拾租出去的房子。
无奈房子的状况实在太差,所以夫妻俩决定简单进行一次改造,然后再出租。

话不多说,一起来看看这套小房子改造前后的样子吧~
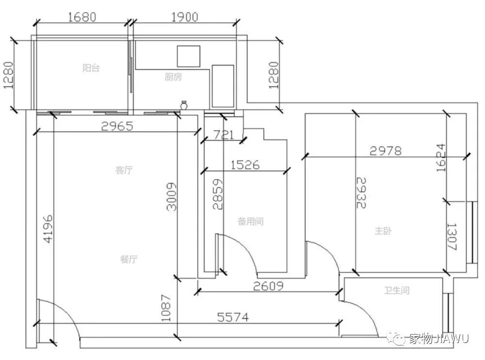
户型基本情况

不得不说,其实这套房子的户型还算不错,虽然面积不大,但整体户型方方正正,空间利用也方便一些。
只不过屋内的装修实在是有些太过陈旧,好在经过一番改造,原本的破旧感一扫而空。
改造前后对比
为方便大家看得更直观,我们直接来对比一下各个区域改造前后的样子。

▲客餐厅改造前

原本家中的客厅和餐厅就是一体化的空间,只不过光线昏暗、面积狭小,改造之后,增加了吊灯、壁灯等各种现代化的灯饰,光线明亮很多。
原本夫妻俩是打算装修浅色系的,但后来还是感觉黑色更能快速提升高级感,所以一些灯饰、门框之类的地方都选用了黑色,搭配家具装饰,呈现出一种现代轻奢的质感。

不过有心细的小伙伴可能看出来了,为了降低装修预算,原本老旧的地板并没有进行更换,稍微显得有些突兀,不过考虑到是出租房,倒也还能接受了。

▲入门的区域

家里并没有玄关的空间,一进门右手边的通道通往卧室区域。
但之前的白色墙面显得有些脏旧,为了贴合客餐厅的整体设计,夫妻俩特意用相通的饰面装饰进门的部分,让空间看起来更加和谐统一。

虽然在镜头下看着家里的面积还不错,但实际上客餐厅的区域真的很小,能在低预算前提下做到这种程度已经算是不错了。
主卧室和次卧室前后对比

▲改造前的主卧室

原本的主卧室虽然已经被搬空了,但还是难掩那种破旧衰败的感觉,所以,在这次的改造过程中,主卧室也是一个重点区域。
当然,破旧的衣柜、贴满贴画的门扇,也需要统一更换掉。

▲改造后的主卧室

主卧室改造后,延续了那种现代轻奢风格的设计,同时,破旧的衣柜被换成了通顶式的设计,与书桌相连,行成一体式的空间,也节省了床头柜的位置。
靠墙摆放的床铺虽然不算大,但满足基本的睡眠需求还是不成问题的。

▲次卧改造前

次卧改造前后差别非常大,改造前的次卧其实相当于一个杂物间或者说是小书房,里面摆放了一张书桌,堆满了各种生活杂物。
而改造后,用一体式榻榻米地台的方式,增加了收纳和睡眠空间,空间利用合理很多。
厨房和卫生间改造前后

▲厨房改造前

改造前的厨房,最大的问题就是橱柜陈旧、收纳空间不足,而改造后却完美解决了这个问题。
在原有台面基础上进行翻新,将老旧的台面板换成人造石材料,配合新装的烟灶、吊柜,既满足了收纳,又提升了视觉效果。

▲卫生间改造前

巴掌大的卫生间改动并不大,由于空间所限,且花洒位置的“特殊性”,所以并未进行干湿分区,这确实是一个弊端。
改造之后,也只是简单加入了洗手池柜、更换了旧马桶和花洒,当然,比原来看起来干净多了。
到这里,这套老破小的改造就算是完成了,不知道大家觉得这次的改造还算成功吗?~
(图片来源于网络,如有侵权立即删除)
到顶部