带四驱的全顺房车,方舱设计越野性能强悍,配3.5T动力和猛禽一样




Hello,大家好~
说起福特全顺底盘的房车,大家最先想到的是国内的一些小尺寸的B型房车,另外福特全顺底盘几乎都是清一色的两驱模式,不过最近,国外有一家改装公司AEONrv,发布了一款全新的四驱福特全顺底盘的房车,而且带有强悍的越野功能,我们现在一起来看看吧~


扫码报名看车
从外观上就不难看出来,和我们日常所常见的福特全顺底盘房车不同,同为越野房车,但是这辆车采用前驾驶室与后生活区分隔的设计,外墙板采用绝缘玻璃纤维增强板,具有冬暖夏凉的作用,另外全车长度为6700mm,而且为了保证其优越的越野性能,全车采用了BFGoodrich全地形T/A KO2轮胎,并且加高了离地间隙,并且最重要的是对底盘性能进行了四驱升级处理,所以足以保证它在进行越野的时候可以顺利的通过。

动力上,这款车搭载了和福特猛禽相同的动力总成,3.5T V6 EcoBoost发动机,匹配10速自动变速箱,采用四驱模式,最大功率为306马力,最大扭矩可达542N·m,可以说动力十足。

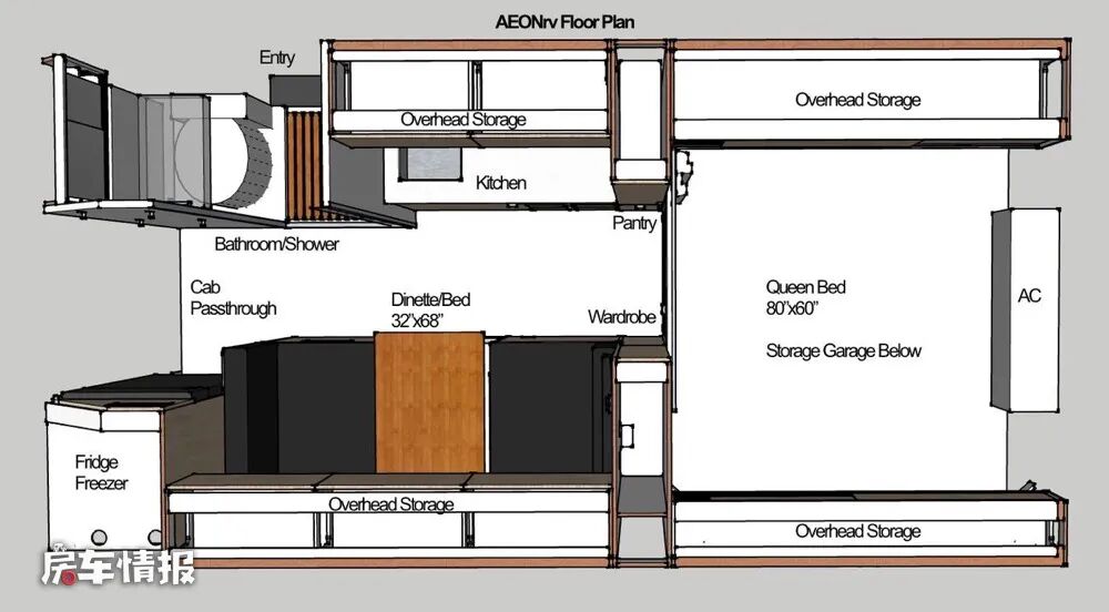
这款车采用右侧上门的方式,内部高度可达2032mm,即便身材高大的人也可以正常的活动,与我们常见的房车不同的是,这款车在刚一进门处就设计了一个独立的卫浴室,马桶、翻折的洗手台盆、梳妆镜等一应俱全。


而厨房区则放置在了乘客门后方,尺寸不大,但是配置还是很齐全的,带有不锈钢水槽、便携式的电磁炉、微波炉,而全车的150L上下双开门冰箱则放置到了乘客门的对面,这样会客区拿取食物会更加顺手方便。

会客区采用的是双人对卡座沙发+餐桌的设计,超大的沙发座椅可以带来非常舒适的乘坐感受,晚上还可以拼接成一张宽度为1230mm的双人沙发床,睡两个小朋友还是可以的。

最后位于车厢尾部的休息区则采用横置床的设计,尺寸达到2030*1520mm,也能够满足两个人的睡眠需求。

电路上,这款房车拥有一套8.2kWh自热LiFePO 4电池组,这套电池组可以通过700W的太阳能电池板和1.5kW的交流发电机为房车进行充电,后期如果有更多的用电需求,也可选择升级到5.5kW/24V的交流发电机;而水路上全车则配备了250L的淡水箱,以及106L的防冻灰水箱。


这款搭载四驱福特全顺底盘所打造的拥有超强越野性能的房车,不仅内部的设计比较出彩,而且水电路系统也比较强大,现在这款房车的基本价格为184500美元,折合人民币约为117.4万元,不知道您觉得这样一款四驱越野房车如何呢?欢迎在下方的评论区和我们分享您对这款房车的见解和看法,如果您想了解更多的国内外房车资讯,请继续关注我们,下期再见~
 


预约看车点击下方阅读原文
到顶部