继续操作前请注册或者登录。

拓家拖挂房车,外观简约却内有“乾坤”,原木豪华配置,睡卧空间充足




拓家房车于2015年开始进入房车界,今年他们从幕后走到台前,结合自身设计研发优势,为大家带来优质的产品。今天小编要给大家介绍两款拓家房车--TJ580、TJ680。
TJ580
这款拓家TJ580房车外观配色上以白色为主,配上“拓家”logo相一致的颜色,简约大气。车身尺寸为5630*2170*2560mm,长度不足六米,高度为两米五左右,车身小巧,通过性也不错。


这款车型采用德国爱科整套进口底盘,配有减震器,可适应较为复杂的路况。房车厢体采用复合结构,强度大,隔音保温效果好。整车总质量为1500KG,整备质量仅为980KG,车体较轻,小车即可牵引上路。


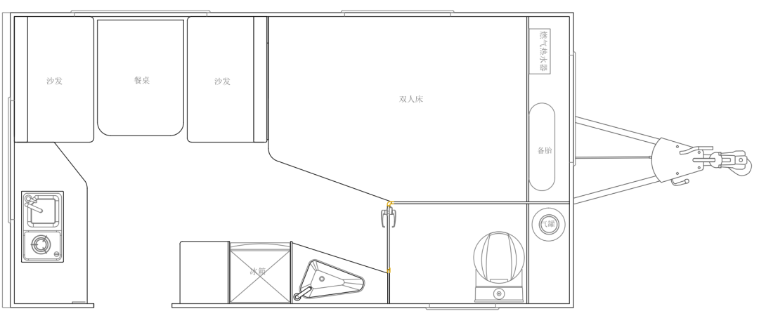
房车内部平面图

会客区位于上车正对面,采用对座式沙发搭配升降餐桌的设计,驻车后可拼床。超大观景车窗视野开阔,上方还配有照明灯,保证了房车内部的亮度。车窗配有窗帘,可保护乘客区隐私;上方是储物吊柜,方便行车途中存取物品。

紧挨着会客区即车头部分是睡卧区,为一张双人大床,床铺周边配有拉帘,可与会客区隔断,形成私密空间。床头配有阅读灯;上方配有储物柜、照明灯,整个睡卧区配置比较齐全,设计贴心。

而卫生间位于睡卧区旁边,采用干湿分离设计。外面是洗漱台,配有洗脸池、水龙头、梳妆镜、照明灯、储物柜;卫浴区内置固定坐便器、淋浴花洒、置物台、储物柜、换气扇等,满足洗浴需求。


最后介绍的是厨房区,位于上车门左侧即房车尾部。厨房区布局较为简洁,配有翻盖式水槽、水龙头、外推窗、窗帘、照明灯、储物柜等,可满足基本的烹饪需求。上车门右侧还配有一台冰箱,可存放新鲜蔬菜;还配有一个小吧台,可放置水果、盆栽等小物品。

TJ680
从外观颜色上来看,拓家TJ680以白色车身为主,搭配红、蓝简约线条,简洁大方。车身尺寸为6335*2335*2560mm,高度两米五左右,通过性比较好。

整车采用铝制复合车身(4层复合结构),轻量化设计,同时也能起到隔音保温的效果。车顶采用FRP材质,保证了车身强度,能够适应冰雹等各种恶劣天气。整车总质量为1500KG,整备质量为1050KG,小车即可牵引。

这款车型基于德国爱科整套进口底盘打造而成,配有同品牌的减震器。房车采用一把钥匙开全车锁的设计,提高了使用的便捷性。

房车外部配有遮阳篷、接水口、市电接口、储物舱等基础配置,功能齐全。

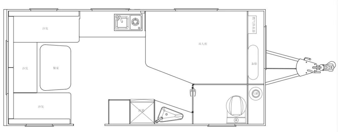
房车内部平面图
A款

B款

今天给大家介绍的是B款内饰布局,车内为原木风格,精致豪华,配置也很完善。会客区采用的是对座式沙发搭配可折叠餐桌的设计,驻车后还可拼成一张临时床铺以供休息。配有超大观景车窗,以及窗帘,保证室内采光的同时也能保护个人隐私。

厨房区位于会客区对面,配有翻盖式水槽、水龙头、外推窗、电源插座、照明灯、冰箱等,满足基本的烹饪需求。上方配有储物吊柜,下方配有抽拉式橱柜,可放置厨房用品以及日常生活用品,空间相对比较充足。

卫生间采用干湿分离设计,在厨房旁边是配有洗漱台、梳妆镜、水龙头、照明灯、储物柜;而淋浴区独立设计,内置固定坐便器、置物台、外推窗、淋浴花洒、换气扇、储物柜等。


该车睡卧空间充足,分为车头的固定双人大床和车尾的上下铺。车头的固定双人床空间宽敞,可以满足两名成年人的睡卧需求。两面观景车窗视野开阔,保证了内部采光;上方是储物柜,可放置衣物等。

车尾是上下铺布局,可睡下两人。床铺周围配有拉帘,可形成独立、私密空间。同时下铺可以翻叠,内部空间可放置自行车等旅行行李。



展会小贴士
2021 RV SHOW 房车首展:
第十四届上海国际房车露营博览会(上海国际房车配件与露营装备展览会、上海国际自驾游与户外休闲用品展览会)
时间:2021年3月5-8日
地点:上海汽车会展中心
电话:400-021-0886(可点击文末的“阅读原文”提前预约领取电子门票,未预约者现场需购票入场)




到顶部