丰田轻卡房车3.0T动力,能坐10人,卫生间变衣柜够有创意!



轻卡房车以空间大,居住人数多受到了很多车友的关注,不过通常外观比较宽大,让人觉得难以驾驭,今天给大家介绍的这款款丰田轻卡房车,内部空间依然很大,不过车辆长度却不足5米,还能满足5大1小的使用需求,到底是如何布局的?我们一起来看一下吧。

这款轻卡房车分为两驱版本和四驱版本,在高度上略有不同,两驱版长宽高分别为4980*1910*2850mm;四驱版本为4980*1910*2900mm,车身尺寸相对于国内房车确实小巧了不少。

这款房车同样采用了轻卡房车后双胎的设计,增加了车辆行驶中的稳定性和承载能力,车尾配有倒车影像保证安全。
动力方面搭载3.0T柴油发动机,匹配6AT自动挡变速箱,分为两驱版和四驱版可供选择。

在车辆右下方储物箱的位置配有空调室外机,这款车辆内部配有一台冷暖家用空调,保证车厢内部的温度。


这款房车带有80L油箱,日常使用需要加注柴油。

接下来进入车内,我们先来看一下这款房车在白天时的布局情况,驾驶室上方是非常宽敞的额头床,后方会客区日常可满足7人乘坐,这款房车核载人数达到10人!(国内房车通常都是4-6座,目前没有更多的座位数供选择。)

在夜晚休息的时候会客区可以变成一张超大的床铺,基本上睡3个人都没有问题。

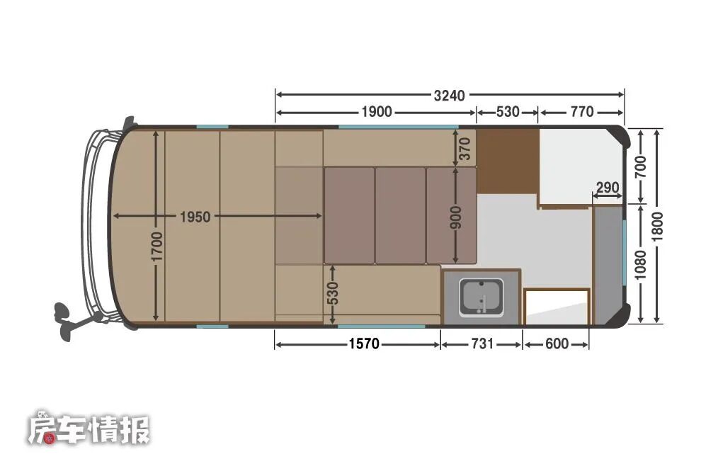
我们进入车内看一下实景图,驾驶室与后方的会客区被木质饰板分开,会客区这里可以同时乘坐6-7人,餐桌是可以拿取的,条型沙发下方还可以作为收纳空间使用,不过中间的通道略小,过人有些费劲。

当夜晚休息的时候会客区这个位置就可以变成一张超大的1900*1800的床铺,睡3个人也没问题,有一种大通铺的感觉。

这款房车采用后上门的形式,在会客区的后面是厨房和卫生间的区域,没想到一款不到5米长的房车内部设计如此精妙,每个细节都很到位。

我们先来看一下厨房这里,左侧是洗菜池,右侧是家用电器,后方是操作台的位置。

洗菜池下方放置了两个10L的水箱,一个清水箱一个灰水箱,水箱都可拿取便于后期清洗。

另外一侧配有微波炉和一台12V 85L的房车冰箱,可以在日常制作一些简餐。

车尾部操作台上下都集成有储物空间,可以放置随身的行李物品,便于收纳。

卫生间为封闭式的区域,地板采用防水材质,不过内部没有配备固定式马桶,厂家宣称如果对卫生间没有需求的车友,这个位置也可以变成一个非常宽敞的储物柜或者衣柜,可以说是一个多功能的选择,这样的设计非常有意思,同时也满足不同需求的车友。

我们再来看一下车内的第二张床铺,这张床铺位于驾驶室的上方,采用抽拉的形式,当需要使用的时候可以把床板拉出,不用时不占空间。

这张顶置床铺尺寸为1950*1700mm,非常宽敞,同样也可以满足3口的使用需求,两侧的推拉窗增加了采光和通风。

在车辆的上方配备有丰富的储物空间,同时顶部还有天窗和换气扇,内部所有灯光均采用LED光源,节省电量。

在车门上方集成车辆电器的控制开关,这款房车在电路系统方面还配有3000W逆变器和400Ah锂电池,同时配有非常齐全的家用电器以保证日常使用。

在行驶中最多乘坐10人,夜晚休息满足6人使用,对于一款长度不到5米的轻卡房车也确实是充分利用了内部空间,那么这款房车目前售价约合37万元,大家觉得怎么样呢?欢迎与我们互动留言,下期再见。


预约看车点击下方阅读原文
到顶部