继续操作前请注册或者登录。

新款丰田4X4房车啥样?四驱系统强大,小两口出去玩烂路随便走




今天给大家介绍一款,由澳大利亚房车公司生产的新型4x4丰田露营车,它依靠着独特的下拉式可扩展帐篷的设计在许多车型中脱颖而出。帐篷挂在后挡板上,提供了一个更加有趣的露营体验。这一设计还为车内会客区留出了空间,可谓是一举两得。这款车采用的是同兰德酷路泽Prado一样功能强大的bus 4x4系统,这是一个专门为在极端严酷条件下驾驶而设计出的一款四驱系统,非常适合酷爱越野的朋友们。


与普通4WD车辆不同,Bus4x4系统专为保证Toyota Hiace的坚固性以及强大的越野能力。Bus 4x4借鉴了兰德酷路泽的零部件。并且还从Prado基础上拉高了低档电子分动箱,从而通过限滑前差速器和锁止后差速器提供扭矩。使134-hp涡轮增压柴油发动机得以释放最大动力。
 
坚固的四轮驱动系统为Hiace提供了应对各种越野路况所需的抓地力,Bus 4x4将其高度提升了110毫米(4.3英寸),以防止因底盘低而容易出现事故。并且还升级了防撞条,通气管和乘客侧遮阳篷等一系列组件。这款车可谓是专门为越野而生产的一款露营车。

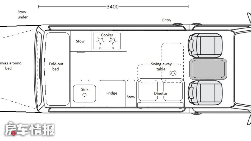
在内部,Bus 4x4使用后帐篷扩展作为基础,努力为其提供更大的使用空间。 弹出式提升门,折叠式地板的设计使空间利用度更高。 帐篷顶通过多条可调节的带子固定在大门上,当不使用时可以拿掉。内饰的设计则一如既往的强调实用性!仪表板也因为车身的关系而变得更加的宽大。大量规则的图形构成了新一代丰田Hiace的内饰,辅以丰田系特有的材质,呈现出了一种日式的设计感觉。由于发动机进行了前移,所以第六代丰田Hiace的前排座椅也不再像老款车型那样高高在上,这对于整车内部空间的通透性大有助益。


厨房分列车内两侧,而不是紧凑的单面厨房区,提供了足够的柜台空间,乘客侧的双燃烧器炉灶和驾驶员侧的水槽以及110升冰箱共同构成了露营车内的厨房,给热爱烹饪的朋友们留下大展身手的空间。

客厅位于中央厨房前面,将可移动餐桌装好,就可以和沙发长椅一起营造出一个舒适的就餐区。 桌子在不使用时可旋转90度,同时可以拿走收起,这样的话前部的使用空间就会更加宽敞。


在浴室的设计上,它为露营者配备了便携式洗手间和外部淋浴间。在基础硬件方面,配备有电池,太阳能板和电池管理显示器,水暖系统里有59升的淡水箱和水泵。
 
这张图片介绍了Hiace的内部结构。

丰田给予了大家定制专属于自己的露营车的机会,因此从今年初开始,这种特定的Hiace露营车的建造没有价格标签。一辆配备4x4转换系统和保险杠,遮阳篷等外部部件的Toyota Hiace的起价约为52万元。如果还对会客区和浴室有改装想法的朋友们,Hiace 也能满足您的需求。
 
总结来说,这是一款综合性能十分不错的日系露营车,无论是商用还是用于自己平时的出行游玩,都是一个很不错的选择。



预约看车点击下方阅读原文
到顶部