“女魔头”扎哈·哈迪德的鬼斧神工



牲命记编案:第一眼看到有“建筑女魔头”之称的扎哈·哈迪德的涉及作品,就被那种流线性设计惊艳到。在此整理一些扎哈·哈迪德的作品集以及纪录片,希望大家喜欢。
也许正因为我的大胆,而非作为女性的本分给我了这样的意志力取得成功,不过,我从来都是很坚强果断的。我现在取得了成功,但这需要一直以来艰苦的努力。”
 —— 扎哈·哈迪德
扎哈·哈迪德(Zaha Hadid 1950年—2016年3月31日),1950年出生于巴格达,伊拉克裔英国建筑师。2004年普利兹克建筑奖获奖者。
扎哈留给世界的瑰宝仍然在其事务所的,努力下照常“崛起”,并持续不断地散发着这个建筑“女魔头”,对于当代设计美学的影响力……

以“打破建筑传统”为目标的扎哈
一直在实践着让“建筑更加建筑”的思想
尽管她已经离开了我们
并彻底告别了她最钟爱的建筑事业
但不可否认的是
她的许多设计手法和观念
仍然会对后人产生重要的借鉴意义
扎哈留给世界的瑰宝仍然在其事务所的
努力下照常“崛起”
并持续不断地散发着这个建筑“女魔头”
对于当代设计美学的影响力
今天我们通过四个项目
一起来了解扎哈式经典奢宅
感受扎哈定义的豪宅新美学

01
    520 West 28th Street  
纽约曼哈顿奢华公寓
项目地点:美国纽约曼哈顿
竣工时间:2017年
这所公寓用纽约曼哈顿切尔西区的地址命名:520 West 28th Street,项目紧挨着高线公园,11层高的建筑只有39个私人住宅。
外建筑▼

一改纽约住宅拥有坚硬棱角的传统印象, 520 west 28th 公寓有着充满动感的弧线造型,利用曲线将窗户与阳台连接在一起,透明的玻璃成为建筑结构中游离的界面,将原本生硬的构造变为唯美的装饰。


蜿蜒连接的金属曲线在立面上延伸,形成带圆角的阳台和露台。分层设计的理念,为整个公寓定义了不同的生活空间。


自然的建筑褶皱来自于汽车的部件,凹凸不平的面在光影的作用下,显示出独特的板材细节。



左右滑动查看更多
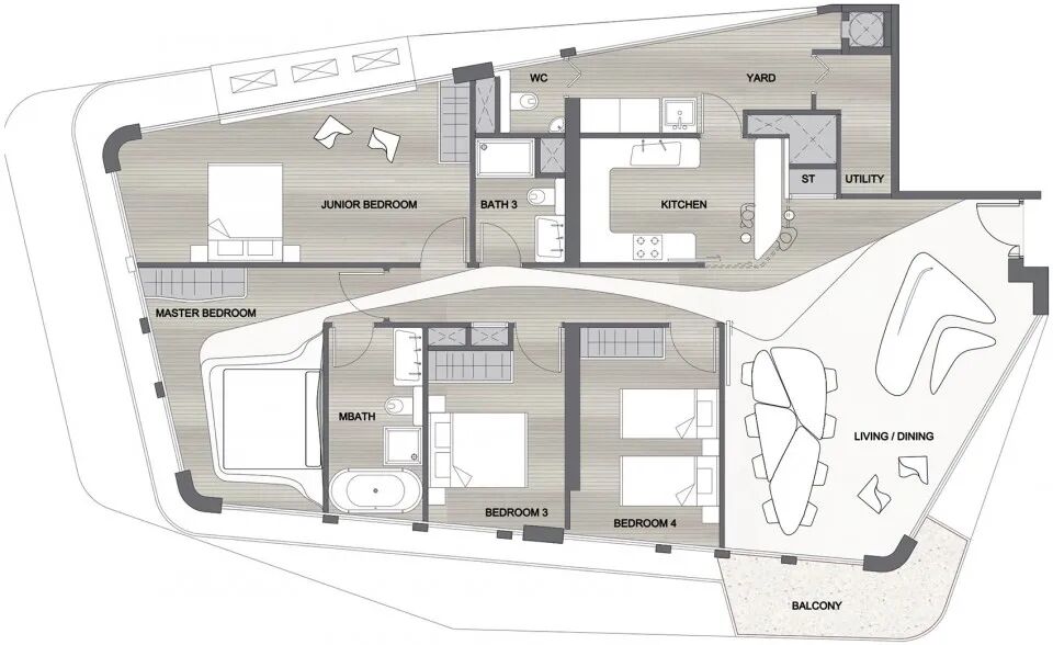
项目顶层复式的样板间,有着三层的设计。

先看一下平面图,637㎡ 平层公寓,另有237㎡ 的屋顶及阳台,5个卧室,6个浴室,公布的售价为5000万美金,约合人民币3.5亿。
顶层复式下层▼

顶层复式上层▼

顶层复式屋顶层▼


室内的布局让顶层复式有着三个方向的建筑景观,并且拥有一个直达的室内电梯,保证屋主的隐私性。

客餐厅布置在中层,一个雕塑感十足的楼梯延伸到三个楼面,将室内与户外的露台连接起来,中层娱乐楼层设有图书馆。


主卧室布置在下层的角落处,设有私人阳台,全套更衣室和双人浴室。这样的布局注重动静分离的设计。


厨房的设计扎哈事务所与厨房品牌 Boffi 合作的产品。

中岛台的3D图▼


建筑外墙夸张的造型设计,让室内的窗景也显得格外不寻常。


超大的屋顶露台为豪宅提供了更大的室外生活空间,可以在自己家的屋顶一览城市的天际线,在纽约也算是非常奢侈了。

392㎡ 平层公寓▼

这是项目的第一个样板房设计,软装是由 Jennifer Post 设计的,四居室的平层公寓,极简装饰美学与扎哈的未来主义视觉相结合。

走廊的装饰面板是白色的流线设计,这样的造型设计把门和柜都隐藏在这种整体的流线造型中。
中岛台和简洁的橱柜设计▼

软装设计在简约的调性中结合了一些复古元素▼



左右滑动查看更多
超大的淋浴房和马桶隔间的玻璃是用电控玻璃来控制磨砂和透明的效果▼


公寓的入口在一个下沉式的广场内▼

下沉式广场的玻璃水景其实是地下室泳池的天景▼

大堂的定制的石材墙面,这样的标志化设计,一看就是出自当年扎哈的手笔▼


公寓配有纽约市唯一的私人Imax剧院,可以根据私人的要求自动化存储片源▼

带有Spa的桑拿水疗套房、健身房、机器人停车场等设施,为入住者带来了极大的便利和高品质的生活享受。




左右滑动查看更多
作为Zaha Hadid在纽约唯一的住宅作品,520 West 28th公寓以其外观强烈的雕塑感,与前卫简约的室内设计,呈现出现代豪宅的全新美学。


02
    One Thousand Museum   
迈阿密豪华住宅
项目地点:美国迈阿密
竣工时间:2019年
扎哈建筑事务所位于美国迈阿密的住宅项目,千年博物馆(1000 Museum),被称为“有史以来最复杂的摩天大楼之一”,不仅为迈阿密打造出一个重量级地标,也将该市中心住宅的豪华程度,刷新到一个全新的高度,甚至吸引了贝克汉姆斥资1.7亿,买入顶层公寓。

这一幢 62 层的奢华公寓,是扎哈·哈迪德过世前,设计完成的最大的住宅设计项目。包含了 83 套住宅单元,1 套两层楼的复式公寓,4 套连体别墅,8 套整层公寓和 70 套半层住宅单元。

公寓大楼位于美国迈阿密,俯瞰着由赫尔佐格德梅隆设计的佩雷斯艺术博物馆。

One Thousand Museum 的建成,标志它成为了迈阿密建造豪华住宅公寓的典范。

这栋摩天大厦在外观上采用了弧线形,并保持了大平面的特点,室内除了核心筒之外几乎没有立柱,为每个公寓创建了造型独特的阳台空间。


公共空间由扎哈·哈迪德设计,包括了大楼的大堂和位于 61 层上面的双层水上运动中心和一个空中酒廊。

这栋建筑配备有休息室、SPA 中心与室内游泳池、生活方式中心、温泉、私人银行质量保险库、多媒体剧场和私人餐厅。

顶层甚至还设计有一个私人直升机停机坪,这是目前在佛罗里达州的私人住宅摩天大楼中,唯一的停机坪。

大堂就是一个震撼人心的,纯白色的几何流线造型结合漫反射的光源,一副极具未来感的模样。



室内设计方面也由扎哈事务所完成,富有鲜明的风格特征。


大厦的10 ~ 14 层将包括联排别墅性质的公寓。半层公寓将占用 15 ~ 49 层,50 ~ 57层为全平层公寓,复式阁楼将位于 58 和 59 层。

户 型 图  ▼
联排别墅户型
Townhouse Residences


结构设计由DeSimone Consulting Engineers负责。

外构架图▼

预制的外墙构件▼

这些住宅每一个都有不同的阳台空间和视觉景观。这都是因为外部结构元素的变化。

随着层高变化,建筑的外骨骼成为唯一元素,产生了超大露台的独特形状,为每层公寓创建了丰富的室外空间。

半平层户型
Half Floor Residences





室内设计整体为现代简约的风格,色彩以典雅的浅色系为主,每一处的布局都经过精心考量,居住氛围由此变得低调、优雅。
全平层户型
Full Floor Residences


样板房的设计简洁清新,大开间的室内全部采用淡色系的材质和家居来填充室内空间。

开敞的厨房和整洁的橱柜却有着超强的收纳功能。

卫生间有着壮观的室外景观,同样是干湿分离有着超大尺度的布局。



顶层复式
Duplex Penthouse


顶层公寓的面积为1420平方米,疫情期间被贝克汉姆夫妇以约1.7亿人民币购入。

充满扎哈设计风格的泳池,水滴图案的拱形内墙,透露出满满的雕塑感,墙面上还倒映出泳池的水波,形成一片律动的碎影。

休息室的设计也十分完美,大片的玻璃窗显得这里,光线充足、空间宽敞。
顶楼运动中心/蓝天休憩厅细节▼




左右滑动查看更多
室外泳池也设计感满满,圆润的外形呼应了「曲线型」的建筑外观,使整体显得十分融洽。
在这里扎哈设计了一个多面的金属墙雕塑,延伸到天花板上的四边。

地灯照射在折面的金属材质上,倒映游泳池中的水,形成了宝石般的耀眼光芒。
03
     Capital Hill Residence     
安缦所有者Vladislav Doronin 私宅
项目地点:俄罗斯
竣工时间:2018年
扎哈生前允诺为安缦酒店所有者Vladislav Doronin 设计的私宅,已在俄罗斯彻底竣工了!

这个项目位于俄罗斯莫斯科附近的一片茂密的森林里,名为“国会山住宅”。
建筑依旧以大胆的造型、流畅的曲线以及扎哈式的新未来派风格,低调而又张扬地矗立于自然景观之上。

它是扎哈设计过的唯一一栋私人住宅,远远望去,宛如蓄势待发的星际战舰般惹人注目。

说到  Vladislav Doronin ,其实也是一位响当当的人物,他的名字在地产界几乎无人不知无人不晓,他同时也是 Capital Group 和 OKO Group 的创始人。12 年前,他和扎哈在伦敦曾有过一次愉快的会面。因为俩人志趣相投,爱好相似,所以聊得甚欢,在这之后,他便邀请扎哈为他设计私人住宅。要求只要一个,那就是“希望早上醒来看到的只有蓝天。”
扎哈毫不犹豫地回答道:“那你只能生活在树顶上了。”

那些树的高度大约有30米左右,扎哈略作思考,就随手拿了一张餐巾纸画出了草图。这个行为貌似随意而草率,但出于绝对的信任和对扎哈式建筑风格的热爱, Vladislav Doronin 一看到草图就喜欢上了,所以他的私宅就按照这个设计来打造。
确定设计方案后,有着完美主义强迫症倾向的扎哈,又在设计稿和效果图之间反复推敲和修改。

平面图

剖面图

外观效果图
当 Vladislav Doronin 看到这些充满未来感的效果图之后,他觉得这就是自己想要的完美住宅,但同时也不禁产生了一丝怀疑:这个建筑真的会从理想变成现实吗?

要知道,这个项目无论在创意构思还是施工难度方面,都是一次全面的升级!

事实证明,扎哈的“女魔头”称号并非浪得虚名。十年后,这个“逆天”的项目最终还是完整地呈现了出来,而且实体建筑与效果图之间的相似度非常高,堪称是完成度很高的一个设计。

外 观 设 计
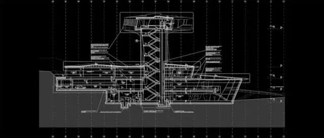
这座流体几何形状的山地建筑,延续了扎哈一贯的超现实主义风格。它的总占地面积高达 2800㎡,总共 4 层,将镜头拉远一点,就像从地面伸展出来的一样。
建筑造型基于当地的自然环境而设计,一部分嵌入山体之中,包括客厅、餐厅、厨房、娱乐室等公共区域;另一部分则高高耸立,通过一个22米长的“漂浮”体量,直达主卧室。


三根混凝土结构的立柱之间,有一个透明的玻璃电梯和楼梯。到了主卧之后,整片辽阔的森林景观尽收眼底,给人带来强大的视觉冲击力。


主卧的户外露台位于树木之上,可以近距离地仰望美丽的苍穹,符合了主人最初的设想。

 室 内 设 计 
建筑的室内部分虽然没有真正完工,但是从效果图和实景图的对比结果来看,相似度可以说是非常高了!

客厅效果图

客厅实景图
大胆而前卫的流线感设计,贯穿了整体建筑的始终。


大面积的采光玻璃尽享恢宏景观面,全方位地展现了一种追求品质生活的境界。里面的装饰元素并不复杂,但尽可能地保持了现代化的时尚风格。

餐厅
二层会客厅▼

二楼的生活区域 ▼

楼梯部分采光充足,南北通透,而且兼具连接空间与凸显视觉艺术的功能,室内家具全部采用私人定制,这也是设计师始终坚持的原则。

一层入口处▼
楼梯空间实景图
顶楼主卧室拥有全屋最好的视野,巨大的玻璃幕墙将自然光线与美景一同收入囊中,为藏于高楼的闲适生活增添更多的绿意。

简洁利落的线条穿插于中性色彩中,搭配钢材、玻璃、木材等,彰显出多种多样的审美因子,让每一寸空间都充满有趣的流动性。


SPA区域
据说这座私宅的总造价花了,近 1.4 亿美元,合约 8.8 亿人民币。不论是这座建筑的先锋性设计,还是从它所处的位置来看,这所私宅都是每个人的理想居所。既梦幻又现实,像黑夜中闪烁的精灵般,耀眼夺目。
 
04
     D'Leedon     
首个完美落地豪宅项目
项目地点:新加坡
竣工时间:2017年
D'Leedon由包含绿化景观和娱乐设施在内7栋高层住宅和12栋半独立式别墅组成,坐落于新加坡10区的中心,临近登布西山、荷兰村和乌节路等商业中心,毗邻南洋小学等热门学校。住宅区通过一条室内走廊可以到达花拉路地铁站,由此公共交通枢纽可以前往新加坡中央商业区、植物园武吉知马自然保护区等地点。

在新加坡温暖湿润的气候作用下,极其茂盛的植被使得一层平面看起来非常绿色。场地经过改造形成一系列阶梯状的平台,公共设施区域也得以最大化。场地内以及面向周围城市的连接和导向,作为规划整个场地的驱动性因素,通过将主车道移到地下以最小化汽车动线,从而在整个住宅区内建立一个更加人性化的景观。
▼人性化的景观

环境因素和位于赤道的地理位置决定了高层住宅的南北朝向以减少吸收日光。可持续的特点通过场地能源的生成和再利用以减少消耗,住宅项目也因此被授予Gold+奖项。
▼ 南北朝向的高层住宅以减少能源消耗

高层住宅在接近地面的部分逐渐向内收缩以优化公共空间;独特的“花瓣”造型的布局使得公寓三侧都有窗户,客厅和卧室的对流以及厨房和浴室的通风为住户提供了最高的生活品质。几何形变化的阳台和整体景观一同造就了这个受场地条件和环境所限定的独特项目。
▼ “花瓣”布局的比较

▼ 高层立面
   
▼高层住宅在接近地面的部分逐渐向内收缩   
根据环境因素来优化住宅的朝向和布局,以应对强烈的日照和最大化俯瞰全城的视角。组织成带状的景观及其设施围绕着场地中既有的主轴成线排布。主轴在场地中延伸成一系列用于定义不同景观主题的线条,给整体场地带来多元的体验。
▼ 俯视主轴

住宅项目包含在7栋高层住宅和12栋半独立别墅内的1715个单元,被计入建筑面积超过220万平方英尺。高层住宅通过很大的单元密度以及很小的占用空间,使得为居民和访客开放的公共空间成为可能。
▼ 半独立别墅

根据每层住宅单元的数目,高层被进一步地分为几组不同的“花瓣”,以确保公寓户型非常多元。随着住宅高度的变化,生成的“花瓣”平面图也随之改变,并产生不同的形态结构和单元类型。变幻构成的单元类型使得高层住宅可以回应由场地条件,内部组织和结构优化决定的一系列的参数。
▼ 高层几何学研究

▼ 参数组成

▼ 多元的大厅平面
   
   
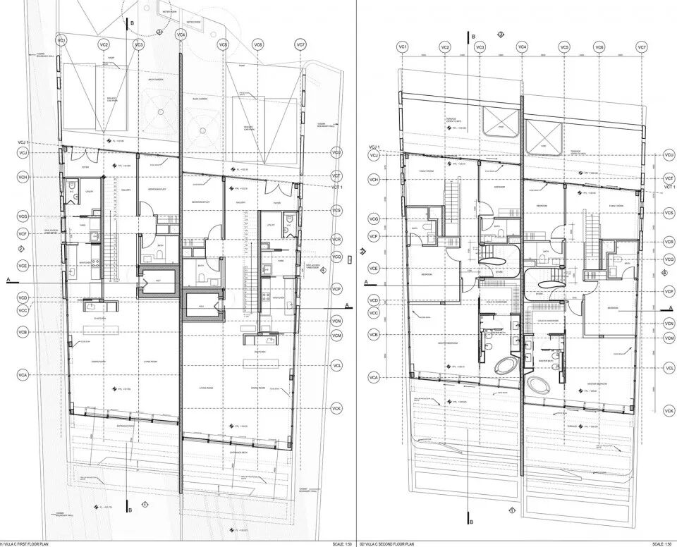
D’Leedon的设计将场地的挑战变成有利于住户的宜居条件,包含了差异性和个体性的概念,独立的公寓可以根据它们在场地中的地点方位以及住户的需求来具体设计。
▼ 包含多种户型的高层平面
   
      
▼ 公寓内部户型图

从高层住宅“花瓣”式的形态结构到立面的垂直表达,以及相连的屋顶公寓和底层花园:通过在不同设计尺度具有高度差异性的个性化定制,项目为住户提供了多元的选择。结构的设计和分布包含了反映高层住宅的几何构成的设施,与“花瓣”的形式有着一定的连贯性。Zaha Hadid Architects在D`Leedon这个项目中探究了大尺度住宅设计的新的可能,通过重新思考了设计的各个元素,将个体性、差异性和连贯性的概念融合在一起。

通过最大化大尺度住宅区和高层设计的优势,D’Leedon呈现出最明显的特点之一就是景观,通过打造一个坐落于新加坡城市中心、长年宜居的度假胜地,以形成一个真正的花园。根据高层住宅的位置,场地被分为成束的带状使得每一栋高层在一片延伸的“花瓣”,拥有一个可以进入的私人花园。
▼ 私人花园

水域,茂盛植被,体育场地,城市广场和绿地作为组成了这个景观项目的元素,每个元素被用以构成由 岩石、森林、水、丘陵和草地作为山脉组成灵感的独特景观带。

每一条景观带通过搭配不同植物种类和路面有着不同的特点和气氛。空间布置、灯光和现有的不同设施等进一步地强调了景观带的个性。引人注目的景观布置带给过往的住户和访客难忘的视觉和空间体验。

一片富有活力的区域构成了场地的中轴线,包含水景,泳池,按摩浴缸和儿童戏水池等水的形式。从静止倒影的水面,到涌动的水流和喷泉,以及协调高差的瀑布和自然池塘。
▼ 中轴

各种水边常见的植被在泳池的水面投下斑驳的阴影。沿着水带而立的是两栋包含SPA,健身房,零售区和餐饮等多种设施的俱乐部会所。
▼ 俱乐部会所

▼ 泳池夜景

▼ 总平面

▼ 总剖面


▼ 别墅平面

▼ 单栋别墅平面

▼ 单栋别墅剖面



扎哈 · 中国作品
耗资800亿
历时四年建造
这个中国最魔幻的机场
——北京大兴机场
狗年终于迎来了首飞!

北京大兴国际机场航拍 ©李召麒
 随着轮胎与跑道升起一道白烟
北京大兴机场正式进入验收移交阶段
从高空俯瞰机场全景
像一只巨大的手掌将希望托起
建筑外形由流畅的曲线构成
与周遭融为一体没有特别突兀的地方
呈现一派祥和的气息

北京大兴国际机场航拍 

北京大兴国际机场航拍 
这个中国最魔幻的机场
在2016年
被英国《卫报》评选为“新世界七大奇迹”之首
中国人民so niu bi!!

北京大兴国际机场航拍 
北京大兴机场坐落于永定河北岸
占地面积140万平方米
相当于63个天安门广场
今年9月底正式投入使用后
将是世界上最大的单体航站楼
超过了迪拜世界中心
和土耳其伊斯坦布尔第三国际机场

北京大兴国际机场航拍 
别看大兴机场孤零零的chu在一片空地上
略微显得有点单薄
但它每年可以运送旅客1亿人次
飞机起降80万架次
是名副其实巨型机场
能有如此大的客运吞吐量
离不开合理的空间设计
由于采用了五指型的设计
将旅客候机的区域放在了最中心

所有的登机口围绕中心呈放射状分布
从出发层到最远的登机口只有600m
最久只需要步行8分钟

走进航站楼
内部是一个巨大的开放空间
四层楼相互交织


机场的屋顶面积相当于25个足球场
屋顶中心有一个巨大六边形天窗
与六条条形天窗、八个气泡窗相互连接
将机场内部变成一个大型光庭

整个航站楼一共使用了12800块玻璃
由12300个球形节点和超过60000根连杆
相互连接
光屋顶就使用了8000块完全不重样的玻璃
施工难度堪称世界之最

©JewanAllan

北京大兴国际机场 
为了给乘客最大化的公共空间
设计师简化了建筑形式
将C形柱顶部与气泡天窗相接
使屋面与承重结构一体化
整个屋顶就用了8根C形柱来支撑
创造了几乎无柱的巨大中庭
阳光穿透玻璃撒满大厅
旅客沐浴着阳光开启自己的旅程

北京大兴国际机场 

北京大兴国际机场 
而大兴国际机场
还担负着京津冀合交通枢纽的重任
京霸高铁从机场下方穿过
地下还有S6线、廊涿城际、城际轨道
当如此多的轨道交通经过机场
会产生较强的震动和风压

为了机场的安全
北京大兴国际机场使用了 
国内首创的层间隔震技术
使得机场可以抗住八级地震

就连通往机场的高速路
也用上了黑科技
高速路面大面积采用融雪材料
使结冰点下降到零下12度左右
这也是国内第一个大范围使用这项技术的项目

这座获得了众多赞誉的魔幻机场
是英国建筑设计师
扎哈·哈迪德
留给我们的天堂之礼
2014年11月
法国ADP Ingenierie 建筑事务所
携手扎哈·哈迪德
定下了北京大兴机场最终设计方案
2016年3月31日
机场在刚开始建设不久
这位伟大的建筑师被上帝带去了天堂
扎哈被世人称为“建筑界的女魔头”
除了北京大兴国际机场
她还为中国留下了许多旷世奇作
 1 
 沐梵世酒店  
Morpheus Hotel
坐标 澳门
扎哈设计的这间酒店
是全世界第一座采用
自由形态外骨骼结构的大楼
大楼的中央有8字形的镂空配上
扎哈标志性的流畅线条和优美曲线
让人觉得这建筑属于未来

酒店一共花了65亿人民币
耗费28000吨钢材
48000平方米玻璃和70500立方米混凝土
人民币的气息扑面而来

建筑外骨骼网状结构
包围着混凝土的核心部分
而镂空的8字其实是连接两栋楼的天桥

扎哈对这个项目倾注了全部的心血
甚至为了这个酒店开发了一款软件
来模拟推演整个设计方案
只为了达到结构的最优化

酒店内部都是几何结构
中庭配有12台观光电梯
置身余内仿佛步入了梦幻世界


这间酒店在扎哈逝世一年时建成
是她令世人叹服的遗作之一

 2 
 SOHO中国项目 
 坐标 北京&上海 
银河SOHO
以四合院的院落形式为主
整个建筑的灵感来自梯田
扎哈将生活气息用现代化的手法表现



望京SOHO
宛如三座繁华都市里的大山
用流动的曲线诠释着与其他建筑的区别


凌空SOHO
扎哈通过流线型和丰富的空间变化
表达出速度与激情的主题
与虹桥机场相互辉映



 3 
 香港赛马会创新楼 
Jockey Club Innovation Tower
坐标 香港
香港理工大学内
一个像船一样的大楼在14年建成

创新楼建筑外观以线条包裹玻璃
墙面以白色为主
不规则的建筑造型
与四周红砖林立的港理格格不入

香港寸土寸金
大楼实际占地面积过小
这种不规则的造型
增加大楼的内部实际使用空间
而创新楼的出入口向外延伸
宛如宇宙飞船的入口

扎哈用自己的设计
给香港理工大学带来了科幻与现代感

中国是扎哈的福地
她留下了许多经典的建筑
由于篇幅原因我就不一一赘述啦
 4 
 广州大剧院  
Guangzhou Opera House
坐标 广州




 5 
 南京青奥中心 
Nanjing Youth Olympics Center Towers
坐标 南京





 6  
 成都当代艺术中心 
New Century City Art Center
坐标 成都


 7 
 长沙梅溪湖国际文化艺术中心 
Changsha Meixihu International 
Culture & Art Center
坐标 长沙




《时代》杂志说扎哈是强势感性
极具偶像气质的人
她用她的设计向世人证明
女性也可以按照自己的意愿
靠自己努力独立地过完一生
尽管她生前饱受争议
但是她的作品无疑
给世界增添了另一种美
R.I.P
谢谢你
到顶部