湖南工地群邀请你加入


同城工程群:建筑工程圈的微信群,一个专属工程人的微信交流群平台
湖南建筑工程交流群
长沙工地群、株洲工地群、湘潭工地群、衡阳工地群、邵阳工地群、岳阳工地群、常德工地群、张家界工地群、益阳工地群、郴州工地群、永州工地群、怀化工地群、娄底工地群、湘西工地群。
1、建筑工程行业自媒体联盟社群建立初衷
我们希望在这里没有人是一座孤岛,建立一个真正属于建筑行业移动互联网共享资源社群,供交流、连接、实现价值共享、资源互换。
2、人群需求
必须是建筑行业、销售、采购、资源对接、项目合作、工程商包工头、广大工友等安防相关人员。     希望你带着分享的初心入群,而不是为在群里发图文广告而来。发现广告者一律移除。
欢迎湖南工友加入群
关注同城工程群加入工友群
更多群看文章后面
工地群
建筑工程知识
1、基坑工程:
建筑物或构筑物地下部分施工时,需开挖基坑,进行施工降水,同时要对基坑四周的建筑物、构筑物、道路和地下管线进行围护及监测,确保正常、安全施工。这项涉及勘查、设计、施工、监理、监测、应急等内容的综合系统性工程称为基坑工程。
2、支护结构:
基坑工程中采用的围护墙、支撑(或土层锚杆)、围檩、防渗帷幕、降排水等结构体系的总称。
3、深基坑:
开挖深度超过5M(含5M)或深度虽未超过5M,但地质条件和周围环境及地下管线极其复杂的工程。 
4、基坑安全等级:三个安全等级。
一级基坑:
     (1)软土地区基坑开挖深度大于8M。
     (2)支护结构作为主体结构的一部分。
     (3)在基坑开挖影响范围内有重要建(构)筑物或需严加保护的管线。
三级基坑:
       开挖深度小于5M,且周围环境无特殊要求。
二级基坑:
    除一级和三级以外的基坑。 
二、基坑支护结构形式 
1、放坡开挖(坡率法):
利用土体自身的强度保持边坡不发生坍滑、移动、松散或不均匀下沉,达到边坡稳定。
关键是坡度i = H / L  ,一般取1 : 0.5 — 1 : 2.0 

一般适用于杂填土、粘性土或粉性土,且环境条件允许的基坑。
2、土钉墙:
由被加固土体、设置于土中的土钉体和挂钢筋网的喷射砼面板等共同作用形成的补强复合土体。




一般适用于:
(1)稍密至中密状态的粉性土、砂土;
(2)密实的碎石土层;
(3)坚硬状态的含砾粘性土及风化岩层;
(4)可塑至硬塑状态的一般粘性土;
(5)素填土、人工杂填土;
以上土层安全等级为二、三级的基坑。
注意:土钉墙在软粘土中(塘泥、淤泥、淤泥质粘土、淤泥质粉质粘土等)要严格控制,特别是周围环境要求较严的基坑。 
3、复合土钉墙
土方开挖前施打水泥搅拌桩、振动灌注桩、钢板桩、木桩等,然后按土钉墙的施工方法进行施工。 


4、水泥重力式挡墙:
水泥搅拌桩(旋喷桩)采用格栅形或连续形布置形成重力坝墙。
有时增加砼桩、钢板桩、毛竹等,以增强挡墙的强度。




适用于场地较开阔、坑深不大于7M 、轮廓较大、软弱地层的基坑。
注意:对于有机质含量较高的土层,应通过试验确定其适应性。
条件:
(1)截面置换率通常为0.6—0.8,且纵向墙肋间净距不宜大于1.3M;横向墙肋间净距不宜大于1.8M,搭接≥150MM。
(2)入土深度 = (0.8 - 1.2)h
        墙宽 = (0.5 - 0.8)h
(3)水泥土28天单轴抗压强度qu≥0.8Mpa
         成桩后28天方可开挖土方。 
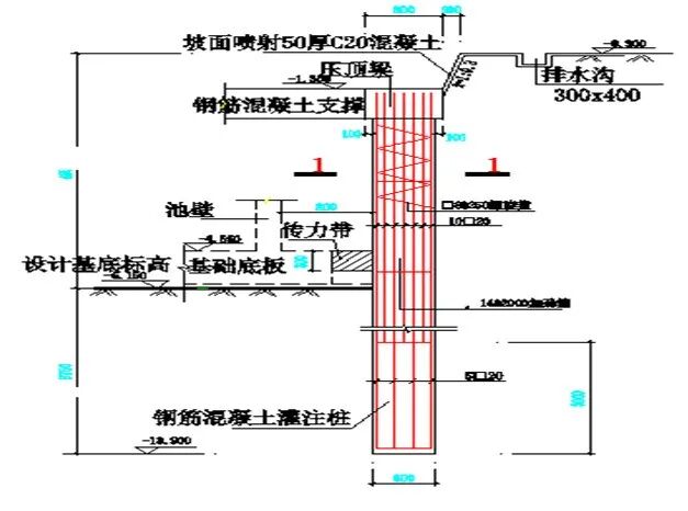
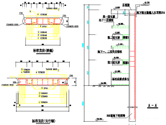
5、桩墙式支护结构:
由围护墙及支撑系统组成(悬臂式、内撑式、锚拉式)
围护墙:排桩式(钻孔灌注桩、沉管灌注桩、人工挖孔桩、板桩、钻孔咬合桩、SMW工法等);
墙式(现浇或预制的地下连续墙)。

围护墙为排桩式(钻孔灌注桩)


围护墙为排桩式(素砼桩)



围护墙为排桩式(钻孔咬合桩)

围护墙为墙式(地下连续墙)

围护墙为墙式(地下连续墙)


地下连续墙
桩墙式支护结构:土质的适用性较强。 
6、内支撑与土层锚杆
(1)内支撑:钢筋砼支撑﹙永久钢筋砼结构支撑、临时钢筋砼支撑﹚、钢支撑、钢与钢筋砼组合支撑。
形式:对撑、桁架式对撑、角撑及内环式支撑。
构造:压顶梁、围
内支撑形式:对撑

临时钢筋砼支撑形式:桁架式对撑   角撑

桁架式对撑

临时钢筋砼支撑形式:内环式支撑



(2)土层锚杆
形式:钢绞线、高强钢丝或高强螺纹钢筋,并宜施加预应力。
适应范围:粘性土、粉性土及砂土层,不宜用于淤泥及淤泥质土层中。 


(来源:网络,图片及版权归原作者所有,如有侵权请联系删除!)
欢迎点击关注【工友通讯录】公众号
认识建筑行业工友、加入更多工程群
↓↓↓
到顶部