陕西工地群邀请你加入


同城工程群:建筑工程圈的微信群,一个专属工程人的微信交流群平台
陕西建筑工程交流群
西安工地群、铜川工地群、宝鸡工地群、咸阳工地群、渭南工地群、延安工地群、汉中工地群、榆林工地群、安康工地群、商洛工地群。
1、建筑工程行业自媒体联盟社群建立初衷
我们希望在这里没有人是一座孤岛,建立一个真正属于建筑行业移动互联网共享资源社群,供交流、连接、实现价值共享、资源互换。
2、人群需求
必须是建筑行业、销售、采购、资源对接、项目合作、工程商包工头、广大工友等安防相关人员。     希望你带着分享的初心入群,而不是为在群里发图文广告而来。发现广告者一律移除。
欢迎陕西工友加入群
关注同城工程群加入工友群
更多群看文章后面
工地群
建筑行业知识
从征地开始、工程估算、设计概算、工程招投标、施工过程中、竣工决算、成本分析都需要准确计算建筑面积,无论你是在建设单位、还是施工单位、咨询公司都需要了解这份计算规则。
(一)应计算的建筑面积的范围及规则
1、建筑物的建筑面积应按自然层外墙结构外围水平面积之和计算。结构层高在2.20m及以上的,应计算全面积;结构层高在2.20m以下的,应计算1/2面积。(计算建筑面积时不考虑勒脚)



2、建筑物内设有局部楼层时,对于局部楼层的二层及以上楼层,有围护结构的应按其围护结构外围水平面积计算,无围护结构的应按其结构底板水平面积计算,且结构层高在2.20m及以上的,应计算全面积,结构层高在2.20m以下的,应计算1/2面积。

3、形成建筑空间的坡屋顶,结构净高在2.10m及以上的部位应计算全面积;结构净高在1.20m及以上至2.10m以下的部位应计算1/2面积;结构净高在1.20m以下的部位不应计算建筑面积。

4、场馆看台下的建筑空间,结构净高在2.10m及以上的部位应计算全面积;结构净高在1.20m及以上至2.10m以下的部位应计算1/2面积;结构净高在1.20m以下的部位不应计算建筑面积。


有顶盖无围护结构的场馆看台应按其顶盖水平投影面积的1/2计算面积。
室内单独设置的有围护设施的悬挑看台,应按看台结构底板水平投影面积计算建筑面积。
5、地下室、半地下室应按其结构外围水平面积计算。结构层高在2.20m及以上的,应计算全面积;结构层高在2.20m以下的,应计算1/2面积。
6、出入口外墙外侧坡道有顶盖的部位,应按其外墙结构外围水平面积的1/2计算面积。

7、建筑物架空层及坡地建筑物吊脚架空层,应按其顶板水平投影计算建筑面积。结构层高在2.20m及以上的,应计算全面积;结构层高在2.20m以下的,应计算1/2面积。

8、建筑物的门厅、大厅应按一层计算建筑面积,门厅、大厅内设置的走廊应按走廊结构底板水平投影面积计算建筑面积。结构层高在2.20m及以上的,应计算全面积;结构层高在2.20m以下的,应计算1/2面积。(回廊是走廊的一种。门厅大厅是按一层计算。)


9、建筑物间的架空走廊,有顶盖和围护结构的,应按其围护结构外围水平面积计算全面积;无围护结构、有围护设施的,应按其结构底板水平投影面积计算1/2面积。

(有围护设施)

(有围护结构)
10、对于立体书库、立体仓库、立体车库,有围护结构的,应按其围护结构外围水平面积计算建筑面积;无围护结构、有围护设施的,应按其结构底板水平投影面积计算建筑面积。
无结构层的应按一层计算,有结构层的应按其结构层面积分别计算。结构层高在2.20m及以上的,应计算全面积;结构层高在2.20m以下的,应计算1/2面积。

11、有围护结构的舞台灯光控制室,应按其围护结构外围水平面积计算。结构层高在2.20m及以上的,应计算全面积;结构层高在2.20m以下的,应计算1/2面积。(若只有一层则不另计算建筑面积)

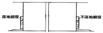
12、附属在建筑物外墙的落地橱窗,应按其围护结构外围水平面积计算。结构层高在2.20m及以上的,应计算全面积;结构层高在2.20m以下的,应计算1/2面积。(该处橱窗:一是附属在建筑物外墙,二是落地)

13、窗台与室内楼地面高差在0.45m以下且结构净高在2.10m及以上的凸(飘)窗,应按其围护结构外围水平面积计算1/2面积。

14、有围护设施的室外走廊(挑廊),应按其结构底板水平投影面积计算1/2面积;有围护设施(或柱)的檐廊,应按其围护设施(或柱)外围水平面积计算1/2面积。

15、门斗应按其围护结构外围水平面积计算建筑面积,且结构层高在2.20m及以上的,应计算全面积;结构层高在2.20m以下的,应计算1/2面积。

16、门廊应按其顶板的水平投影面积的1/2计算建筑面积;有柱雨篷应按其结构板水平投影面积的1/2计算建筑面积;无柱雨篷的结构外边线至外墙结构外边线的宽度在2.10m及以上的,应按雨篷结构板的水平投影面积的1/2计算建筑面积。

17、设在建筑物顶部的、有围护结构的楼梯间、水箱间、电梯机房等,结构层高在2.20m及以上的应计算全面积;结构层高在2.20m以下的,应计算1/2面积。

18、围护结构不垂直于水平面的楼层,应按其底板面的外墙外围水平面积计算。结构净高在2.10m及以上的部位,应计算全面积;结构净高在1.20m及以上至2.10m以下的部位,应计算1/2面积;结构净高在1.20m以下的部位,不应计算建筑面积。

19、建筑物的室内楼梯、电梯井、提物井、管道井、通风排气竖井、烟道,应并入建筑物的自然层计算建筑面积。有顶盖的采光井应按一层计算面积,结构净高在2.10m及以上的,应计算全面积;结构净高在2.10m以下的,应计算1/2面积。


20、室外楼梯应并入所依附建筑物自然层,并应按其水平投影面积的1/2计算建筑面积。

21、在主体结构内的阳台,应按其结构外围水平面积计算全面积;在主体结构外的阳台,应按其结构底板水平投影面积计算1/2面积。

22、有顶盖无围护结构的车棚、货棚、站台、加油站、收费站等,应按其顶盖水平投影面积的1/2计算建筑面积。

23、以幕墙作为围护结构的建筑物,应按幕墙外边线计算建筑面积。幕墙以其在建筑物中所起的作用和功能来区分,直接作为外墙起围护作用的幕墙,按其外边线计算建筑面积;设置在建筑物墙体外起装饰作用的幕墙,不计算建筑面积。

24、建筑物的外墙外保温层,应按其保温材料的水平截面积计算,并计入自然层建筑面积。

25、与室内相通的变形缝,应按其自然层合并在建筑物建筑面积内计算。对于高低联跨的建筑物,当高低跨内部连通时,其变形缝应计算在低跨面积内。

27、对于建筑物内的设备层、管道层、避难层等有结构层的楼层,结构层高在2.20m及以上的,应计算全面积;结构层高在2.20m以下的,应计算1/2面积。
(二)不计算建筑面积的范围
1、与建筑物内不相连通的建筑部件。

2、骑楼、过街楼底层的开放公共空间和建筑物通道。

3、舞台及后台悬挂幕布和布景的天桥、挑台等。这里指的是影剧院的舞台及为舞台服务的可供上人维修、悬挂幕布、布置灯光及布景等搭设的天桥和挑台等构件设施。
4、露台、露天游泳池、花架、屋顶的水箱及装饰性结构构件。
5、建筑物内的操作平台、上料平台、安装箱和罐体的平台。

6、勒脚、附墙柱、垛、台阶、墙面抹灰、装饰面、镶贴块料面层、装饰性幕墙,主体结构外的空调室外机搁板(箱)、构件、配件,挑出宽度在2.10m以下的无柱雨篷和顶盖高度达到或超过两个楼层的无柱雨篷。
7、窗台与室内地面高差在0.45m以下且结构净高在2.10m以下的凸(飘)窗,窗台与室内地面高差在0.45m及以上的凸(飘)窗。
8、室外爬梯、室外专用消防钢楼梯。专用的消防钢楼梯是不计算建筑面积的。当钢楼梯是建筑物唯一通道,并兼用消防,则应按室外楼梯相关规定计算建筑面积。

9、无围护结构的观光电梯。无围护结构的观光电梯是指电梯轿厢直接暴露,外侧无井壁,不计算建筑面积。如果观光电梯在电梯井内运时(井壁不限材料),观光电梯井按自然层计算建筑面积。
10、建筑物以外的地下人防通道,独立的烟囱、烟道、地沟、油(水)罐、气柜、水塔、贮油(水)池、贮仓、栈桥等构筑物。
欢迎点击关注【工友通讯录】公众号
认识建筑行业工友、加入更多工程群
↓↓↓
到顶部