北京小夫妻买下80㎡菜刀户型房,花68万拆砸改,网友:居然还可以这样?


最近,#最像火车包厢的户型设计# 登上热搜,引来大家纷纷吐槽

网友评论:
@天空:挺好,晨跑在家里就够了
@薛定谔的猫大树:这......这是营房吧
@御萌殿:端水套间,人人平等
不得不说,这位设计师是吃离谱长大的么......一字户型的确一言难尽,但谁又不想买个人类高质量户型呢,只是有些时候钱包让我们不得不朝奇葩户型看去......
不考虑风水的话,其实奇葩户型并不可怕。不乏各种户型奇葩,装修完却能带来不少惊喜的家。今天小编就带大家看一套菜刀户型改造,打破常规,将原始格局进行对调,是否会得到更舒适的空间呢?

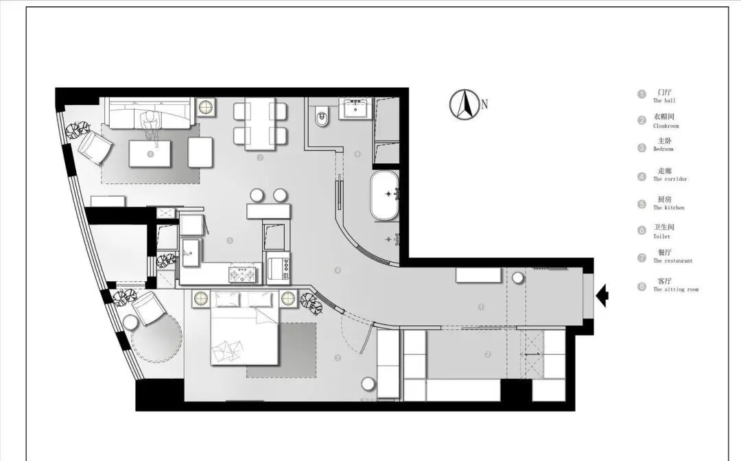
原始户型图
房屋信息
使用面积:80㎡
装修花费:68万
位置:北京  三里屯
改造需求
1. 希望有一个独立衣帽间,能储放大量衣物以及鞋子
2. 有独立门厅空间
3. 开放式厨房
4. 浴缸,淋浴分开
5. 整体色调柔和舒适

平面布局方案图

平面规划草图示意
设计师打掉室内所有的隔墙,对空间进行新的定义划分。整体空间要实现柔和的基调,全屋使用大面积白色结合中性灯光及木材的元素搭配。空间造型力求简洁,使用简单的材料来营造柔和的氛围。旨在更少的东西,更少的注意力和更多的沉默,便能让我们过上简单而平静的生活。
玄关

玄关改造后形成长条的弧形长廊,顶面结合灯光形成导向指引。以流动的造型设计增强区域之间的联系,起到放大空间的视觉效果。比起四四方方的空间设计,能在一定程度上柔化空间棱角,为空间注入温度。

玄关左侧增添一扇推拉门隔出衣帽间,便于进出前进行更衣,同时满足屋主衣物收纳的需求。与衣帽间门相对的墙上设计了穿衣镜和临时挂衣区。
走廊


过道处设立家务柜,嵌入洗衣机。虽然收纳柜的宽度不大,但增加的空间可以缓解不少收纳压力。隐藏式收纳处理,使空间看起来整洁,通透,没有过多繁复的装饰。


弧形墙面留出透光窗口,让自然光线可以通达洗漱间,与之相对的洗漱间局部墙面采用玻璃砖砌筑,有效的将部分自然光照进入。也缓解了走廊通透性差的问题。
卧室




即使只用到了白色和木色,也营造出了层次分明的质感。在色调上为了保持和谐,几乎所有的家居用品亦采用白与咖的搭配,主打自然和简约。清雅的环境可以让人睡的安稳。卧室使用衣柜和梳妆台结合,满足部分贴身衣物的储放及梳妆的需求。休息时将窗帘拉上,保证居室的隐私。

卧室靠窗位置将地面抬高形成独立的阳台休闲区。因为上方区域用来晾衣,抬高部分特地选用了瓷砖铺贴。
客餐厅

公共区域采用了客餐厨一体化的设计。原本的起居室是整个空间中采光最佳的位置,借此改造成客厅,靠近阳光才能安放身心。

为了让用餐空间更加温馨、放松,利用桌面,小范围的增添木质元素,并保留木质色彩及质感,让空间变得更加温暖、质朴。同时也增加层次及线条感,使现代风餐厅的视觉更加丰富,打造无压迫感的用餐空间,去繁从简,简单的只能静下心来用餐。

客厅暖气暗藏到定制格栅条后,这样的处理方式需要考虑热能对材质烘烤是否会造成变形开裂的风险;格栅条的排布密度也需要考虑,处理不好会造成热能无法正常扩散。
厨房

厨房为了整体空间色调一致,选用了白色的Smeg灶具。凹嵌的开放式厨房能巧妙的融合在整体空间中。橱柜全部采用无把手设计,弱化柜子带来的压抑感,不仅可以避免磕碰受伤的情况,在保证空间收纳能力的同时,亦用人性化的设计突出简约大气的品质感。

厨房一侧留出吧台区域,可以用于简餐,也可以当作办公桌台。
卫生间

淋浴区玻璃砖能使暗卫得到部分自然光,选择玻璃砖时需要保证人在使用淋浴区时影子不显露。利用磨砂长虹玻璃隔离浴缸和淋浴区域,既能加强隐蔽性,又能保留通透明亮及视觉上的整洁度。
关于本案设计团队

WeLL DESIGN
团队负责人:韦忠

“筑巢奖”于2009年创办,现已成功举办九届。由筑巢奖组委会独立运营,累计近6万人次报名参与,征集作品量近10万。“筑巢奖”关注年轻设计师的成长,倡导以人为本,关注民生,推广具有普适性和示范性的设计,致力于打造中国具有权威性、公信力和影响力的室内设计赛事。
合作联系
广告合作:QQ 2376181903
咨询&找设计师:微信 zc19941873651
作品投稿邮箱:578809721@qq.com
到顶部