一家5口买下废弃的老破平房,改造后惊艳亲友,纯白“诧寂风”别墅美爆了!



一对夫妇买下了澳大利亚珀斯附近的一栋平层房屋,扩建了二层,增大了房屋的面积,以便屋主的三个成年子女来探望小住。改造后的纯白“诧寂风”海边别墅惊艳亲朋好友,美爆了!
  
.01
独立的海边双层别墅
房屋位于珀斯港口城市弗里曼特尔,因此房屋也以此名称命名为Marine。它属于一对夫妇,他们有三个成年子女,其中两个居住在澳大利亚其他地区,一个居住在海外。

当地的建筑工作室David Barr Architects将原本的平层结构扩建成了二层,作为夫妇二人的主卧室。当孩子们来拜访他们时,两代人可以拥有各自的独立空间,互不打扰。  

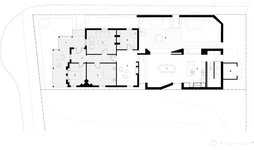
一层平面图

二层平面图
“我们非常热衷于在新建筑的设计中捕捉现有的结构特征——砖砌的纹理、陈旧的木材等等。”建筑工作室的创始人David Barr说到。
.02
庭院
工作室决定用石灰砖覆盖Marine扩建的墙体。延伸出的部分具有倾斜的倒角壁,这些墙壁向窗户逐渐倾斜,当太阳在天空中移动时,这些倾斜的表面会产生戏剧性的光影效果。

房屋前面的预先存在的石灰岩墙也被加高,形成一个私密的砖砌庭院,简单地摆上铁艺桌椅和几盆绿植,阳光明媚的天气在这里喝茶晒太阳看看书,别提多惬意了。

砖砌的墙面和地面在阳光的照射下,凹凸倾斜的表面拥有戏剧性的光影效果,美轮美奂。
.02
客厅
一楼客厅整体选用了纯白的色调,混凝土地面和桦木胶合板元素贯串始终,温暖的雪松木窄板条用于装饰垭口。

整个空间用了大面积的雪松木,温暖的木质结构搭配纯白的墙面,让空间温暖又干净,走廊贯通整个空间,

.03
餐厅
靠近一层空间中央的是一张长木桌,可以共两代人在这里享用家庭聚餐。

一个低矮的混凝土地台沿着房间的后部延伸开来,上面铺有舒适的座垫,摆放了柔软的靠垫,闲暇时主人可以在这里休息和阅读。

 
 
.04
厨房
一层的一侧是厨房空间,配有浅色桦木胶合板制成的橱柜,同样的材料也被用来制作中央岛台的底座。

开放式厨房和餐厅相连,动线更简洁,增加了家庭成员之间的互动。

岛台后面的橱柜上方没有安装吊柜,而是悬挂了一系列开放式的架子,女主人可以在这里陈列、展示她的餐具收藏。架子由纤细的黑色金属杆支撑,从天花板向下延伸。
.05
卧室 
砖砌的楼梯间通向二层的主卧室,楼梯的尽头用胶合板打造了一个半高的陈列架,放置一些主人的心水收藏,纯白的空间整洁优雅又大气。

主卧的整体色调都是白色的,床尾面对着一块巨大的玻璃拉门,通过它可以进入一个小型的户外露台,天气晴朗的时候,这里阳光充足,居住者可以充分享受大自然。

主卧还配有独立的浴室和步入式衣帽间,给了男女主人相对独立的生活空间。卫浴间同样采用纯白和卡其色为主色调,混凝土地面和卫浴间的大理石墙面让空间更有质感,金属五金和白瓷台盆复古又优雅。

衣帽间采用全实木隔板,墙面摆上几件优雅的摆件,精致优雅的氛围感立马就有了。

摄影:Jack Lovel
图源:dezeen
合作联系
广告合作:QQ 2376181903
咨询&找设计师:微信 zc19941873651
作品投稿邮箱:578809721@qq.com
到顶部