台湾158㎡北欧风亲子宅,弧形收纳墙+多功能活动区,圈粉无数!



本案位于台湾林口,面积为48坪(约158m²),业主为一家四口,喜爱社交和烹饪的年轻夫妻和两个幼子。
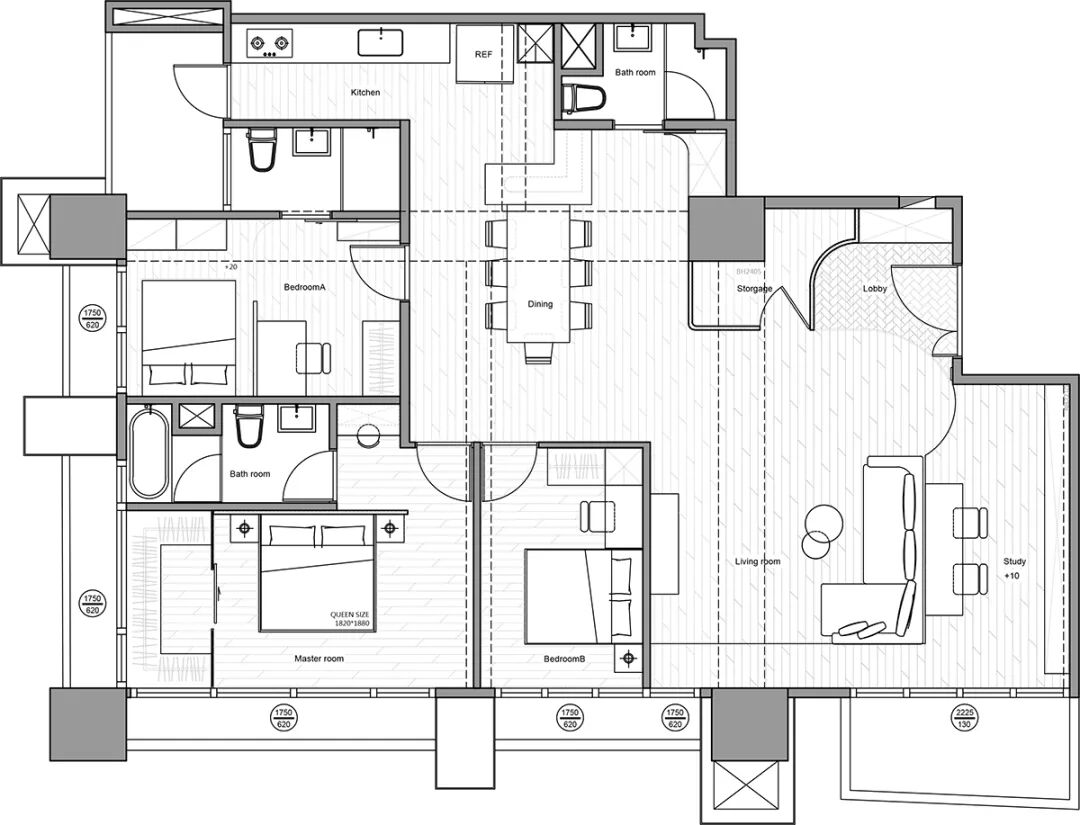
3室2厅3卫的方正格局,美中不足是玄关处原来有个大梁,设计师因势利导将弧形引入墙面,破解梁体带来的压迫感。同时考虑到业主的收纳需求,将储物室藏于墙后,实现整体视觉上的整洁美观。
  关于项目平面图  

::
玄关  Porch 
为了增强空间的流动性和趣味性,遮挡丑陋的大梁,设计师以弧形线条来修饰墙面造型,并一路蜿蜒进室内。


设计师借机将储藏室藏于玄关壁面后方,鞋柜与壁面融合为一,承担着日常杂物的收纳。

::
客厅  Living Room 
人,才是空间永远的主角,尤其是在占地最大、待得最久的客厅,近39.6㎡的偌大客厅作为全家人最主要的公共活动空间,化身集娱乐、休闲、阅读、运动于一体的多功能区域。

高低台的设计悄然划分着空间的动静分区,地台上方是阅读区,记录着一家人的亲子互动时光。
开放格书柜墙收纳力强大,下方抽屉方便收纳玩具杂物,柜体中央铺上软垫,小主人可以与父母一起在此亲子阅读。

考虑到儿童奔跑玩耍时的安全性,阅读区地台高度仅做了10cm,同时用弧线收尾增加空间的活泼与动感。



窗边的一丝绿意与舒适的布艺沙发和木质矮几相映成趣,除此之外再无更多外物干扰视线和活动动线,无压迫感的大客厅不仅保证了小朋友奔跑跳跃的安全,同时也让空间更加整洁美观。

考虑到业主夫妇的观影需求并不大,因此以近距投影设备代替电视,并将其摆放于悬空电视柜上,方便播放动画片。木质电视柜舍弃繁复造型,诠释着简单舒适的基调。

::
餐厨  Dining & Kitchen 

连接客餐厨的长廊由于良好的采光,丝毫不显局促,连通的空间增强了家人之间的互动,一个人下厨也不再孤单。


一家人齐聚一桌享受美食,这样的幸福画面是女主人对美好生活的预期。喜好料理的女主人对自己的“地盘”有着较高的要求,设计师特意设计了3.5米长的L型岛台,连接着厨房与餐厅。

可容纳 6-8 人同时用餐的实木餐桌方便了亲友间的偶尔小聚,闲时亦可用来办公和做手工,一物多用。上方吊灯的灯轨设计成可移动式,灯罩造型好似餐盘,简洁而不失趣味。
::
主卧  Host Bedroom 
主卧由寝区和更衣区组成,白色搭配原木定下了温暖的基调,方正的格局与天花板的弧形线条形成对比,丰富了空间的场景。
床头板延续整体温馨的木质元素,延伸出的小平台则化身床头柜,简约实用的挂衣梯靠墙而立,透着一丝随性和慵懒,让疲惫的身心得以放松。

卧室内有一个衣帽间是女主人一直以来的梦想,并希望将它安置在卧室一角,后经设计师整体规划决定改为放在窗边,以增加采光和优化动线。

衣帽间的推拉门在保护隐私和透光之间实现了平衡,给人以通透时尚感,隔而不断的设计也让整个主卧空间视野更为开阔。
::
儿童房  Children's Bedroom 
童年的幸福会影响人的一生,它与个人成长环境有关。为了让小主人的童年回忆多些美好和浪漫,设计师特意设计了一个“城堡”,颜色也以粉嫩色系为主,营造出温柔梦幻的氛围。

划分床铺和游戏区的格栅好似城堡的围墙,守护着小主人,地台设计则让二者之间的界限更为清晰,高低错落的设计更增强了仪式感。迈下台阶时就像是从城堡中走出来,童趣且梦幻。
设计师的巧思深得萌娃欢心,也让童心未泯的年轻夫妇惊呼“不想长大”!


图片来源:寓子设计
合作联系
广告合作:QQ 2376181903
咨询&找设计师:微信 zc19941873651
作品投稿邮箱:578809721@qq.com
到顶部