飞机制造师35W改造130㎡老房,居家办公两不误,还能在家玩摇滚


| 2021筑巢奖-普通户型专业金奖作品 |

生活不仅仅只有一种活法,一个人对人民的服务不一定要站在大会上讲演或是做什么惊天动地的大事业,随时随地做自己能做的;每时每刻告知自己知道的,无形中就是替国家播种、垦植。
业主为四川成都夫妻二人,还有两只可爱的小猫咪,男主人是一名酷爱摇滚的飞机加工制造者。该项目为旧房改造,建筑面积130㎡,套内面积100㎡。以家庭关系为主线条,达到工作与居住空间共融,是一个人宠共存,具备一定的社交功能的空间。 
设计师从"后疫情时代"课题作为设计的出发点,将"健康生活"的理念能真正被纳入进生活的常态之中。让我们对住宅的期许回归本原、回归质朴、回归谦逊,它不再需要展现什么给旁人看,更多的是对居住者的呵护。
::
客厅  Living Room 
客厅以白色为主打色,沙发背景墙进行了留白处理,只以一个蓝色挂画作为点缀,简约大气,让整个空间视觉上更加开阔。整个客厅部分没有传统的意义上的电视背景墙,而是以镶嵌式的柜体形式呈现,让细碎繁杂的物品都有了栖身之所,成就了整体空间的整洁干净。


减少出行,居家生活成为了近几年的生活常态,也是现在所倡导的。客厅作为一个家公共的活动空间,理应承载的更多。设计师将投影幕布巧妙隐藏在一体柜前方,大屏的幕布既可以满足日常观影娱乐,又可以实现居家办公、远程汇报的需求,可以说是办公家居一体化。

在实现功能化的同时,清晰的棱角与线条使整个空间多了一份硬朗利落,也十分符合业主简约开放的审美。而圆弧型的白色沙发也给整个空间增添了一丝柔和,打造出了坚毅纯净的视觉感官。


::
厨房  Kitchen 
厨房本是最具烟火气息之地,但设计师考虑到疫情使我们的生活空间不断压缩,所以不再局限于特定场合完成特定的事情。一杯醇厚的咖啡、一顿飘香四溢的餐食、一只伏在身侧的猫咪,都以它独特的方式让主人在每一个昏昏欲睡的清晨,带来精神刺激与灵感。

开放式的厨房与餐厅连接一体,少了些距离,多了些陪伴。圆形的餐桌少了方桌的争锋相对,多了份围合而成的温暖。即可以作为随性自然的餐饮之地,也可以是三五好友对谈的栖身之所。

餐厅和阳台一门之隔,打开长虹门阳光倾泻而下,打在身上暖意十足,家庭成员—猫咪也可以尽情的享受它的日光浴。而当强光出现时,长虹门会轻轻拖住光线并柔化,使柔光散入各地。


::
卧室  Bedroom 
分隔墙之内是男女主人的卧室,床头浅灰的艺术纹理漆,与白色的墙面、灰色的衣柜串联在一起,灰色衣柜门是手风琴一般的折叠结构,通过拉动、折叠,使得处于空间角落的衣柜拥有高度的灵活性。黄铜色金属的台灯,也和男主人喜好不谋而合。


次卧作为父母偶尔拜访的居住之地,不同于其他空间的黑白灰,而是采用了纯木色。白色的纱质窗帘,富有纹理的床头背景墙,与木制地板,木制墙面结合得恰到好处,加上绿植的点缀,生出一种宜人之感。


隐藏式的嵌入式衣柜保证了空间的完整度,纯白色的电视背景墙与木色的电视柜,也有一种温雅舒适的质感,找到了父母审美中的适度。

::
工作室  Workroom 
工作区和主人卧房的分割墙内置有充足的隔音棉,在这里男主人可以肆意完成他的摇滚梦,在生活与工作共融的情况下,满足在空间内完成工作的要求,同时还保证独属于“我 ”的私密性。换句话来说,这在某种程度上调节着内在的自我与外界之间的关系。

区域性的空间设计,对着墙面进行延长设计,可以让夫妻二人一起工作,互不打扰。

从这些精密器具就可以看出男主人的工种,虽然做着最严苛精细的工作,却有着最激情外放的爱好。工作与爱好并不冲突,要摇滚更要强国。


项目名称:蜗角之家
设计风格:现代
项目地区:四川 成都市
项目规模:130㎡
建设成本:35万元
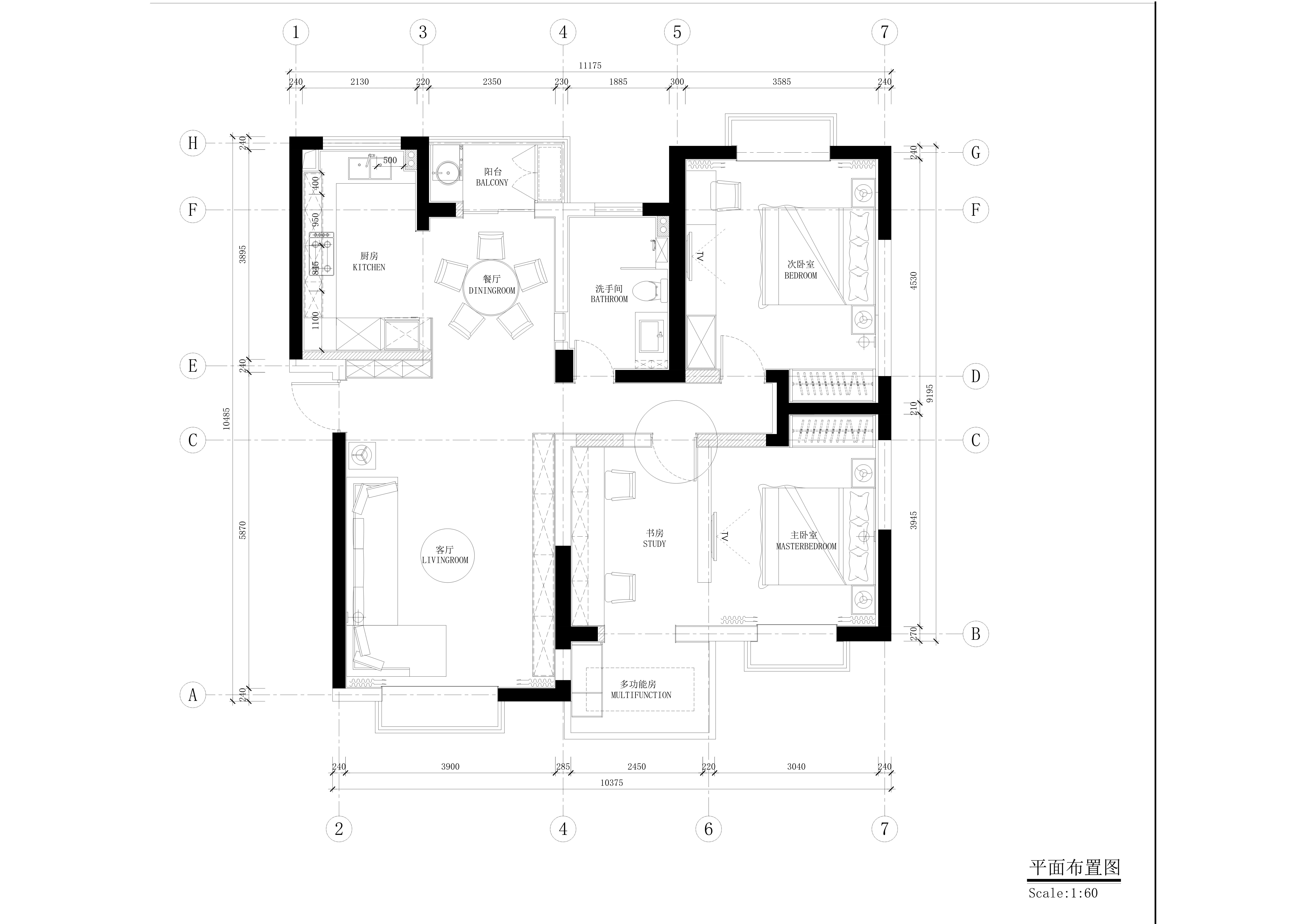
  关于项目平面图  

 关于项目设计师

设计师尹航

“筑巢奖”于2009年创办,现已成功举办十届。由筑巢奖组委会独立运营,累计近6万人次报名参与,征集作品量近10万。“筑巢奖”关注年轻设计师的成长,倡导以人为本,关注民生,推广具有普适性和示范性的设计,致力于打造中国具有权威性、公信力和影响力的室内设计赛事。
合作联系
广告合作:QQ 2376181903
咨询&找设计师:微信 zc19941873651
作品投稿邮箱:578809721@qq.com
到顶部