小户型不配装新中式?花20W改造重庆79㎡一楼带院子的两居室,想直接住到退休......



最近总有网友在后台留言说想看“新中式”,近几年,随着国潮的复兴,新中式装修也迅速走红,端庄典雅的“中式美学”俘获了大批业主的心。
然而,“大宅才配装中式,小户型就别想了”、“新中式还是需要大房子,空间大才能营造出留白的意境。”......其实很多人对新中式的误会还是太深。

小户型就不配装新中式了?79㎡,20W,家有俩娃,超多储物空间,看上去还很「极简」......今天这个改造案例,绝对用实力反驳了这些对「新中式」的刻板印象。
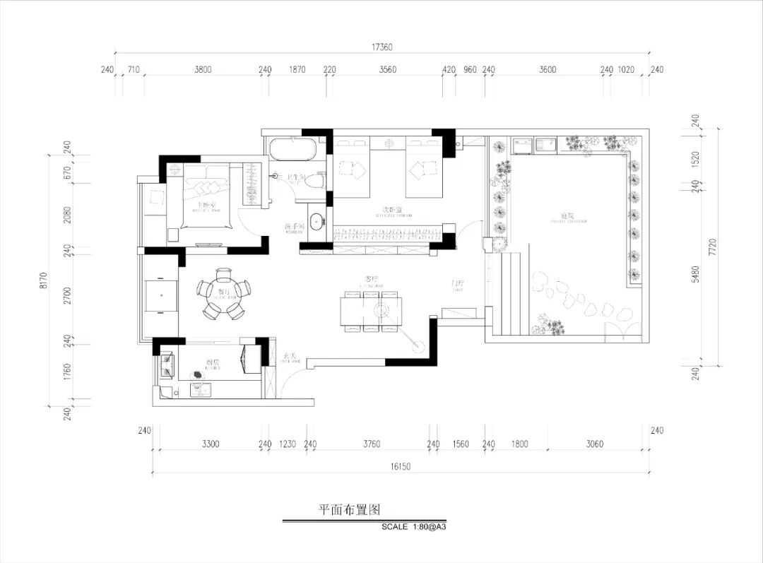
房屋信息
户型:两室一厅
面积:79㎡
花费:20W(不含电器)
坐标:重庆永川
本案位于重庆永川,是个有两个男孩的四口之家,屋主为了孩子上学方便,买下这套老小区里的清水房,房子位于一楼,带个 30㎡ 的花园,套内面积约 79㎡,屋主花了20W进行改造,对房子的改造需求有三点:
① 喜欢中式风格,花费要在预算范围内
② 收纳空间充足,屋子整洁有序
③ 不要沙发和电视

在格局的改动上,设计师将主次卧对调,大房间作为儿童房,让两个儿子都有了自己的床,同时将房门移到外侧花园门廊处,原本的房门位置做了洗手台外移,卫生间实现了干湿分离。

想要极简的效果,空间看上去就不能太「满」,但一家四口的收纳需求仍要满足。设计师打造了大量毫无存在感的封闭式收纳空间,让「留白」与「储物」得到了最好的平衡。

国风轴测图
01 / 玄关
巧用留白、中式美感
全屋共有两个玄关,一个是原本的入户玄关,设计师在这里定制了一面灰色收纳柜,用来收纳鞋子和一些清洁物品。中空部分装上了隐藏灯带,细微处的灯光提升了空间层次感,几个古朴的陶罐点缀其间,更添几分禅意。

原本的阳台被改成了连接客厅与庭院的另一个玄关,完美改善了客厅的采光问题。定制的格栅黑胡桃斗柜端庄典雅,上方一个梅花框将江南园林的东方美感娓娓道来,同时也巧妙地遮挡了配电箱。

日落时分,夕照将斗柜上的枝叶映照在留白的梅花框上,营造出一种别具韵味的中式美感。

02 / 客厅
巧用收纳、化繁为简
客厅没有电视和沙发,只放置了一张两米长的黑胡桃长桌,桌旁摆放着三把圈椅、三张方凳,没有雕龙画凤,简单大方却带着浓浓的东方意蕴。

整屋选用了大量温润质感的黑胡桃家具,空间底色的大量「留白」,让大片深木色家具不会过于沉闷和压抑,就连桌案上的小叶植物也颇具中式风骨。屋主希望一家人都能在这张大书桌上一起阅读、喝茶,而不是面对着电视各自玩着自己的手机。

取代传统电视墙的是一整面墙的无痕储物柜,深灰色调让整个空间多了一些水墨意蕴,设计师担心屋主后悔,柜内也预留了电视电源和网络。柜子的右侧和下方设计了外露的储物格,让整体的空间有了呼吸感,不至于压抑,隐藏的灯带让整面墙都柔和了起来。

除了筒灯和顶灯之外,还在案旁点缀了一盏设计感十足的钓鱼灯,灯下闲读,氛围感十足。



03 / 餐厅
围坐圆桌、寓意十足
餐厅选用了一张胡桃木的圆桌,搭配几把原木餐椅,极具东方色彩,让人回忆起小时候一家人围坐在院子里吃饭的幸福景象。极简的白色实木踢脚线,让整个空间非常干净利落。

屋主原本打算在餐厅墙面挂一幅画,后来却被设计师种草了一个趣味十足的挂钟,极简的铁艺设计让它看起来独特又富有美感,同时也有很强的实用性。


04 / 厨房
半窗采光、简约温馨
 
餐厅的一侧就是厨房,动线十分流畅。设计师建议将厨房做成开放式,更适合小户型。考虑到家里经常做饭油烟会比较大,屋主还是坚持做成了封闭式。

厨房的整体风格偏现代,温润的原木、水磨石瓷砖搭配黑色五金,让整个空间显得整洁而温暖。
厨房的采光大部分依赖于里侧的半窗,而下方灶台又需要有油烟机的加持,屋主选用了集成灶来解决油烟问题,考虑到小儿子喜欢做烘焙,还在集成灶下面装上了嵌入式烤箱。

 
05 / 茶室
巧设茶室,谈天收纳
原本的餐厅阳台被设计成了储物柜+榻榻米形式的小茶室,百叶窗帘打造出曼妙的光影效果,L型储物空间容量十分可观,充分满足了二孩之家的收纳需求。

榻榻米的一侧设置了通高的书架,乍暖还寒的秋日午后,煮一壶清茶在这里小坐,与爱人谈笑风生或与孩子静静读书,轻松又惬意。

06 / 主卧
沉稳素雅,柔软治愈
屋主原本打算将小一点的卧室做儿童房,放上下床。设计师建议她将两个卧室对调,西侧的小房间大人住,将大房间留给孩子,这样两个儿子都能有自己的床。

改造后的主卧面积虽小,但将内飘窗改造成桌子+榻榻米的形式,空间利用率也很高。白墙搭配黑胡桃木的家具,整体视觉效果素雅大方,不落俗套。

书桌与飘窗完美结合在一起,同时也兼具了梳妆台的功能,将桌面的板子立起来,书桌马上变身梳妆镜和储物格。书桌旁的一小块榻榻米既可用于阅读,也可用于储物。与窗台相对的墙面做了整面墙的衣柜,收纳力十足。

双层窗帘遮光又有质感,清风吹动纱帘,夕阳的余晖洒落在书页上,浪漫又诗意。
07 / 儿童房
清爽明亮,动静皆宜
屋主家有两个男孩,大儿子念初中,小儿子念小学,一个好动一个好静,设计师将原本的主卧设计成了儿童房,让两个孩子都有了自己的床,改变了房门位置之后,两个卧室进出互不打扰,都有了各自独立的空间。

儿童房选择了清爽明亮的原木色系,显得更有活力。类似于酒店标准间的布局,让有限空间发挥了最大的用处,一整面墙的储物柜满足了两个孩子的收纳需求。


08 / 卫生间
干湿分离,素雅精致
原户型的两个卧室门是相对的,卫生间也相对拥挤。设计师巧妙地将儿童房入口改到了门厅阳台处,在原房门的位置做了洗手台外移,让卫生间实现了干湿分离。


洗手台外移后,一家四口共用一个洗手间的压力得到了缓解,内部空间有了更大的余地,浴室也有了足够的空间放下浴缸。选用黑色的卫浴五金让整体空间更有质感,嵌入式大理石台面没有卫生死角,更好清洁打理。


 
09 / 庭院
绿草青石,信步闲庭
庭院的面积不大,能够发挥的空间也很有限,设计师为了实现预想的设计风格,专门驱车重庆,拉来了一整车的植物,和助理栽种到深夜。棕榈树、芭蕉叶、散尾葵,数种植物都展现着他们勃勃的生机。

绿茵草地与青石板的设计,让人联想起颇具禅意的日式庭院,晚风徐徐,伴着朦胧的月色,便可以信步闲庭,享受难得的静谧时光。

“春有百花秋有月,夏有凉风冬有雪。若无闲事挂心头,便是人间好时节。”
没有纷繁复杂的元素堆砌,也没有雕龙画凤的冗余装饰,极简之中饱含浓浓的东方意蕴,摩登之中充满禅意......看完这个小户型新中式改造案例,你是不是也对“中式美学”有了全新的理解?快在评论区和大家一起交流讨论吧!
案例、图片素材来源:南也设计工作室

筑客设计师·每日推荐
↑点击上图,预约设计师↑
爱生活,爱工作!
让设计提升生活品质,用生活感知设计温度。
我是张海莹,我在筑客
合作联系
广告合作:QQ 2376181903
咨询&找设计师:微信 zhuke345
作品投稿邮箱:578809721@qq.com
到顶部