继续操作前请注册或者登录。

无锡126㎡极简现代风两居室,繁华过后尽享世间宁静之所......



从前的日色变得慢
车、马、邮件都慢,
一生只够爱一个人。
——木心《从前慢》
20世纪中期,著名现代建筑大师密斯·凡·德·罗,提出 "less is more" 的美学理念,极简主义逐渐形成一种时尚风格,融入到人们的生活方式,并延伸至品味与哲学。

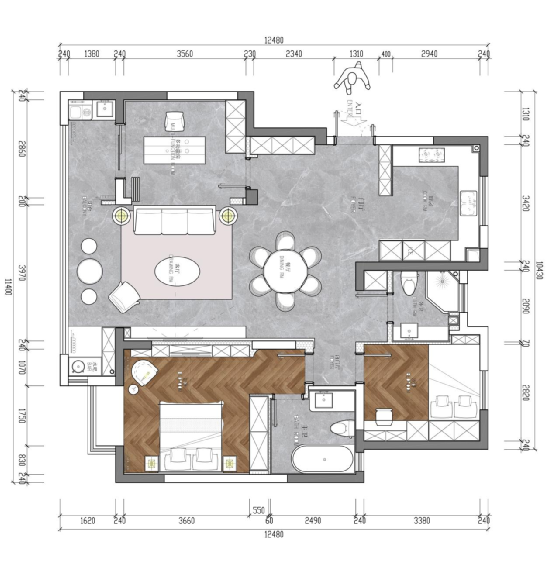
本案位于江苏无锡,是个126㎡的两居室,屋主喜爱极简风,希望自己的家简洁大方,有很多收纳空间的同时还要满足日常生活所需的各种功能性需求,是个可以休憩放松的温馨港湾。设计师通过对屋主生活习惯的敏锐洞察,对全屋空间进行了合理规划,用优雅的设计语言为屋主搭建了梦想之家。
.01
客厅设计
客厅是极简的现代风设计,超大的落地窗设计让空间更加敞亮通透,坐在家里就能感受四季变迁和万家灯火。整个空间优雅温馨,独处时与美景作伴,或闲暇时邀上三五好友,共话温馨琐事,都是一种极致的享受。

深灰色布艺沙发与皮质单人椅十分有质感,错落的圆形小茶几简洁实用,空间也不显拥挤,一盏极具设计感的落地台灯倚靠在沙发旁,优雅独特。

客厅尽可能地削减家具,去掉多余的装饰品,通过艺术品、家具、花艺、灯光的布局,将它们的特性运用到客厅互动场景之中。


自然光的流动与停留拉近了与自由对话的距离,底部灯带的点缀将氛围映衬得更加柔和,雕塑小品在极简空间中的叙事,呈现出不拘一格、蕴含丰富意趣的诗意场景。



.02
书房设计
书房采用了半开放式设计,与客厅仅相隔一镂空隔断,整个空间和客厅融为一体,采光和通风被双重优化,视觉得到了延伸,打造出两个互相沟通但又各自独立的空间,既可以安静地看书工作又可以随时看到家庭成员,简直是隐秘与开放的完美结合。

.03
餐厅设计
餐厅延续了客厅低调优雅的风格,灰绿色的餐椅、白色大理石的餐桌搭配竖条纹电视机背景墙和黑色大理石踢脚线,让空间呈现出完美的高级质感。餐桌上金属质感的水果托盘和抬头向落地窗远处眺望的陶瓷摆件人偶,整个空间精致细腻又充满艺术感,脱离了柴米油盐的琐碎日常,无拘无束的生命才是最自然的。

.04
卫生间设计
卫生间以墨绿色为主色调,白色墙砖与灰色格纹浴缸搭配墨绿色墙面,复古又独特,金色的卫浴五金镶嵌其中,打造出复古时尚的视觉感受。在洗漱沐浴的时候,按下音乐的播放键,陶醉在自己的精神花园中,一定是最治愈的时刻。

.05
主卧设计
主卧以柔和的浅色调营造出优雅轻盈的起居环境,线条的疏密变化是打造层次感的利器。床是温暖的焦糖色,灰色床单随意折叠,开阔的落地窗,晴时看万顷蓝天,阴时观满城烟雨。日月星辰,美景作伴,渐入梦境。

.06
主卧卫生间设计
主卧拥有单独的卫生间,选用了纯白色调,整个空间筒灯环绕,见光不见灯的视觉感,营造出高品质的卫浴氛围。可旋转置物架方便屋主拿取淋浴用品,释放了转角处的收纳空间。悬浮洗漱台,增加了收纳空间的同时也更好清洁打理。整体选用白色瓷砖和棕色木饰面框,简约而不沉闷,小巧却精致有档次。


.07
次卧设计
次卧改成了多功能室,整体选用了奶白色调,温馨优雅。采用榻榻米+书桌+衣柜的组合式空间,最大可能放大视觉空间的同时,既能满足舒适的睡眠空间,又能让次卧变成家中的储藏中心。利用整体橱柜打造一体化书桌和开放式储物柜,让次卧拥有了简易的办公学习空间。

生活需要时而放慢步伐,在忙碌中按下暂停键,看一看来时的路,望一望前方的路,简化生活中的琐碎,让心灵得以喘息,留出空间进行遐想,享受细微之处的极美。设计师用独特的设计语言打造了静谧祥和的家居生活空间,全新的美好生活将在这里展开。
【项目信息】
项目地点:江苏无锡
设计风格:现代
面积:126M²
项目花费:90W
  关于项目平面图  

  关于项目设计师  

设计师张从华
意大利米兰理工大学硕士 (POLIMD)、清华大学室内设计专业研究生、亚大建筑师与室内设计师联盟会员 (IAI)、中国建筑装饰协会高级室内建筑师 (CCIA)、江苏省室内设计师学会监士 (JSID)、无锡室内设计师学会副秘书长 (WID)

筑客设计师·每日推荐
↑点击上图,预约设计师↑
爱生活,爱工作!
让设计提升生活品质,用生活感知设计温度。
我是张从华,我在筑客
合作联系
广告合作:QQ 2376181903
咨询&找设计师:微信 zhuke345
作品投稿邮箱:578809721@qq.com
到顶部