81㎡导游小家,游历各地25W打造东南亚复古风,色彩多元却意外素雅



对于久经都市喧嚣与纷扰的现代人来说,心中都有一个田园情结,田园中的花有百色,各有千秋自不同。它可以有如“暮霭生深树”般清幽怡然,也可以如“阴阴夏木啭黄鹂”般鲜活生动,不仅代表着“回归自然”的质朴,它独特的浪漫和祥和也取决于你的想象力。
本案位于天津,面积81㎡。设计师常规的基础色彩配以颇具艺术性的图案内饰,带来颠覆性的惊艳体验。而带有浓郁自然风情的图案以及色彩的填充,更是将居室打造的十分清新怡丽。

::
玄关  Porch 
玄关深褐色的地板砖复归于朴实,浅绿色的墙是自然的气息,瓶中的鲜花,生机勃勃,穿梭于布艺印花之间,为室内带来童话般的鸟语花香。


入玄关,一侧是暗红色的储藏柜,书籍与奇趣的小摆件映入眼帘。深木纹不假巧饰的自然抒写,与同色系的木制地板自然呼应,空间摒除了一切的华美细巧的精雕细琢,反而凸显出一种明朗的情调,在全方位和多角度上体现整个屋内结构充满田园气息, 实现人与自然环境的和谐统一。


::
客厅  Living room 
客厅作为居家住宅中的公共区域的中心位置,展示了主人的品味与生活态度。居室以淡雅为基调,沙发与藤椅的组合,不仅注重与硬装的色彩及图案进行呼应,且材质选择上的变化,营造了不同触感,体现空间包容性。




藤编与木质,仿若珠联璧合,木质的庄重与藤织的悠闲结合,整个空间明亮且素雅,电视旁的是欣欣向荣的向日葵,刚柔并济,天然优雅,碰撞出不俗的品味。


老式缝纫机放在墙边毫不违和,甚至多了一丝恰到好处的复古与玩味。


::
餐厨  Dining room 
厨房小巧而精致,中式餐桌满足居者喜好的同时,竹木的墙绘与木色的百叶帘,为这方柴米油盐的空间带了清新自然的气息。


精炼的动线、量体、空间造形的延伸、交迭以及适度的留白,又凝聚了空间的形与神。设计过程中,设计师充分尊重了物象的本质,在去除无实用的装饰物的同时,又保证了收纳空间的玄静、内藏,自然而和谐。

::
卧室   Bedroom 
日常起居之卧室,将娴静优雅藏纳于每一次着墨中,高背床和复古气息满满的梳妆台,搭配线条简约精致的铁艺灯饰,充分诠释了优雅生活的同时,又不失家具的隽永质感。


窗外阳光明媚,素净的白纱恰到好处地维持居室与室外的关系,保持室内的隐私同时,又不会错过曼妙的阳光。棉麻的床品自带柔软,沉稳却温暖的安宁感,两相安然,岁月静好。


忙碌的生活让现代人厌倦了都市的喧嚣,可是现实的压力又不可能让所有人能够真正地远离都市生活。于是人们开始在生活中寻求二者的平衡,变成他们最好的港湾。

项目名称:艺术玩味
设计风格:东南亚
项目地区:天津
项目规模:81㎡
建设成本:25万元
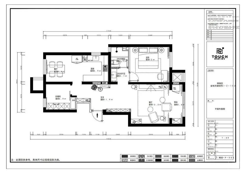
 关于平面户型图

 关于设计师 

设计团队:触觉设计

“筑巢奖”于2009年创办,现已成功举办十届。由筑巢奖组委会独立运营,累计近6万人次报名参与,征集作品量近10万。“筑巢奖”关注年轻设计师的成长,倡导以人为本,关注民生,推广具有普适性和示范性的设计,致力于打造中国具有权威性、公信力和影响力的室内设计赛事。
合作联系
广告合作:QQ 2376181903
咨询&找设计师:微信 zhuke345
作品投稿邮箱:578809721@qq.com
到顶部