北京五口人住奇葩户型,66㎡的空间凭啥这么能装?



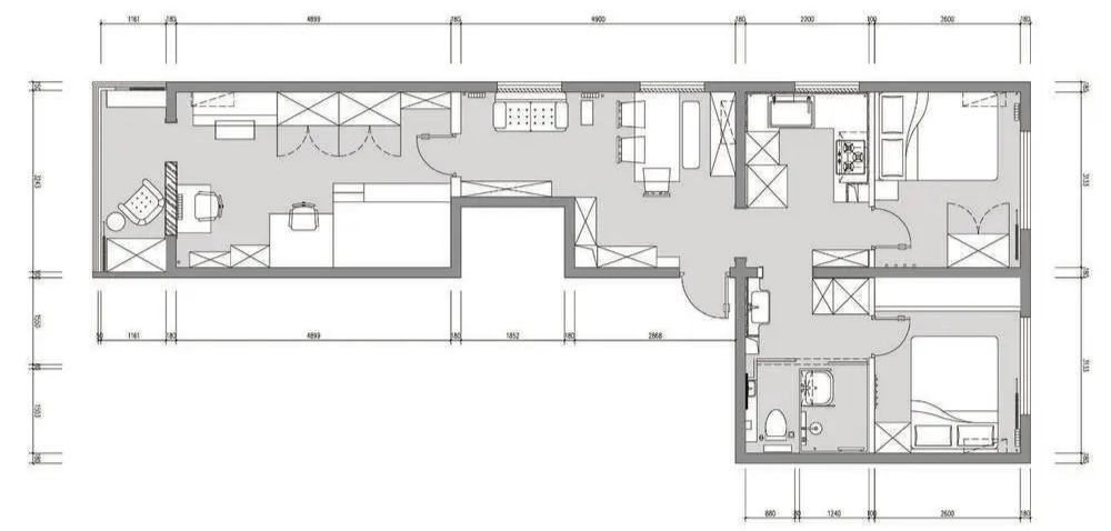
本案位于北京,面积66㎡,屋主是三世同堂的五口之家。房子原始结构是一字型,客厅、厨房和卫生间处于户型中央,最大的卧室在户型南边,另外两个较小的卧室在北边。

设计师综合了五口之家的日常使用需求,重点对公共空间,以及厨房、卫生间进行了改造。具体如下:
1、增加玄关的收纳空间。
2、客厅通往卧室的过道,改造成小书房。
3、厨房改成U型开放式。
4、卫生间改成三分离,马桶间和淋浴间单独设立。

.01玄关
原户型没有玄关空间,整体空间比较局促,设计师通过两个立柜解决了玄关的收纳需求,也让回家更有仪式感。

收纳柜侧面嵌了一个半高鞋柜。鞋柜上面整齐陈列着小物件收纳盒、鲜花、有纪念意义的工艺品等。一进门,归家的仪式感和舒适感扑面而来。

鞋柜侧面是造型圆润的鞋架,家里的五口人一人一双拖鞋,不多也不少,刚刚好。
.02客餐厅
正对大门的是客厅兼餐厅空间。原木色餐桌搭配一条长凳和三把椅子,足够全家人用餐。方形的原木餐边柜解决了大部分餐具杂物的收纳问题,两个墙面隔板用于陈列展示主人的有趣收藏和不凡的品位。


棉质餐布和百叶窗的设计打造出温暖的氛围,铜灯吊顶简洁大方,营造出用餐的氛围感,为空间增添了些许暖意。
小物品被整齐地收纳陈列在隔板上,增加个性化趣味的同时,让整个空间充满了浓郁的生活气息。

由于公共空间有限,餐厅兼具客厅功能。因此,在餐桌旁边设计了投影幕布。

家具全部采用细腿设计,视觉上更加简洁。防盗门的背后,用收纳盒和磁力挂钩收纳口罩,方便进出家门摘戴口罩,因地制宜的收纳小细节,凸显女主人细致周到的生活态度。

.03厨房
原户型厨房面积较小,设计师通过压缩北边的卧室,扩大了厨房的空间面积。

开放式的U型厨房,空间利用率极高。蒸烤箱和双开门冰箱等电器大大提高了下厨的效率和体验感。“洗、切、炒”的动线十分流畅,台面采用可丽耐材质,造型美观,清洁打理也很方便。

灶台下方是定制橱柜,设计巧妙,收纳强大,连柜体底部的空间都完全利用上。分层分区收纳,让拿取物品更加方便。

厨房一角靠墙摆放半高收纳柜,收纳柜上面设有隔板。女主人心爱的餐具、杯具,有藏有露,整齐有序陈列,令人赏心悦目。

.04书房
从餐厅走向卧室时,有一个不窄的过道,可以充分利用起来。靠墙放一个半高的书柜,窗下摆一件舒服的矮脚沙发,便是极好的阅读空间。

书柜下部,用不同尺寸的收纳盒对孩子的玩具进行分类收纳。将每个收纳盒上打上不同标签,方便孩子们快速拿取。在一个午后,泡一杯清茶,翻开一本好书,开启一段或奇幻或温暖的时空之旅。

.05卫生间
卫生间的整体改动比较大,为了提高卫生间的使用舒适度,牺牲了部分卧室的空间,将原卫生间的空间扩大,进行了三分离设计。

洗漱区、沐浴区、马桶区三个空间相互独立,互不干扰。大大提高了各区域的使用效率,优化使用者的体验感受,还可以方便各区域物品进行分区收纳。

浴室利用玻璃做了半隔断,既分隔了水汽,也不影响采光。马桶间采用了壁挂马桶,颜值高,清洁也更加方便,不留卫生死角。


迷你洗手池,不占空间的同时颜值也很高,台盆下方也可以利用起来,做了简单的收纳设计,用来收纳清洁用品,十分实用。

.06
儿童房
走过阅读区,是儿童房。上下床是业主家的旧家具,放在新家中再利用,气质匹配。

儿童房空间尽量减少家居摆设,足够的留白空间,为姐妹俩玩耍提供条件。阳光充足的房间,最适合孩子们健康成长。

.07阳台
阳台被打造成了一个小小的花房,朝气蓬勃的绿植搭配图案活泼的地砖,让这个区域充满活力。


.08阳台
另外两间卧室,在户型的北向。其中,主卧设在卫生间旁边。

卧室床具延续简约的整体风格。床头设五斗柜,满足收纳需求。

整面衣柜的收纳容量巨大。三扇折叠门可以自由推拉移动,方便拿取物品。巧用收纳盒,帮助衣柜井井有条,收纳有序。

老人房在厨房旁边,和其他房间风格一致。

家是繁华过后的心灵栖息之地,设计师用独特的设计语言为屋主打造了梦想之家,全新的美好生活将在这里徐徐展开......
  关于项目设计师  

设计团队:茗家设计

“筑巢奖”于2009年创办,现已成功举办十届。由筑巢奖组委会独立运营,累计近6万人次报名参与,征集作品量近10万。“筑巢奖”关注年轻设计师的成长,倡导以人为本,关注民生,推广具有普适性和示范性的设计,致力于打造中国具有权威性、公信力和影响力的室内设计赛事。
合作联系
广告合作:QQ 2376181903
咨询&找设计师:微信 zhuke345
作品投稿邮箱:578809721@qq.com
到顶部