继续操作前请注册或者登录。

不足60㎡装成大平层?小户型的装修智慧,都在这里了



面积只有两位数的小房子,似乎很难容纳我们对家的所有期待和要求。
可这些小户型屋主,不仅能优雅地榨干每一寸空间,还能搞定采光、收纳、三代人同住等一系列问题,在几十平米的小房子里过出了大平层的生活。

老破小的逆袭,人人都爱看。今天小筑特地挑选了3个各怀绝技的小房子,它们既刷新了我对老破小的认知,又打破了只有大房子才好住的刻板印象,快来一起瞧瞧。
.01
55㎡ 6口之家
三室两卫,还有舞蹈室
这是一套位于广州越秀区恤孤院的优质学区房,要住下夫妻2人,5岁的女儿、2岁半的儿子,还有不经常来住的双方的父母。

屋主希望能给孩子们一个阅读、绘画的地方, 希望有1个大书桌陪伴孩子看书;
屋主有练瑜伽的习惯,女儿学习舞蹈,希望有地方可以练习;
小孩子玩具多,需要收纳;
经常在家做饭,厨房的功能和收纳一定要十分给力。


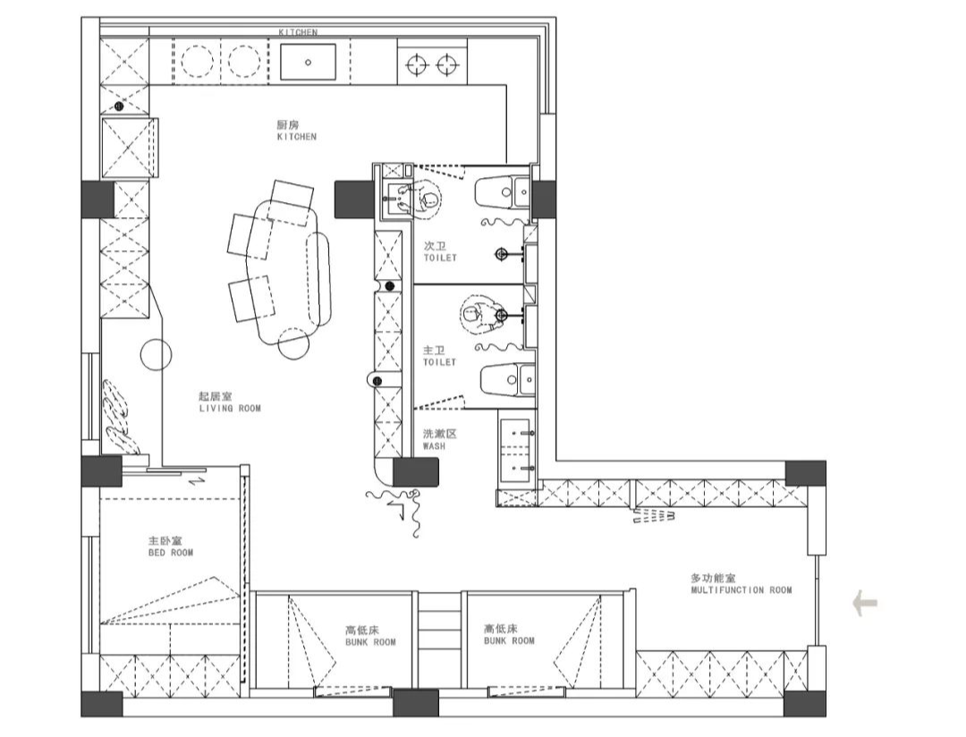
滑动查看改造后户型图
入户玄关规划成了一个复合功能区,两面设计了充足的收纳柜,满足一家6口的收纳需求。
还可以当作舞蹈室,一侧柜门设计了整面镜子,保证母女练习舞蹈时有全身镜。

小朋友和长辈的卧房,通过高低床形式,由三个睡觉区+一个玩乐角落(可放书桌、玩具、衣物)组成。

设计师把全屋采光和视野最好的一整面,留给了客餐厨。一张原木桌既是餐桌也是书桌。


视野超好的阳台改成了厨房,做饭时就能感受窗外美景。长达6.6m的台面,足够一家人发挥厨艺啦。

主卧设计了榻榻米地台,整体抬高并且放置了1.8米床垫。用木制移门来解决私密性的问题,让屋主有了独立的生活空间。

全屋设置了两个卫生间,主卫还特意为两个小朋友设计了加长洗漱区。

次卫是屋主夫妻使用,每个洗手间都有充足的马桶区和淋浴区,6口人居住也互不打扰。

.02
54㎡ 三口之家
一居变两居,还有41㎡花园
人人都梦想拥有一栋带花园的房子,这对90后年轻小夫妻也不例外,为此他们特地买下了这套二手的一室一厅的底楼公寓。

原本的一室一厅无法满足一家三口的需求,还需要儿童房、书房和超强的收纳;
此外游戏区、阅读区、钢琴区、影视区也一个不能少;
房子位于一层,女主人对噪音比较敏感,保证空间通透的同时,必须处理好卧室的隔音。

入户门厅的过道,设计了一整面墙的穿衣镜,放大空间的同时也兼具实用性。
悬空的鞋柜和衣柜设计,既满足了大量收纳的需要,又让人觉得过道不那么狭窄。

客餐厅一体化的设计让烹饪、用餐、会客、钢琴演奏、娱乐、观影等功能集成在统一的公共区域,最大程度上利用了原有空间。

设计师巧妙地将“岛台+餐桌”连为一体,增加了厨房的台面操作空间,动线上也更简洁,一转身就可以把做好的饭菜端上桌。

改造后的主卧,用地台将睡眠区整体抬高到与窗台平齐的位置,躺在宽敞的大双人床上,满眼都是阳光与绿色的花园美景。

通顶的衣柜和一整面墙的柜子打造了足够的收纳空间,用来收纳日常所需的所有物品。

设计师把原本狭小的厨房改造成了儿童房兼书房,目前暂时作为书房,未来会作为宝宝房。

改造后的庭院在转角设计了卡座,铺上了防腐木地板,水泥花坛里种上了鲜翠欲滴的凤尾竹,郁郁葱葱的绿植环绕包裹着整个花园,幽静又美好。

.03
28㎡ 4口之家
一分钱没花,改出4室1厅
这套案例来自一次公益改造,委托人阿美、女儿君君、阿美妈妈以及阿美姐姐四人蜗居在仅有28㎡的60年代老房里。

妈妈阿美一个人背负着全家的生计。阿美姐姐得了严重的疾病,需要长期住院。女儿君君活泼开朗,成绩很棒,但只能趴在膝盖上写作业。外婆快80岁了,还在做义工。和所有老人家一样,也有囤积旧物的习惯。
▼改造前

设计师将整个空间划分出了客厅、厨房、卫生间、学习区以及四个人的卧室,还设计了22立方的储物收纳空间,空间利用几乎做到了极致。
进门便是玄关,入户门一侧连同走廊定制了满墙的收纳柜。冰箱、洗衣机、试衣镜统统藏进了这个巨大的满墙定制柜里。

定制柜长达5.5米,高3米、进深65cm,足以容纳大量的生活用品与一家四口的生活衣物。

延伸定制柜,在窗边做了卡座。这里足以坐下5个人,即使家里来客人也完全不用愁。
在这里,妈妈偶尔可以在旁边帮君君辅导作业,聊天,享受母女间的幸福时光。

卡座+书桌+餐桌椅+另一组到顶高柜,围合成了本案的家庭核心区。集中了吃饭、看电视、书房的功能,全家人可以在这里享受天伦之乐。

卡座和沙发下面都做了抽屉,以保证储物空间的充足。

房子层高3米,只比普通层高高一点。为了塞进4间卧室,设计师将走廊高度留到1.9,m,上方的1.1m放张床躺下来也不至于太压抑。另一侧1.5米、1.5米均分,楼下做床铺,楼上又多了学习区。

床铺下面做了储物箱,房子小就要不放过每一寸空间。

阿美对女儿君君的期待很高,她希望君君将来可以成为对社会有用的人,不用再拿低保。所以阿美一家非常看重学习氛围,希望能在有限的空间里,给君君更好的学习条件。

改造后的阁楼也有一张书桌,君君想在哪里写作业都可以。阁楼上也做了定制柜,可以放置床品、换季衣物。

电视柜上方大大的书柜也是为了君君而准备的,君君的成绩很好,还养成了爱看书的好习惯。从阁楼一直延伸到窗边,可以装下约300本书。再也不用担心书多不够放的问题。

这套老房子在改造前是没有卫生间的。冬天洗澡只能在寒冷又透风厨房用盆接水冲洗。
▼改造前

设计师在厨房的另一侧增加了淋浴和洗手台,构成洗浴区,虽然没有下水,无法设置马桶,但也极大地改善了居住体验。

厨房则夹在卫生间与玄关之间。中间的走廊距离在1.3米,两人下厨也完全不会拥挤。

两道隐形的推拉门,可以让厨房独立起来。当炒菜有油烟的时候,将这个门关起来,厨房就是一个独立的空间,不仅阻挡了油烟,视觉上还是通透明亮的。

对于大部分家庭来说,小户型只是人生的一个过渡阶段罢了。生活会越来越好,房子也会越住越大。
每个装修案例都不可能完美无缺,但总有可以借鉴的闪闪发光之处。

筑客设计师·每日推荐
↑点击上图,预约设计师↑
爱生活,爱工作!
让设计提升生活品质,用生活感知设计温度。
我是任大罡,我在筑客

“筑巢奖”于2009年创办,现已成功举办九届。由筑巢奖组委会独立运营,累计近6万人次报名参与,征集作品量近10万。“筑巢奖”关注年轻设计师的成长,倡导以人为本,关注民生,推广具有普适性和示范性的设计,致力于打造中国具有权威性、公信力和影响力的室内设计赛事。
合作联系
广告合作:QQ 2376181903
咨询&找设计师:微信 zc19941873651
作品投稿邮箱:578809721@qq.com
到顶部