90后海归夫妻的100㎡住宅,藏品众多、山景环绕,美炸了!



本案位于广州市区,四周被山林环绕,每个窗外都有自然的风景,这对于广州市区来说是很难得的,而屋主是对游历世界的海归夫妇,他们对生活中的美感有要求,对艺术和设计有独到的见解,他们希望自己的家有一定的藏品展示空间,所以这次设计的重点是围绕周围的环境,创造一个舒适放松有质感,模糊室内外边界的家。
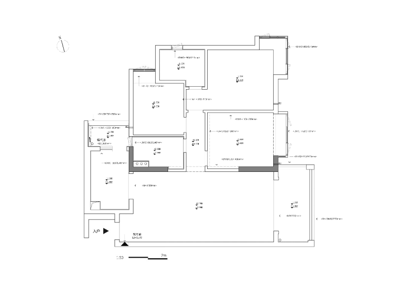
原始户型规整,三房的布局,空间的利用率也比较高,没有硬伤。本案屋主平时家里只有夫妻二人,亲戚朋友偶尔来访,频率并不高,加上近几年内不太考虑小朋友所以并不需要这么多的房间,这次的设计就是围绕这些信息展开的规划。

原始平面图▲

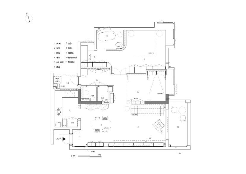
改造后平面图▲
::
玄关  Porch 
玄关区域做了常规处理,在入户的右侧设计师做了鞋柜来满足日常使用。同时安置了一个实木隔板,方便放随身小件。

                                                                          
右侧处的顶天立地的柜体向内延展,虚实结合有藏有露,进门就能感受到屋主的生活品位与兴趣。

在进行柜体制作时,左边弧部分为现场制作,右边则是定制的格板,为了统一两种材质的颜色,设计师特意拿色卡去现场进行了比对。

::
客厅  Living Room 
为了保证客厅视线能够更加开阔通透,特意将空调的出风口安置在多功能房的上方,自然光连同户外的自然景观大面积涌入室内,光线经过平顶的漫反射,让整个家都沉浸在静谧柔和的氛围里。

整体设计延续空间通透、自然的主题,以优雅流畅的动线,若有似无的边界,构筑进退得宜的场域尺度。客厅与餐厅连接处做了一列350深带弧度的柜体,手作感的层板中和一旁工厂定制板的机械感,都让空间拥有了别样的韵味。


拆掉过道原有房间的墙体,引入更多的光线和风景,让室内的每一处都散发出柔和通透的质感。
 

开敞的空间内,不同深浅的木色在此和谐共生。纯粹的用材与配色,奠定简约的精神面貌,重复构成的线条塑造空间的秩序化,形成富有节奏感的视觉效果。

::
餐厨  Dining & Kitchen 
木制古朴的餐桌,让空间被自然所包裹,也奠定空间舒适且松弛的基调。胡桃木餐桌搭配CarlHansen&Son 的CH24餐椅,实木温润的质感在白墙映衬下,显得质朴而沉静。
餐桌上方&Tradition吊灯,圆润柔和,点缀得恰到好处。非洲雕花餐边柜上的墙面添置了一列表面肌理不规则的原木层板,可以用来展示一些屋主的藏品。
                                  
厨房与餐厅之间用玻璃移门区隔,形成一个半开放的设计,原先通往生活阳台的通道被改成厨房的操作台面,上半部开窗,可以将自然光透进来,温暖而有生机。
 

改造之后,优化了空间比例和灯光,结合新的软装让整体的氛围变得不同。

改造后▲

改造前▲
厨房地柜和吊柜用了两种不同的配色,上浅下深,中间露出来的部分是珐琅板,完整一片没有任何缝隙,看起来更为清爽。

 
设计的前提是符合人的需求,采用高低台面的设计,更加符合人体工学。

::主卧  Master Bedroom 
卧室内保持了和公共区域相同的调性,安静、干净。没有繁杂的设计,却显得尤为宁静舒适。

干净的空间配合不规则的手作感矮凳,矛盾亦和谐。既可以随手摆放衣物,也可以作为装饰,让空间更加灵巧、俏皮。

L形飘窗,则恰好成为了可以偶尔休憩、看书的地带,闲适且慵懒。


卧室与起居室以双开木门作为隔断,木门的设计独特而复古,有一种中式的沉稳,又与现代风格完美契合。

主卫的浴室空间特意刷上颜色,更浓郁的涂料结合墙壁预埋的间接照明,增加亲密的氛围感。



::
阳台  Balcony 
保留户外阳台,不封窗,亲近自然。随时推开落地窗,就能感受到自然中的微风拂面,自在、惬意。

::
多功能房  Multi-function room 
留白和写意是生活的艺术,也是一种简约的哲学观。多功能房家具不以常规的布局为范本,而是通过当代的审美趣味组合出活泼的排布方式留白的空间让它有了更多的可能性。

日夜帘的置入可以更好地控制窗外的视线,同时又不会有厚重感。

与之联通的卧室门尝试用对开门的方式,篡改印象中卧室门该有的样子,创造新鲜感。

::
卫生间  Toilet 
 
卫生间采用可折叠的玻璃门连接生活阳台,三分离的卫浴空间可适应不同的使用场景。

暖光下的三分离的卫浴空间,带着一丝昏黄与温柔,通面镜与通排洗漱台,使这个区域有了更多的可操作性,简约实用。

淋浴区则是以灰色瓷砖进行铺贴,更具高级质感,壁龛的设计则是让这个面积不大的区域有了更多的收纳空间。


项目信息:
项目名称:山海
项目地址广东广州
设计公司:不合时宜设计
主案设计师:陈智超
项目面积:100㎡
项目摄影:ALPDRI-业轩
  关于本案设计师  

主案设计师:陈智超
合作联系
广告合作:QQ 2376181903
咨询&找设计师:微信 zhuke345
作品投稿邮箱:578809721@qq.com
到顶部