台州770㎡独栋别墅,内境与外象互通,呈现极致浪漫



生活美学不是一味地追求奢华,而是从生活与细节中,去聚集美学载体,营造属于主人独有的空间气质。
本案是一栋770㎡的独栋别墅,业主有两个非常可爱的女儿,天性活泼。一家人既有喜欢新奇的创意,又有喜欢淳朴的自然,这套案例的设计考虑了家中成员的需求与爱好,以现代风格为主要基调,深色为主旋律,辅以亮色的夹杂,奏响一首关于家庭与爱的歌曲。

.01精神的隐居之所
“朝市太嚣喧,丘樊太冷落,不如我心悠然。”陶渊明为无数人筑起了一个隐世的“南山梦”,而对于现在人而言,家则成为了隐藏一切情绪的妥善之所。以“隐”成就更加强大的自我。
本案地下室并没有印象中的昏暗逼冗,而是以天井式的庭院设计,让处于地下的空间在视觉上抬升,与室外完美衔接,呈现出与自然共处、又隐于喧繁之中的效果。


地下室是一个休闲放松的空间,色彩上以古木棕为主色调,高级又稳重。考虑到南方的潮湿天气,选择较为防潮的石材与岩板为主要材料。这样一个开放式的集合空间,在元素多样的同时毫不杂乱。
不管是柜体亦或是每一个线条,在灯光下呈现冷清高雅的质感,营造出深远意境。


大开大合的尺度,沉稳克制的色调,搭配精致优雅的饰品,彰显出空间的轻奢气质。嵌入式的柜体既可以承载着储物的功能,同时也是收藏的展示之地。


在纷杂浮躁的尘世里,酒窖或许是寻觅归属感的最佳场所。原木与金属结合的独特质感,主人能够在这个空间体验到宁静、安定的气息。

透过酒柜,隐约可见外面的青葱绿意,这是一个精致现代、自然淳朴的独特存在。

从另一个视角望去,则是呈现了延而向上的姿态,楼梯的宛转而上,是一处别样的风景,更是收拾起“独我”通向热切、美满的温馨之路。



.02融合喧闹与烟火气
一楼的空间是极具融合性的,它不像地下室那么具有私密性,反而是更加开放具有包容性的。
客厅透过落地窗结合建筑外的自然环境,镜像出相同尺度的对位关系。围合式的沙发、以及非对称的电视背景形成三维空间里非均衡的视觉美感。看似清爽简约,实则以色彩的差异性来营造层次变化,构成连续性的立面景观。


顺着客厅延伸而去,伫立窗边,旖旎景色尽收眼底。以蔚蓝天空为顶、翠绿草木为底,尽享大自然的馈赠。

地面和背景墙形成色彩与质感上的呼应,呈现出温暖、惬意、舒适的家居氛围。仿佛能够看到一家人围坐在此,欢聚一堂的美好景象。而软装上低明度的灰色、咖色+原木色搭配,在一室之内演绎出大自然的静谧和轮转。


餐厅位置则是上下呼应,顶面的圆形灯带与圆桌之间形成对称式的契合设计。“一日三餐”虽然是简单的字眼,但对家庭来说却有着重要义。“圆”的出现则是杯碟碗筷之间,家人内心流动的情感纽带。

厨房空间以岛台作为分割点,兼作中西厨之用,同餐厅互为功能补充;同时宽敞的尺度令空间拥有足够的操作余地。绿植点缀之下,柴米油盐也有了幸福的味道。


前后两个庭院,饭后可游走于庭院,闲暇之时也可以小坐。感受清风拂过,不管是清晨的暮霭,午后的暖阳,还是傍晚的落日与七彩云霞,都是自然的馈赠。


.03归处的宁静安然
如果说白昼的喧嚣激活了城市热忱,浓墨夜色则催化了每个城中人的浪漫情愫。卧室是最私密且个人性格体现最鲜明的地方,柔软舒适的床,铺满艺术感的摆件,床头令人喜悦的装饰画,这一切都是美梦的组成。

当夜色与浓色退场,晨曦透过窗帘唤醒沉睡的世人,走出床榻的温柔乡,准备开启一日的匆碌日常;卧室设计现代简约,在平和色彩与阳光的照耀下,享受这份沉静雅致。


主卫的这扇窗户可将阳光照入到浴间,推拉门的设计规避了对空间的要求,更为节省空间;黑与白的色彩反差极致且有调性,双台盆的设计满足夫妻二人不同的生活需求,又能互不影响。一天便在这白与韵,色与简之中,正式开始......

.04爱与期盼皆归于此
两个小公主的房间在与整体空间调性统一的同时,增强了色彩的呈现。考虑孩子的成长性,没有让房间内部过于幼态化。另外加强了功能性的设计,不管是储物空间还是学习区都很符合实际情况。


空间上的延续是小女儿房间的内部格局与姐姐保持一致,只是在色彩上做了区分,不偏不倚的同时又能够有差异化的存在;而情感上的延续则是住在空间内的人,那是带有爱与期盼的载体,而在这里会有更多情绪、故事徐徐展开......



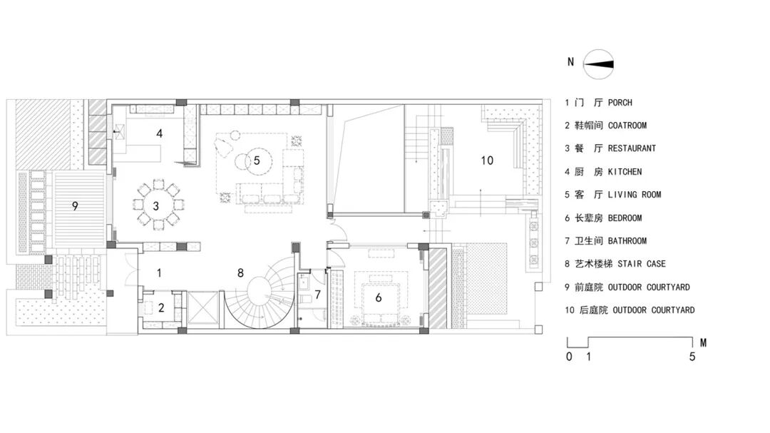
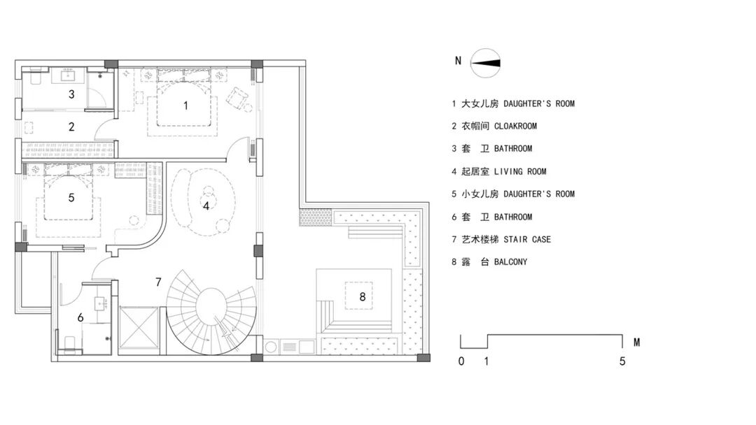
  关于平面图  




左右滑动查看更多图片
  关于本案设计师  

叶祥宝
叶室内设计事务所创始人
所获奖项:
2022年ASIA设计奖、2022年亚洲设计奖、第五届美国AIIDA国际创新设计大奖银奖
WYDF 2021年度大中华区100大杰出设计青年
2021十大设计师奖、2021全球精英大赛奖
2020年金筑奖
2019年第十届筑巢奖、金筑奖
2018年度华语设计领袖榜100位卓越设计人物奖项
2018亚太空间设计奖“空间艺术大师”称号
2018年度4040中国(浙江)设计杰出青年
2017台湾“IDS国际设计先锋榜”金奖提名
2017红棉奖最美雅奢空间设计奖
2017师客莱德年度最佳别墅空间设计奖
2016荣获“台州十大设计师”称号
2016 CIID第二届台州室内设计,最佳住宅空间设计金奖
2016师莱德空间设计奖,“最佳样板房空间设计师”称号
2015第六届筑巢奖
2014第五届筑巢奖
合作联系
广告合作:QQ 2376181903
咨询&找设计师:微信 zhuke345
作品投稿邮箱:578809721@qq.com
到顶部