深圳152㎡老房改造,异形转角空间也能极致利用,谁看了不说绝



生活,一半是烟火,一半是诗心;留一半在烟火丛生里挣扎,还一半让未来的自己留给诗心。
本案位于深圳,面积152㎡,是一个十几年的老房改造。业主希望房屋最终能稳重大方,有味道;休闲雅致,有格调。不要过多深色、杂色,清净而不纷扰。设计师综合考虑空间,尽可能地利用最大化,呈现了一个更加简约,更加宜居的生活空间。

原始平面图▲

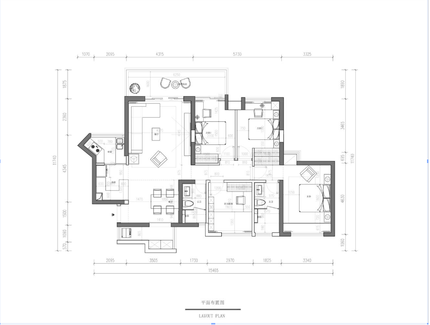
改造后平面布置图▲
::
客厅  Living Room 
客厅的设计围绕生活展开,整体采用灰色两面瓷砖进行铺贴,沉稳又不失高级感。设计师侧重生活,以简约的手法勾勒空间,没有繁冗多余的色调和修饰,简单大方。


无主灯的设计不仅使自然光线与灯光结合的更加自然,也让整体更加简约有秩序感。光线经过平顶的漫反射,让整个家都沉浸在静谧柔和的氛围里。

电视背景墙通过平面整洁的方式与变换的瓷砖背景搭配,令空间层次清晰,并使视觉感受更加宽敞。


::
餐厨  Dining & Kitchen 
餐厅与客厅的连接,在色调和材料的使用上,保持了空间的连贯性,同时,吊灯与餐椅的相呼应,让变化的氛围又不失统一性。

格局上形成开放式,和西餐区的吧台参照呼应,形成互借空间的形式,让空间得到提升。隔而不断,一切都那么自然而然。


中式厨房则是一个独立的个体,玻璃推拉门能够让空间很好的在推与拉之间进行转换。白色的运用在视觉上放大空间,也让这烟火之地多了一丝宁静与自在。

::
卧室  Bedroom 
卧室区域主要集中在一侧,门在色彩的选择上与电视背景墙的的木饰面保持一致,以此来达成整体性。


主卧以木色和蓝色为基调,自然清新,背景墙的板式跳跃,也更加沉稳富有诗意,没有多余的繁复造型。

次卧则是选择了淡雅的粉色,白色墙面与点缀的绿植,呈现一片祥和惬意。嵌入式的床头,让上方有了更多的储物空间,规整但不压抑。


卫生间采用干湿分离的设计黑色边框与灰色主调,高级而有质感。柜体的打造使这个区域有了更多的可操作性,简约实用。

项目名称:一半烟火,一半诗心
项目设计师:危小飞
项目面积:152m²
项目地址:深圳市
项目花费:75W
  关于项目设计师  

设计师:危小飞

“筑巢奖”于2009年创办,现已成功举办十届。由筑巢奖组委会独立运营,累计近6万人次报名参与,征集作品量近10万。“筑巢奖”关注年轻设计师的成长,倡导以人为本,关注民生,推广具有普适性和示范性的设计,致力于打造中国具有权威性、公信力和影响力的室内设计赛事。
合作联系
广告合作:QQ 2376181903
咨询&找设计师:微信 zhuke345
作品投稿邮箱:578809721@qq.com
到顶部