继续操作前请注册或者登录。

160㎡中医的家,看现代设计如何与传统文化结合!


本案位于永威森林花语,是具有北部中原最懂建筑设计美学的开发商旗下第四代静谧系森境社区。历时11年,于2021年初完成首期交付,是一个将建筑与自然生态结合,美好而又充满艺术的高端生活社区。
家对于一个医生来说是什么样子的呢,更特别的是业主是一位中医,设计师希望表达一种冷静,坚定而温暖的家的样子。表达出一种很淡然而优雅的味道,在这里希望看到现代人的生活方式,也希望看到中国传统文化的印记……

::
玄关  Porch 
中医讲究天人合一,万物自然,生活的日常三餐、健康状态与大自然息息相关。巧妙运用自然的纹理,勾勒生活的交融,既自然舒适又打破单一的乏味。淡淡原木色迎面而来一种清新气息,柔和的线条勾勒出自然的形态,为主人创造了宁静的生活。

窗外树影婆娑,屋内清新绿意点亮空间,步入室内,情绪与紧绷了一天的筋骨瞬间放松下来,疲惫在推开房门那一刻自然卸下。

::
客厅  Living Room 
客厅以色块的状态拼组构成,线条的变化与延生让整个空间形成向上的态势。长而空的墙面,无一物又无限,让架构钟表的将白墙作为怀抱,向内伸展,作为精神居所。


洁白的色彩作为空间主基调,加上大地色、赭石色彩的点缀,简洁有序的赋予了空间新鲜的活力。晾衣阳台巧妙运用推拉玻璃门,阳光肆意的洒到每一个角落。在这里度过的夜晚或周末,明快是好,慵懒也是好。


天然的胡桃与沉稳含蓄的紫砂壶,在窗外鸟语的对话下,极简优雅。斑驳的光线展现独特的格调韵律。明媚的阳光让这里变得温馨舒适,别有洞天的墙体被恰到好处的利用起来,窗外的枝繁叶茂映衬了茶香,守护着内心的安宁与祥和。


::
餐厅   Dining Room 
奶白色的墙面印上自然光透过窗的影子,将阳光的温暖带到餐桌引入室内,创造出浪漫美好的日常时间。


::
主卧  Master Bedroom
木地板搭配极简床头天然木纹,自然舒适。简洁小巧的灯束,悠然静谧,时间在此刻在这里自然慢下来了脚步。



::
女儿房  Daughter room 
温润柔和,协调的色彩流露出慵懒感,飘逸的纱幔给予轻松自在。大胆的留白在线条与画作的点缀下充满生机。属于我,我们的时刻,光影衬托下,米白色串联藕荷色似乎成了静谧的温馨港湾。一夜酣梦,醒来时心情回甜。


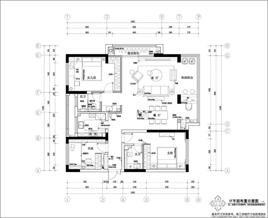
项目名称:淡然·生活
设计风格:现代
项目地区:河南 郑州市
项目规模:160㎡
建设成本:95万元
关于项目设计师

设计师:谢红华 

“筑巢奖”于2009年创办,现已成功举办十届。由筑巢奖组委会独立运营,累计近6万人次报名参与,征集作品量近10万。“筑巢奖”关注年轻设计师的成长,倡导以人为本,关注民生,推广具有普适性和示范性的设计,致力于打造中国具有权威性、公信力和影响力的室内设计赛事。
合作联系
广告合作:QQ 2376181903
咨询&找设计师:微信 zhuke345
作品投稿邮箱:578809721@qq.com

到顶部