外地夫妻进京买房,上万本图书放于其中,壮观惊艳,堪比图书馆


设计没有对错,只要喜欢就是满分。
——黄吉
所谓的空间定义是予以其最为刻板的教条,不背负传统的公式化设计,打破常规,还原最真实的喜怒哀乐,才能让家这个空间成为爱与美的包容地。
本案位于北京,是一个面积为680㎡的5层别墅。业主一对80后夫妇,带两个可爱的孩子在北京生活,二人均从事互联网工作。空间整体没有固定化的风格,而是以业主习惯、特性,呈现了一个多元的、富有情感的“我的家”!

01
多元艺趣感受专属场域
不在奢华上用力,返璞归真为另一种生活哲学。把真正的自由、澄澈还给生活。
空间不必要有所依托,但要有所性格。黄吉认为空间的主体是人,更准确的是服务于居者。某一种风格都不能去诠释空间的特性,因为好看是大多数人接受的一种状态,而量身定制才能成为专属。

进门处开始,就能感受到力量从结构向表面散发,在功能和美学上都达到了统一。色调上木色与黑色的兼容,既舒缓又呈现出一种简约干练的姿态,性格在不经意间,以细节之处传递感官特性。

不喧闹也没有扰人心的物件,给房间留有充足余白的空间。餐厨区域以同色系进行延续,开放式的设计,吸纳不同空间的语言。原本平凡的的空间,因为低头抬眸间的延伸触碰,让居室随着时间充满不同的故事。

家门的右侧,就是一家人读书的角落。和对面的餐厅相对应,形成一个共享精神食粮的空间。设计师黄吉表示:业主家一万多本的书籍,就注定空间的呈现不会是极简单一的。
但在这繁复之中,却能很好的以协调色的视觉艺术创造出物理空间的感性分隔,避免了餐厅过于通透带来的“无”,又许以精致且充满质感的书籍组合制造了“有”。


部分书籍会以封闭柜体的形式呈现,既可以作为有故事韵味的背景,又可以得到更好的存放。地面上散落的书籍,也在以一种自由的形式,展现这个家独有的气息。以不同的节奏、韵律,成就着一个又一个温馨的画面。


不同的空间功能,会传递出不同的情趣变化,而元素的呈现也会有很大的差异。地下的天井将光源引入,投射而下与绿植交汇呈现出好看的光影,而绿植的养护与呈现,也好似生活的秩序,延展、向上!从抽象到具象,从情感到精神,升华为一种更诗意的追求。


设计师黄吉反复强调的一个观点就是:不要把设计作为一个独立的个体,过于刻意的想追求一种设计形式。
在这个家中,再向下走,又是别样的生活风景。宛转而下的楼梯,是功能与观赏共生的存在。用现代的金属来衬托空间的质感,用低调的色彩捕捉雅致气息肆意的漫溢。这其中,既有图式叠聚的精致,也有工艺陈设的层次,让人置身其中,又忍不住驻足观赏。


02
满藏情绪爱意的浓情蜜语
每一个家,都有一个动人的故事,生活,就是要取悦自己,见证每个日常的幸福瞬间,让家特有的灵性与姿态。俘获归者之心。
三层主卧外的小起居室,是业主夫妇的私人区域,设计师为颜色和花纹明丽的木饰面中古柜特别挑选了一面黑色的背景墙,这种搭配好像一把大提琴,优雅又有韵味。而中古柜也在以它的痕迹,讲述一段别样温馨的生活序章。


主卧外的走廊,连通到主卫。这里被打造成多种材料和结构表现的空间,越是令人觉得简单舒服的空间,越是充满复杂缜密的心思。明与暗、黑与白、曲面和直线,各种对比都在这里安于平静,就像每一天的日子。

对于私密的起居空间来说,更重要的是“一起生活”的感觉:对物品所具有的意义与背景产生共鸣,用最忠于自己的眼光进行选择,一点一滴地积累起自己的生活,书籍也好、陈设也罢,都是对生活的一种留存形式。晨昏日暮,两人四季,静享减缓流逝的时光。虽然所往各不相同,不一而足,但永远充满着浪漫和惬意。


黄吉作为一个家务型体验派的设计师,希望他的设计与居者是交融且共同成长的,能够呈现幸福感、和专属性。
我们所看到的主卫是黑白分明的,但绿植和光源的引入,让原本单一的色调出现光晕从而呈现出浪漫与暖意。就像生活,看似一板一眼,需要演绎于条框之中,实则总会有一些惊喜不期而遇。


不同的空间,都在不经意间让你沉浸在不同的情绪之中。偶尔的橙,不经意的绿,实际上都在空间中发挥着极大的作用,与光影的结合,让整个空间平静柔和却不单调,尽职尽责的履行着自己调节气氛的作用。


一家三口在房子逐渐成形的过程中,以爱的形式”增员“成为四口之家。小公主的到来让生命的意义更加真实的得以体现,也让这个房子更真实的成为家。空间的形态会不断变化,他们的生活也会以新的方式在这里徐徐展开,要永远相信那些懂得与家为伴的人,都不会过得太差。

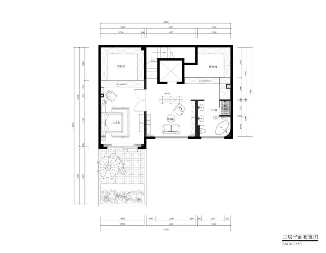
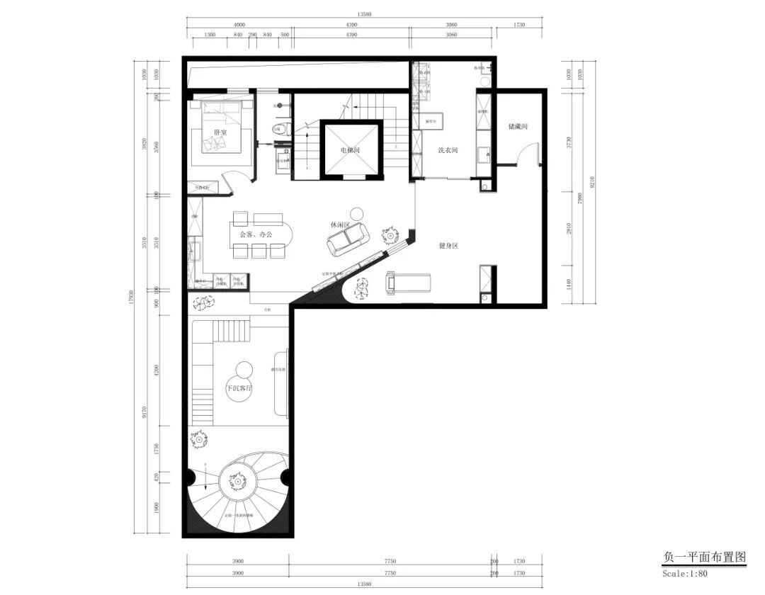
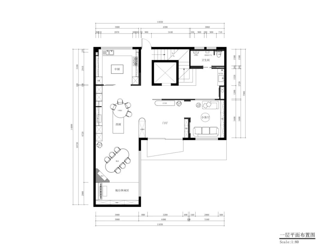
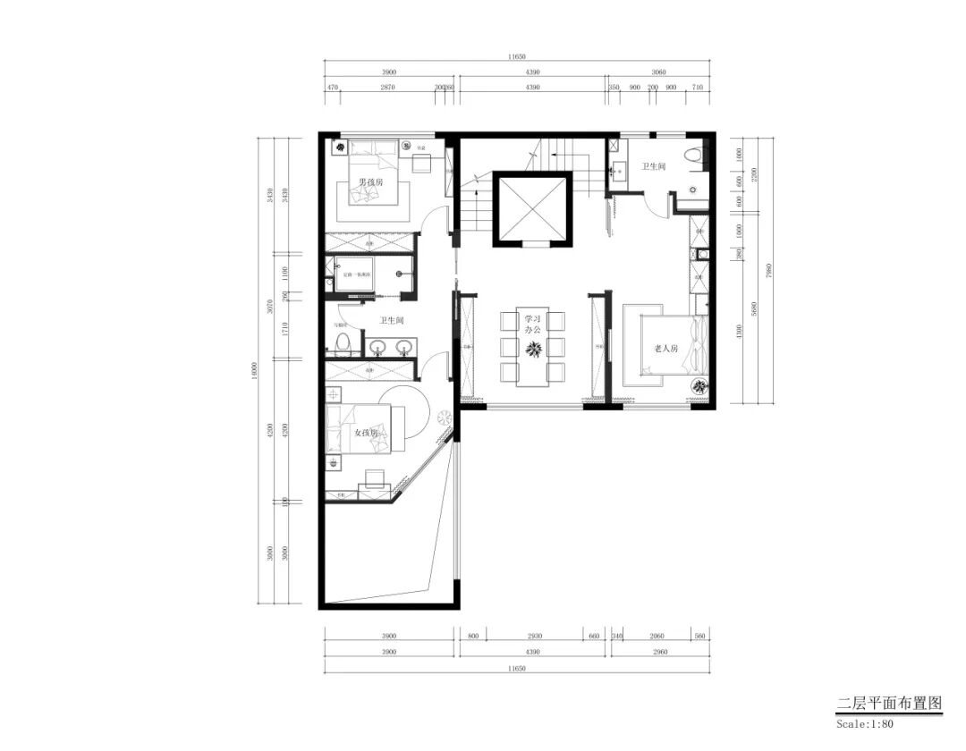
  本案平面布局图 




左右滑动查看平面图
  关于本案设计师  

设计师:黄吉
黄吉空间设计创始人/十一·集创始人
合作联系
广告合作:QQ 2376181903
咨询&找设计师:微信 zhuke345
作品投稿邮箱:578809721@qq.com
到顶部