山西太原女白领独居30㎡LOFT公寓,花20W实现自由,谁不羡慕呢?



在山西太原,女屋主是公司白领,为了上班方便购得公司附近LOFT公寓,套内使用面积为30㎡,在自己生活的城市有了属于自己的家,小日子简单却充满了一个人生活的自在。
设计师孟庆飞在设计前与女屋主进行了详细的“需求复盘”,以求小空间能够“功能俱全”,在明确居住与公共空间之后,开放式设计串联起生活功能,为其打造了一所“宜居、舒适”的私人空间。
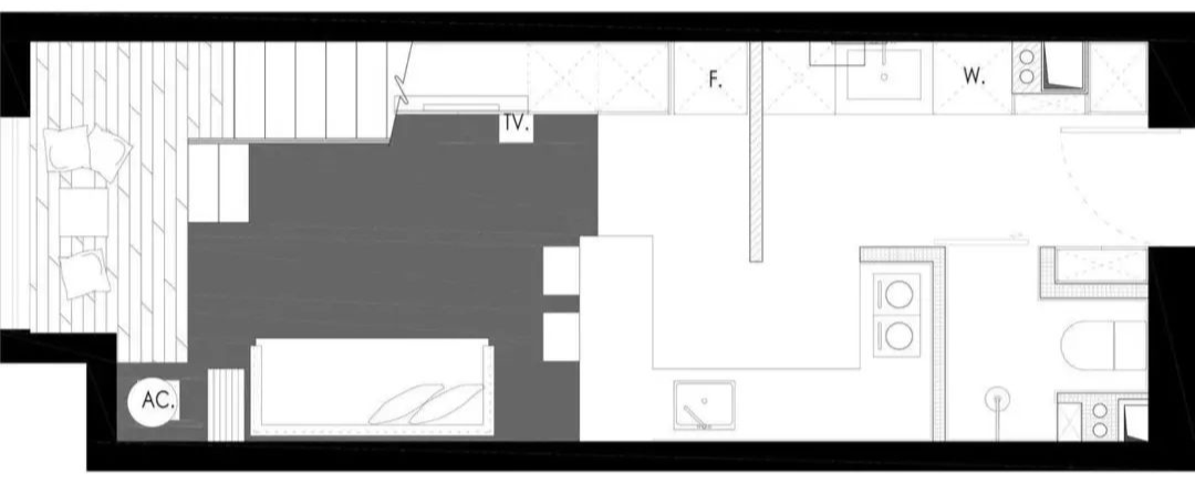
平面户型图 

一层平面图

二层平面图
设计师结合业主需求和现场条件进行了汇总:
1.喜欢开放式空间,能满足与三五好友小聚;
2.上下两层都有独立的卫生间,且可以洗浴;
3.空间不大却渴望拥有自己独立的衣帽间;
4.主卧强调私密性,保持私人的生活状态。
轴测图
仅仅30㎡的LOFT公寓想要实现女屋主对空间的诉求其实并非一件简单的事儿,首选从面积上,以新建夹层的处理方式来解决挑高公寓面积小的问题,其次,在既有的空间的条件下,模糊空间界限,取消封闭间隔,以人的活动定义功能,以现代简约的设计,传达空间温和、细腻的气质,在都市中寻求“容身之处”的梦,回归质朴与自然,拥抱自我生活。
01
开放式玄关,功能整合
即便是很规整的一室一厅一厨一卫的户型,但是我们需要空间之间相对孤立且生活动线舒适,为了能赋予空间适合屋主日常起居的功能安排,于是拆除了室内全部的非承重墙体,方案将客厅、餐厅、厨房及休闲阳台整合为一个大空间。

⼊⼝的左右两侧分别有卫⽣间与厨房的烟道与污⽔管,0.9*0.7m的管道井紧邻侧墙,为了遮挡原有结构,将玄关分为两个区域,一侧设计为鞋柜,另一侧设计为厨卫空间,功能与美观度都得到了解决。

根据空间天然的水电排布优势,将洗衣区安排在玄关,既合理的优化了空间,同时,延续玄关的收纳功能,极为生活化;因为玄关顶面无特殊结构,无主灯设计营造归家时的温暖。

从玄关往里走,右侧是一个独立式洗手台,开放式的设计满足主客使用,更符合日常生活习惯,回家-换衣-洗手的动线设计足显人性化,更突出生活的舒适度。
⾊彩贯穿于整个空间也是此次设计的独特之处,空间中不同灰度及明暗的颜⾊互补统⼀,顶部有节制的造型让光线的摄⼊与⾊彩更柔和地交织,足显和暖。

卫生间并没有明显的干湿分区设计,反而更有整体感,灰色调瓷砖铺贴因为光影带来的虚与实,明与暗,有秩序地营造出简约纯粹而又温馨舒适的现代居住空间。
02
小厨房,悬浮中岛为核心串联空间
整个一层空间聚焦“公共生活”,小空间将玄关、客厅和厨卫空间做到了精细化的分区,满足女屋主的装修诉求。

在玄关与客厅之间,以一面镂空墙面作为隔断来分区,几何感的设计点缀,强化了光影的变化,在功能性与私密性之间权衡的恰到好处。

L型厨房以开放式的设计实现空间之间有序的过度,橱柜选用PET肤感柜⻔,哑光的质感提升空间的整体⽓质,同时降低光在空间中的反射率,相较于哑光的烤漆⻔板达到视觉效果且能够合理的控制预算。

厨房除了必备的功能之外,设计了一个开放式的吧台,让空间尽量连续开放,同时根据使⽤功能赋予空间材质和尺度不同变化,让屋主在⽇常⽣活中不受空间边界限制,为⽣活场景中⾃由随⼼的⾏为创造更多的可能性。

中岛悬浮于客厅与厨房的连接处,充当起了餐厅的功能,增加空间的轻盈感的同时,使得视野更为通透,规避了小空间的局促。
03
客厅、阳台共存的休闲空间
在空间最核心的位置设置一个中岛,从而达到起居空间各项功能围绕中岛吧台展开,中岛成为空间中不同功能之间的桥,是各个空间的联系纽带,连结客厅、餐厅、厨房、休闲阳台。

为了最大程度优化空间和自然采光,设计师提出了一个简单明了的策略,即建造一个不用移动的中心元素来组织住宅,其尺寸和位置有望为周边空间提供更多价值。

空间设计以理性、秩序、简练的方式对室内空间进行了重构,客厅两人座沙发搭配小圆几,简单实用;阳台榻榻米式定义功能属性的同时,创造出连续和流动的空间。

设计的细微之处,不⼀⽽⾜,空间的细节设计之处皆来⾃于团队对⽇常⽣活的敏锐觉察、感知、捕捉与重塑。理想⽣活不必是镶⾦饰银的矫饰,不必是雕梁画柱的奢侈,不必是琳琅满⽬的藏品,但必是要感受到爱,感受到原初的温度。
04
阳台,享受阳光
以客厅为中⼼将空间功能进行延展,阳光透过窗户让空间富有活⼒韵律,与其余空间的宁静相平衡。台座式设计,在主轴周围形成了⼀道连续的空间场域。

整体空间在视觉更流畅通透,空间功能的合理化并给人以美的感受是此设计的基本目的。


客厅成为了设计的参考轴,住宅内所有的功能均围绕其布置,在空间靠窗的位置,利⽤空间的垂直尺度,将窗边阳台打造成了⼀个新的“天空之城”,作为空间中附属的休闲区,通过爬梯上到平台,欣赏都属于⾃⼰的城市天际线。


大块面的线条和色块让整个空间整洁大气。在灰与白相互呼应的空间中,材质和光影演绎的宜居实践,以空间写诗。
05
二层私人卧室,简单舒适

“居住艺术的延伸,便是生活的艺术。”设计师笔下的极简,既是艺术的形态,亦是生活的形态。只有放松和有限的空间,才能让使用者从繁忙的生活中脱离出来,慢慢地将身体和平静的精神空间联系在一起。
06
私人卫生间,小巧实用

家,是人们心灵与肉体最好的归处;应大尺度地满足居者的“自我”诉求,私享是家最基本的主题与生活状态。
 本案设计师 

设计师:孟庆飞
到顶部