60㎡清新美宅,舒适简约,卧室太美了!


筑客“搬(迁)家(移)”完成啦!
之前的星标会消失哦,小筑提醒大家需要再次“设为星标”动作~这样就不会错过每日的分享的家居干货啦!

特拉维夫以无所不在的包豪斯风格的建筑而闻名,这些建筑是在二战时期由逃离的德国犹太建筑师设计的。
如今,特拉维夫拥有超过4000座包豪斯建筑,并被联合国教科文组织列为世界文化遗产。

当年因为住宅紧缺而设计的功能性住宅因其简洁的设计语言大受欢迎,也因为这一批亮眼的白色建筑,特拉维夫市中心获称“白城”(White City)。
这些建筑遗产无疑是一笔巨大的财富,但由于建筑存量年代久远,内部布局往往偏狭,这也提出了保护和现代化的问题。这座位于特拉维夫市中心的20世纪30年代的公寓经过深思熟虑的改造,正面解决了这两个问题。


.01
大改造
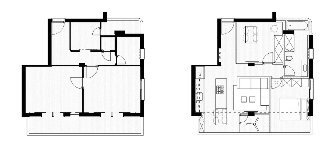
该公寓最初的布局包括两个大小相同的房间,由一个公共阳台连接,一个小而无窗的厨房,以及一个小而发霉的浴室和一个独立的厕所。
在工作室创始人Efrat Weinreb的带领下,团队对空间进行了大刀阔斧的重新配置。

通过整合入口走廊和部分前阳台,创造了一个开放式的起居、用餐和厨房区域,通过使用建筑后部的小阳台扩大了浴室,并将昏暗的厨房变成了一个书房,通过窗户引入了自然光。

改造前vs改造后
.02
开放空间
在当代简约主义美学和注重功能性的基础上,不加修饰的室内设计使公寓充满了宽敞和舒适感。清爽的糖果色又为整个空间增添了生气。
在开放式的生活空间中,一个时尚的厨房岛可以变成一张餐桌,从概念上将空间分为两个区域。



大刀阔斧的开窗为室内引入了更多的阳光。打通了原本的阳台,设计师在原来的厨房岛台边放上了一张餐桌,并且预留了婴儿椅的位置。




.03
私密空间
私密空间的卧室也延伸到了原本的阳台空间。原本卧室的窗户被衣柜挡住,所以建筑师在其中设计了一个壁龛,让自然光进入,创造了绿意盎然的小角落。


而床头柜的设计则巧妙地处理了一个原有的柱子,同时也提供了储物和搁板。



同样注重细节和人体工学设计的还有浴室,设计师设计了一个双向储物方案,一端是洗衣机、滚筒式烘干机、电热水箱、洗衣和清洁用品的橱柜。
另一端则在马桶旁边设置了开放式的架子,可以放置功能性和装饰性等物品。


卫生间曾是一个半开放式的阳台, 以前的弧形阳台现在容纳了一个宽敞的淋浴房,大面积的凹槽玻璃窗让自然光充斥其中。



无窗的书房也采用了凹槽玻璃,让日光从客厅照射进来。正如建筑师所解释的那样,正是这些细节体现了在不影响其现代主义感性和包豪斯怀旧风格魅力的前提下,将客户的实际需求与建筑师的大胆设计结合起来。




筑客设计师热搜榜
装修设计,就找实力派设计师

合作联系
广告合作:QQ 2376181903
咨询&找设计师:微信 zhuke345
作品投稿邮箱:578809721@qq.com
到顶部