美女小姐姐用1/5面积打造超大衣帽间,网友:太任性!


筑客“搬(迁)家(移)”完成啦!
之前的星标会消失哦,小筑提醒大家需要再次“设为星标”动作~这样就不会错过每日的分享的家居干货啦!

据说,世界上只有两种女人,想要衣帽间的女人,以及“假装”不想要衣帽间的女人。
然而,并不是每一个猪猪女孩的梦想都能实现,毕竟这么一个略显奢侈的居住需求,对家里面积有一定要求。
今天这套房子的女主人就“疯狂”了一把,将家里近1/5的面积改做衣帽间。在这个家,我们可以看到有趣的空间流动——双门通往客厅和厨房,衣帽间则是通往整个主卧套间的入口。一起来看看效果吧!

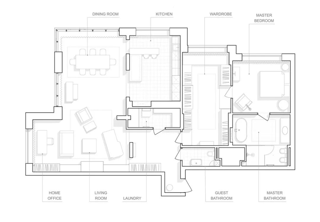
平面布置图

从29层俯瞰市中心时尚街区是什么感受?本案业主Vira最有发言权。
作为家里最受宠的“小公主”,95后美术教师Vira刚毕业就拥有了自己的房子——位于市中心的一栋高层公寓。
“景观”是这个150㎡公寓的最大亮点,设计师Balbek Bureau也在房间的布局上刻意强调这一点。餐厅、厨房、衣帽间、主卧一字排开,每扇窗外皆有精彩。


步入门厅,Sputnik枝形吊灯在入口熠熠生辉。一道镜面半墙隔断划分内外空间,形成了一个简易梳妆台。木制衣柜提供了一个巨大的存储空间,宝蓝色梳妆凳提亮着整体空间的色彩。



现代化的公寓内部借鉴了古典风格,在光滑的白色天花板造型下,宝石色的极简主义家具组合,色彩明快,一如业主的性格。
两个原木色开放式书柜之间,电视与壁炉上下排列。黑色落地灯将阅读光线投射在舒适的白色躺椅上,墨绿色靠垫与咖啡桌相互呼应,舒适的犬齿花纹阅读椅和配套脚凳和谐一体。闲暇时围炉阅读,温暖而放松。

红沙发之后,角落里的壁龛空间被设计成办公空间。传统风格的黑色书桌与现代的台灯形成强烈对比。


清晨的阳光与午后的暖风、白日的喧嚣与入夜的时尚,透过落地窗一览无余。采光和通风最好的位置留给了餐厅,吃饭也要有仪式感,景致就是最好的佐料。
业主周末会邀请朋友来家里开party,为此设计师选择了8人座大餐桌,大小、长度不一的极简吊灯从天花板倾泻而下,将用餐者的注意力拉近天空景观。大玻璃花瓶里绽开着野花,在灯光的映衬下更加生机勃勃。



宽敞的厨房以独立岛台为中心,并与两边开放入口相重合。橱柜和地板周围形成鲜明的色彩对比,闪闪发光的地砖、铜制冰箱把手和水龙头为空间增添更多奢华。
大理石台面延伸部分则在窗前形成了一个用餐半岛,造型好似一座桥。既可与大厨对话,转身亦可欣赏城市全景。



主卧其实是一个套房,包括卧室、主卫和一个独立衣帽间。
平静的白墙描绘出宁静的卧室空间,护墙板造型以及圆形床头柜上小巧的黄铜把手增添了卧室的古典元素。蘑菇造型的Atollo台灯圆润可爱,几支粉色鲜花为卧室带来更多女性的柔美气息。


卧室角落摆上墨绿色单人沙发,一把躺椅带来了古典味道。紧挨其旁的则是令人印象深刻的独立衣帽间。业主喜欢追逐时尚潮流,平时也热衷于买买买,对衣物收纳需求较大。当设计师提出用1/5的空间做衣帽间的“疯狂”建议时,Vira居然立刻同意了。


卧室旁边的鼠尾草绿色渗透在定制衣橱、储物柜和抽屉等每一处空间。一排原木收纳架摆放着房主最爱的鞋子。
窗外的美景也不可辜负,靠窗长凳堆上几个靠垫,形成一个舒适的阅读角落。天黑后,一个现代风格壁灯照亮宁静的小屋,静谧温暖,最适合阅读,或放空思绪。



推开卧室左侧房门,主卫的浅蓝色墙板和大理石地面呈现出不同的个性,一道玻璃门实现干湿分离。Michael Anastassiades为FLOS设计的IC壁灯与炫目的金色浴缸水龙头完美契合。
‍‍

这套公寓其实还有一间客卫,就在门厅的位置。黑白几何地砖与哑光黑色洗手台,以及暖橘色的撞色吊顶,在小空间中做出了大胆的声明。

筑客设计师热搜榜
装修设计,就找实力派设计师

合作联系
广告合作:QQ 2376181903
咨询&找设计师:微信 zhuke345
作品投稿邮箱:578809721@qq.com
到顶部