装修买瓷砖,坚持了这6点,省了近6000元,瓦工师傅直夸内行


装修买瓷砖,如果不能掌握技巧,会发现钱会超支许多。
我家里的瓷砖,一开始预算是12000元,可是自己转了一圈建材市场,发现基本上都要18000元~20000元。

为此,在买瓷砖时,坚持了以下的这6点,最后节省了接近6000元。瓦工师傅都直夸内行。
到底是哪6点呢?下面就跟随家居杂坛一起来了解6点选购瓷砖的技巧。

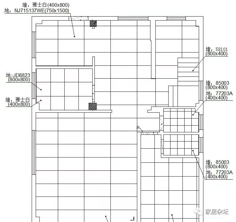
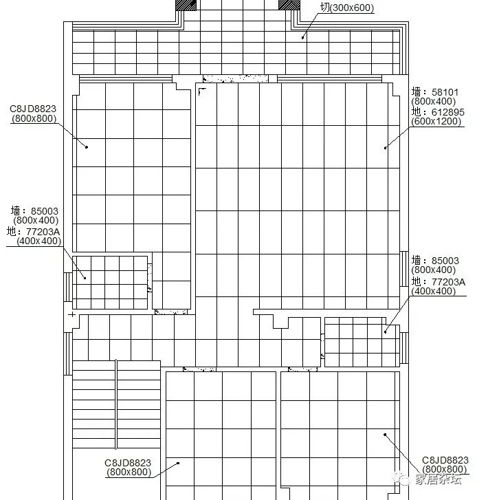
(一)——确定瓷砖排版和尺寸
装修选瓷砖,我们第一点要做好的就是瓷砖的排版以及要确定瓷砖的尺寸。
那么这时我们地面的铺装图,一般都是排出来了,也就有了准确的尺寸。

然后,根据我们室内地面或者和墙面的尺寸进行瓷砖的排版。
以后就可以决定瓷砖的规格尺寸。

这样我们在选购瓷砖时,就可以做到以下两点:
①、精准把握我们所需要的瓷砖的规格尺寸。例如就选择目前主流的600mm×1200mm,或者是800mm×800mm瓷砖,这样也比较省钱。
②、合理排版,可以减少非整砖,减少损耗。尽量将瓷砖利用起来,把裁下来的砖,也合理利用,同样也可以省钱。

(二)——确定瓷砖大致数量
装修在选购瓷砖时,我们要掌握所需用瓷砖大致的数量。
掌握瓷砖所需要的数量以后,我们再选瓷砖的时候,可以基本上估出来费用。

所以说,如果我们打算选瓷砖,那么一定要有排版和尺寸,然后算出来瓷砖的数量。
测算数量,就是根据我们排版,然后根据瓷砖的规格尺寸来计算的。

能准确的计算出瓷砖的数量,有以下的优势:
①、可以准确的估算出各个品牌的瓷砖的价钱。因为我们是有准确的数量,然后去询问各个品牌,最后就可以得到价钱,然后得到优惠的情况。
②可以根据各品牌给出的优惠,来选择我们所需要的瓷砖。这样基本上又可以节省1000元~2000元。

(三)——确定款式颜色
在选购瓷砖时,我们第三点要需要确定的就是瓷砖的款式和颜色。
其实意思就是说,我们在选购瓷砖之前,就已经确定了款式和颜色。
并不是盲目的逛逛市场去看,各种各样的瓷砖款式,各种颜色,然后再做选择。

因为,在市场上去选择款式,颜色的话,你会发现越看。价格越高,最后选的就是往往是最高价的瓷砖。
其实,这也是一种隐形的踩坑,可能很多朋友并没有注意。

而如果我们能提前确定颜色和款式,同样可以有以下的优势:
①、省心。因为我们在逛瓷砖市场的时候就很有目的性,直接奔着我们所需要的款式和颜色去看就可以了。
②、对比各个品牌,然后选定我们所需要的款式和颜色之后。可以在各个品牌之间进行谈价,这样无形之中又可以谈下来几百元。

(四)——确定预算
装修选瓷砖,第四点就是要确定我们买瓷砖所花的钱,也就是瓷砖的预算。
其实确定瓷砖预算之前,一般我们要了解需要的数量,还有就是大致的样式,以及对应的规格尺寸。

这样我们就可以根据这类瓷砖的大致价格,来确定预算。
例如我们家里墙砖加地砖,如果是120平米,那么预算基本上就在15000元左右。

此时确定瓷砖的预算,有以下的好处:
①、可以合理控制我们的装修的费用。这样就避免我们在选购材料时越选越好,导致费用越来越高而超出预算。
②、可以大致保证我们所选的瓷砖的质量。因为所选的预算中瓷砖,基本上是中档的,以这个价格去购买瓷砖,基本上质量也有保证。

(五)——确定品牌范围
在选购瓷砖的时候,同样也要确定瓷砖品牌的范围。
大家应该都清楚,瓷砖的品牌不同,差价是非常大。
目前市场上的瓷砖品牌有一线品牌,有二线品牌,还有就是三线以及一些杂牌。

而其中一线品牌的瓷砖,像800mm×800mm的每一片基本上是在100元以上。二线品牌基本上是60~70元。如果是杂牌的,可能也就是40~50元。
对于这些不同的品牌的瓷砖,至于选择哪一种,提前要做到心里有数。

而如果我们的约定品牌范围,有以下的优势:
①、可以大致弄清楚各类品牌下各种规格尺寸瓷砖的价格差异。例如都是一线品牌,同样是800mm×800mm的瓷砖,其实选最便宜的就可以。
②、可以对瓷砖的质量有一定的保证。无论我们是选择一线品牌,又或者是二线品牌,其实质量然后都是有保证的。但是,尽量不要选择杂牌,甚至没有品牌的。

(六)——现场选瓷砖
装修选购瓷砖,最后一点就是要现场选瓷砖。
这里主要是说的一点就是,有些朋友由于时间的原因,可能没法去现场选瓷砖。

最后选瓷砖的方式就是看了几个样品,就直接选定瓷砖。
最后出现的结果就是,到家的瓷砖与想象的出入非常的大,甚至有可能就不是你看的样品。
所以说,如果装修选瓷砖,还是要挤出来一些时间去现场选。

因为现场选瓷砖,确实有以下的好处:
①、更加的直观。因为现场瓷砖基本上有样品,还有就是铺装的效果,这样我们可以直观的看出铺贴的效果。大都不会选错。
②、现场选的瓷砖,我们可以直接做好规格型号的确认。在到我们家以后,对一下规格型号,就可以了。这样基本上不会出错。

写在文末
家装选购瓷砖,通过以上六个步骤,基本上就可以选择到我们所需要的瓷砖。而且,可以节省不少钱。
所以,如果大家计划开始装修选瓷砖了,一定要勤快一些,把这些步骤记下来,按照步骤去选就可以了。
【文字原创,图片源自网络,侵权联系即删】
到顶部