道舍村网科技:13.56乘14.7农村四层现代别墅


这是效果图。白天鸟瞰图和夜景人视图。

△白天鸟瞰图

△夜景人视图
道舍村网科技案例展示(小部分)



Δ中国湖北汉川夏府别墅项目













Δ中国湖北武汉东西湖四合院项目

Δ加拿大温尼伯mercharts项目

Δ加拿大温尼伯prichard项目


Δ中国浙江桐乡市生态公厕建设项目



Δ中国湖北荆州市鑫利嘉境别墅项目
(篇幅有限,不一一展示了)
农村盖房
上道舍村网
设计施工一站式盖房服务
让您省时、省心、省力、省钱
自建房
别墅
民宿
庄园
设计施工

下单咨询
18171898565
微信扫一扫即可添加汤亮微信
(请您备注来自公众号+来意+城市,谢谢配合)

下单咨询
18171898565
微信扫一扫即可添加汤亮企业微信
(请您备注来自公众号+来意+城市,谢谢配合)

下单咨询
18086036676
(微信同步)
       今天的图文呢一定要转发,让更多人看到。耐心看到最后有彩蛋哦,在工作在加班在陪老婆孩子的在喝酒的,不妨先收藏起来,空闲时间好好看看,因为这就是你未来的别野,要相信自己呀。今天给大家分享一套农村自建房图纸,建筑层数4层。开间13.56米,进深14.7米,建筑施工图都有哈,
      
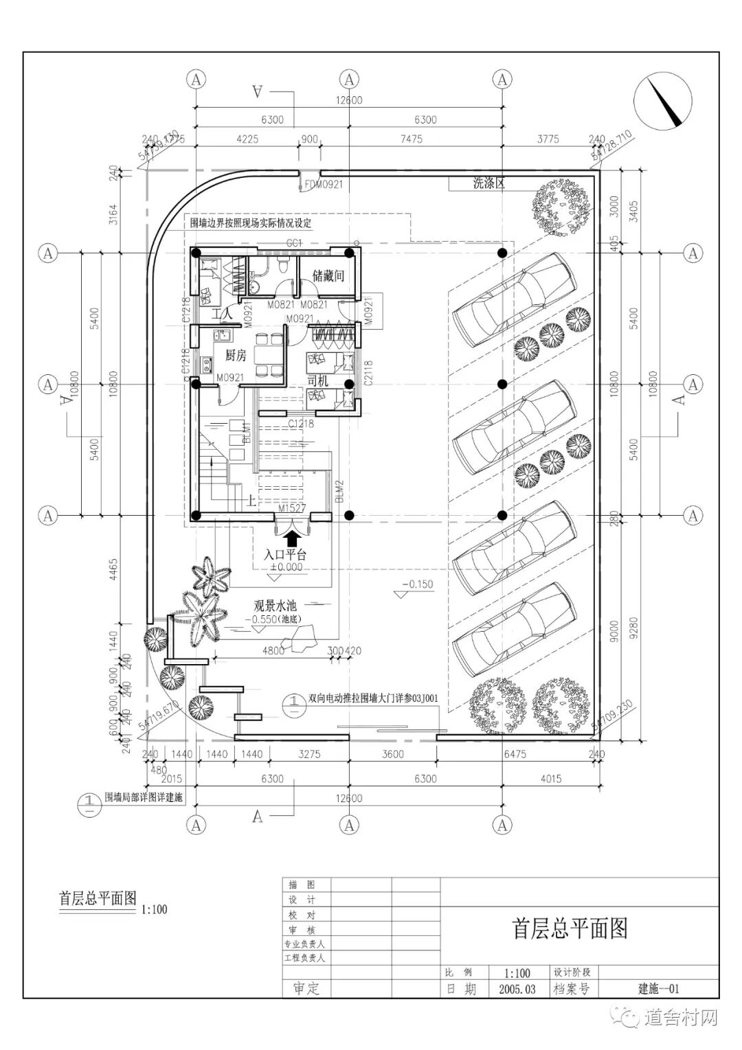
这是首层总平面图。

△首层总平面图
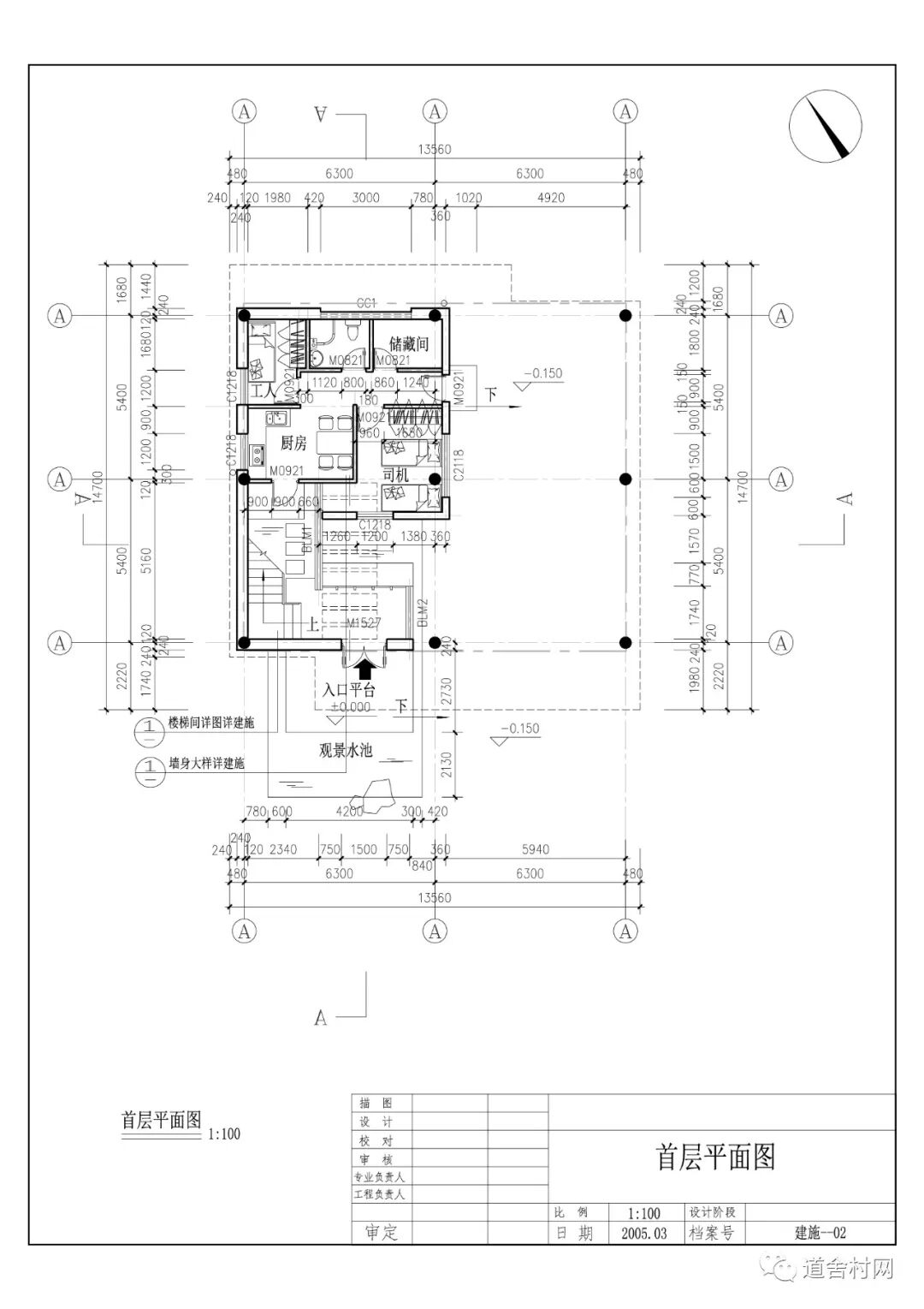
     我们来看看建筑施工图功能布局,先来看看首层平面功能布局,从大门进来左手边是楼梯,上楼上的,楼梯往北走是厨房餐厅,带单独出入口,工人房、司机房、储藏间和卫生间。首层主要是供佣人用的,与屋主人交通流线上做了分流。

△首层平面图
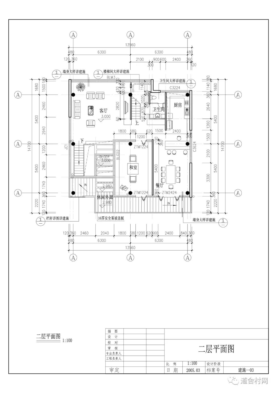
    我们再来看看二层功能布局,二楼主要是卫生间、厨房、餐厅、厨房和餐厅放在一块满足人们的生活习惯。然后还有和室和客厅,

△二层平面图
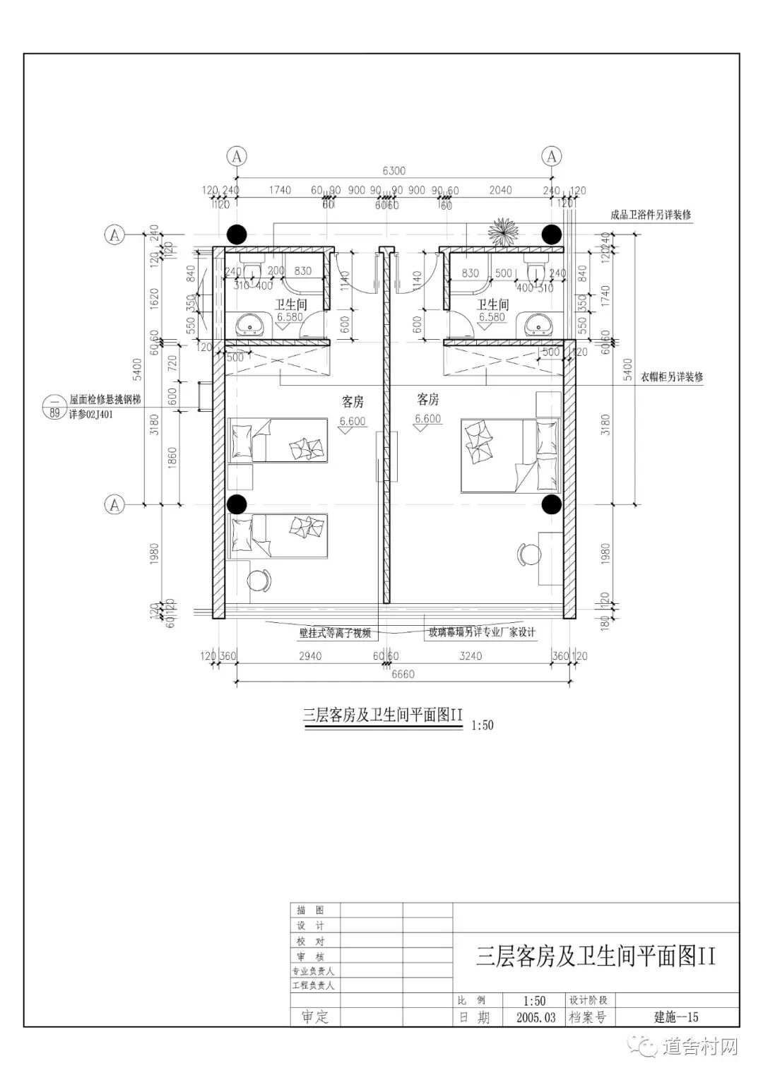
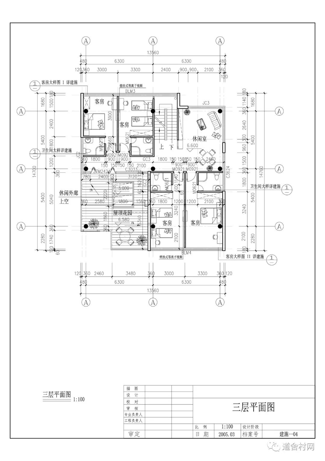
      我们再来看看三层功能,三层南北向各设有两个带独立卫生间的客房,西南角设有屋顶花园,东北角设有休闲区。

△三层平面图
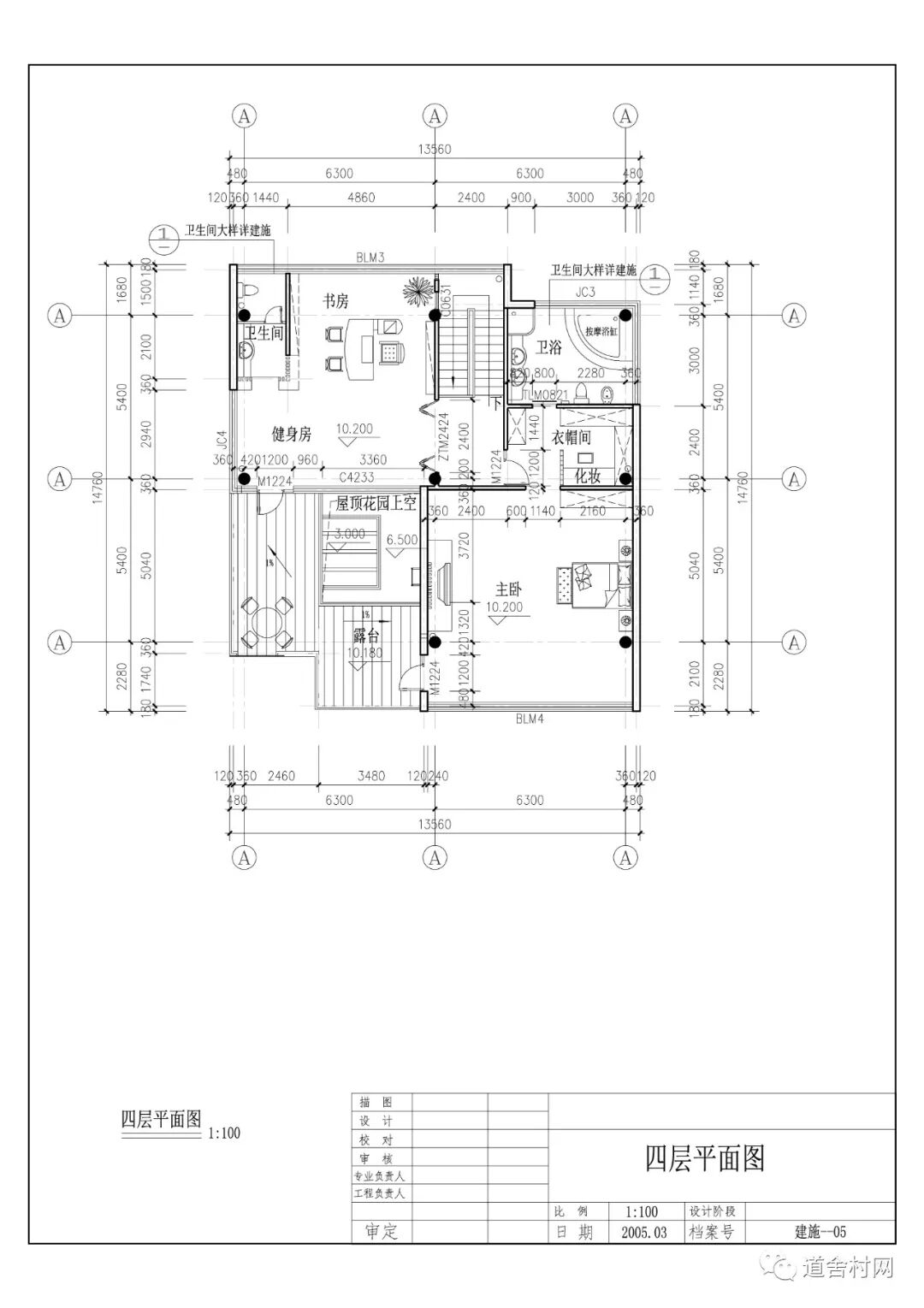
     我们再来看看四层功能都有哪些,四楼主要设有一个带卫浴、衣帽间的主卧室,跟西南角的露台打通,住这样的房子简直是yyds,爽到爆了,以及这个带卫生间的书房和健身房,也是通向露台的,书房和健身房是相通的,可见屋主人是个文武双全的霸道总裁呀。

△四层平面图
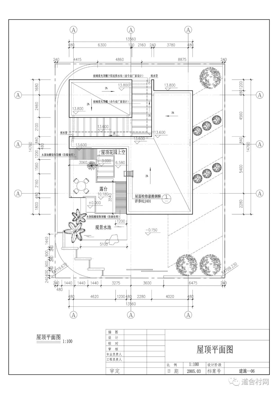
这是屋顶层平面图。

△屋顶层平面图
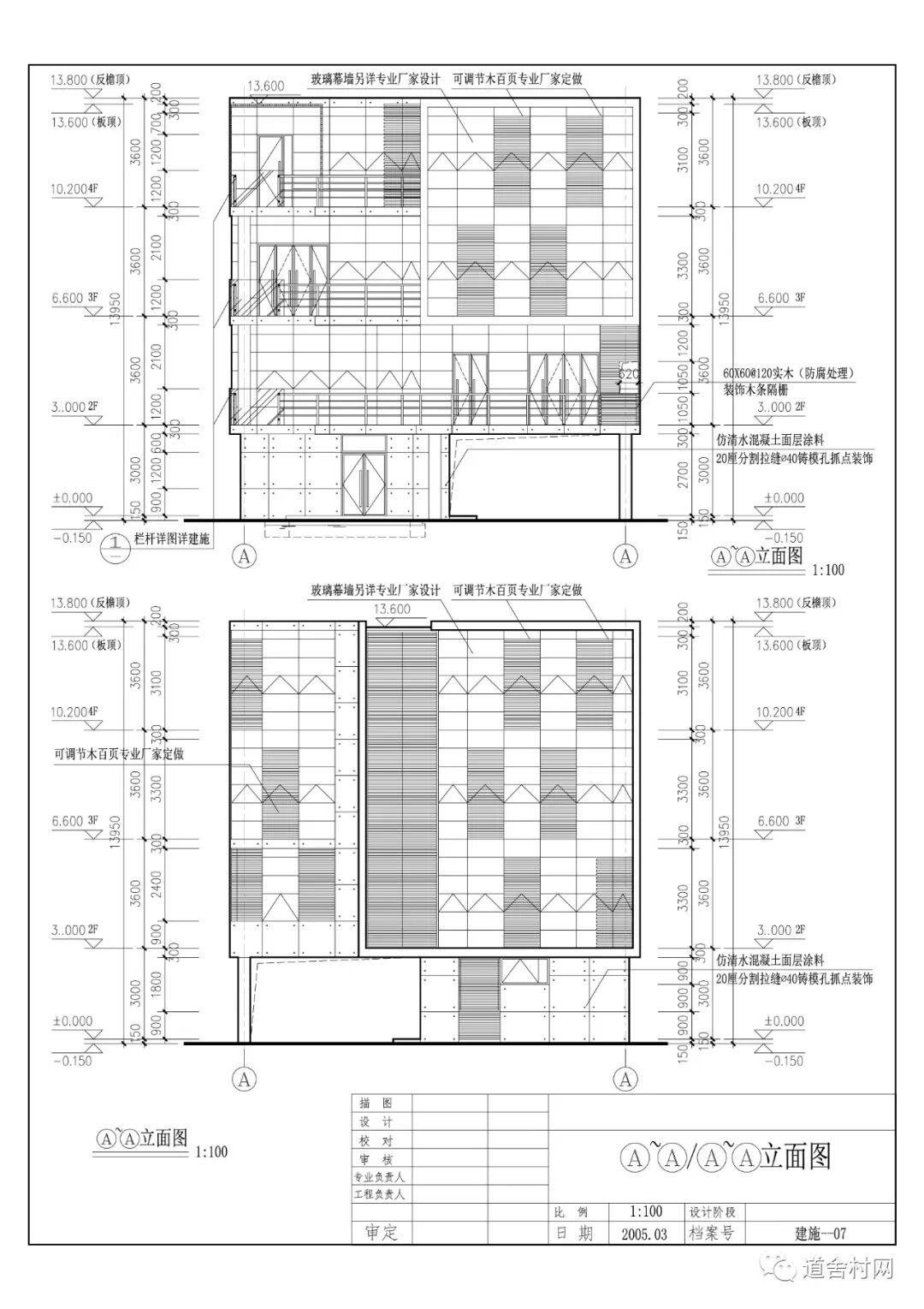
这是立面图。


△立面图
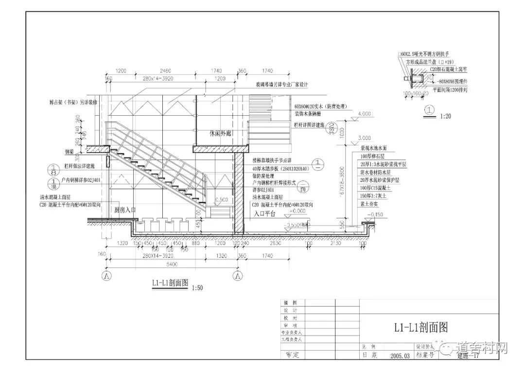
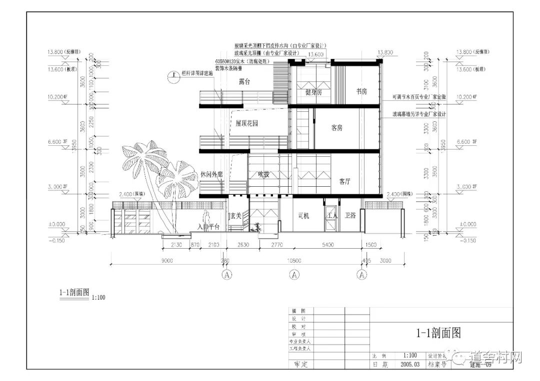
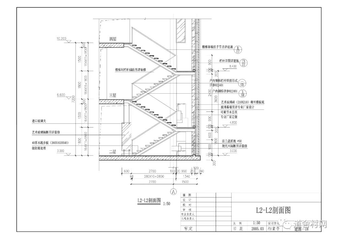
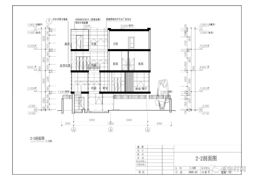
这是剖面图。




△剖面图
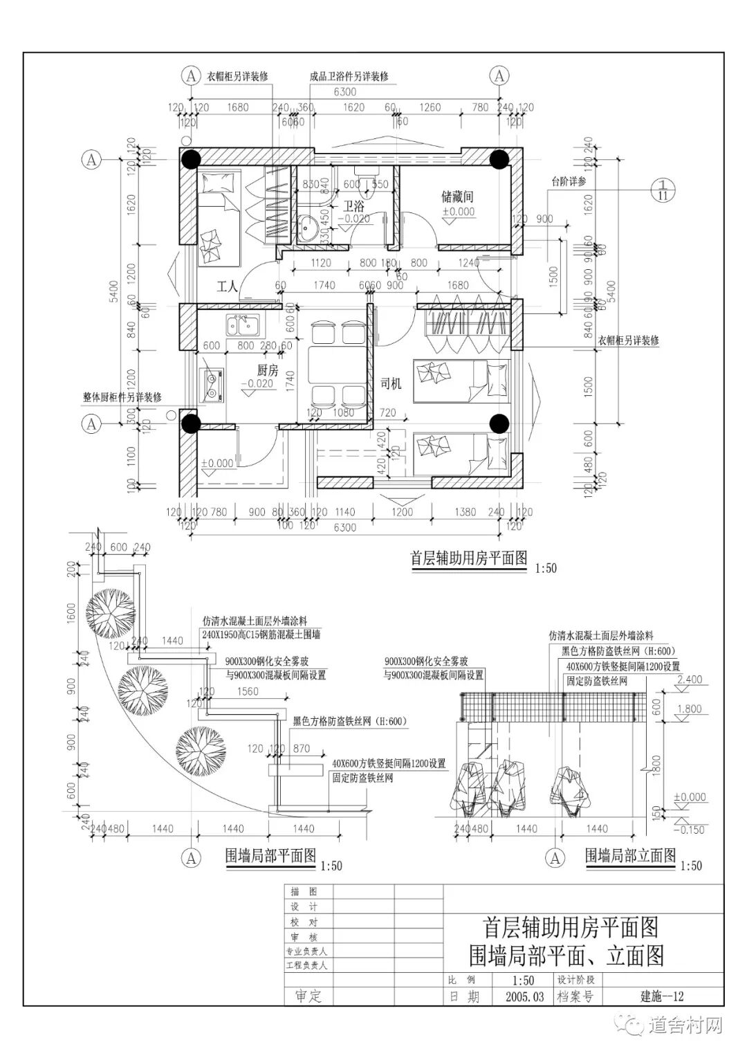
这是首层辅助用房平面图和围墙局部平面、立面图

△首层辅助用房平面图和围墙局部平面、立面图
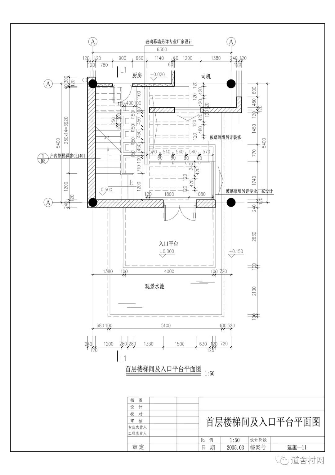
这是首层楼梯间及入口平台平面图

△首层楼梯间及入口平台平面图
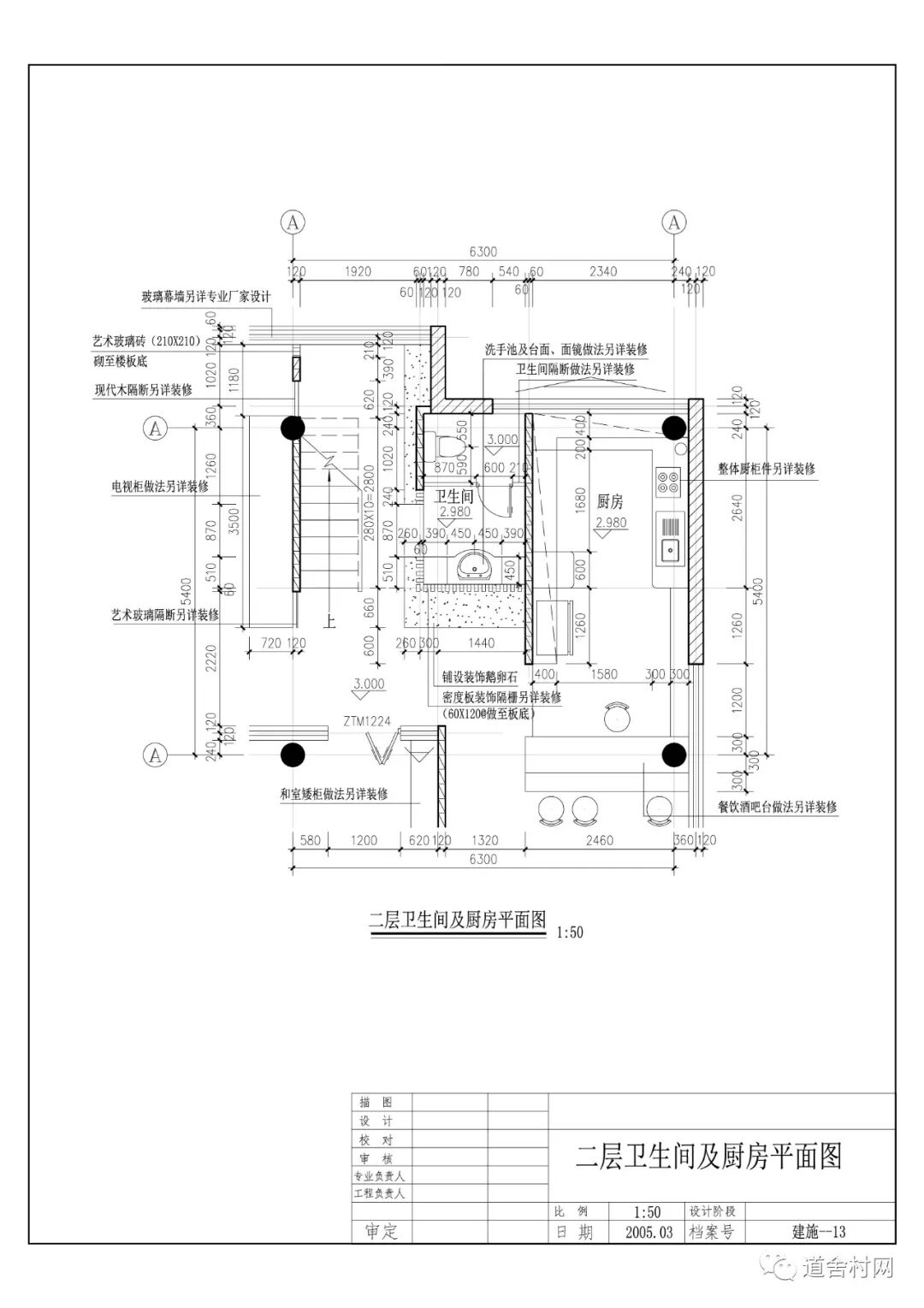
这是二层卫生间及厨房平面图

△二层卫生间及厨房平面图
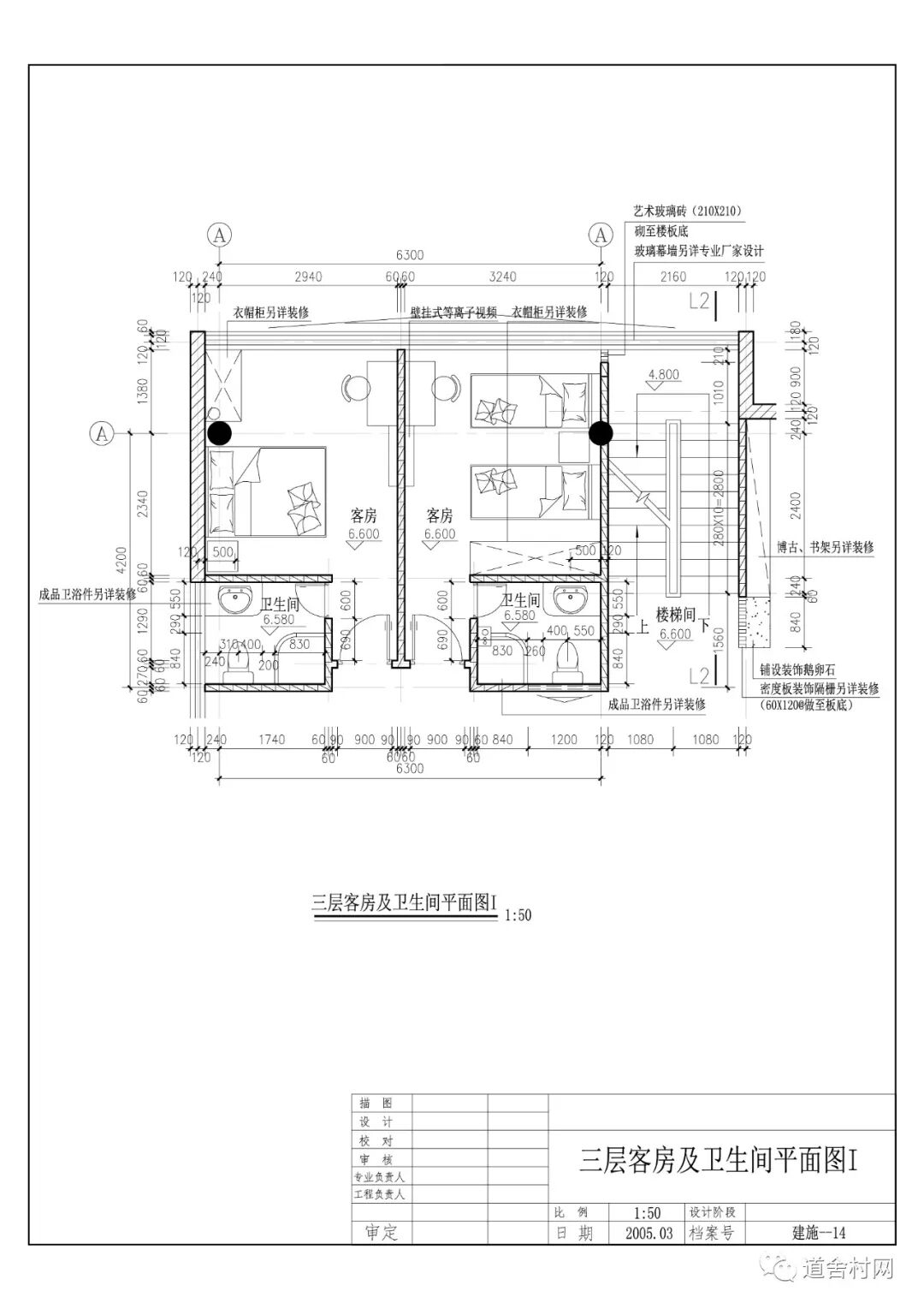
这是三层客房及卫生间平面图I

△三层客房及卫生间平面图I
这是三层客房及卫生间平面图II

△三层客房及卫生间平面图II
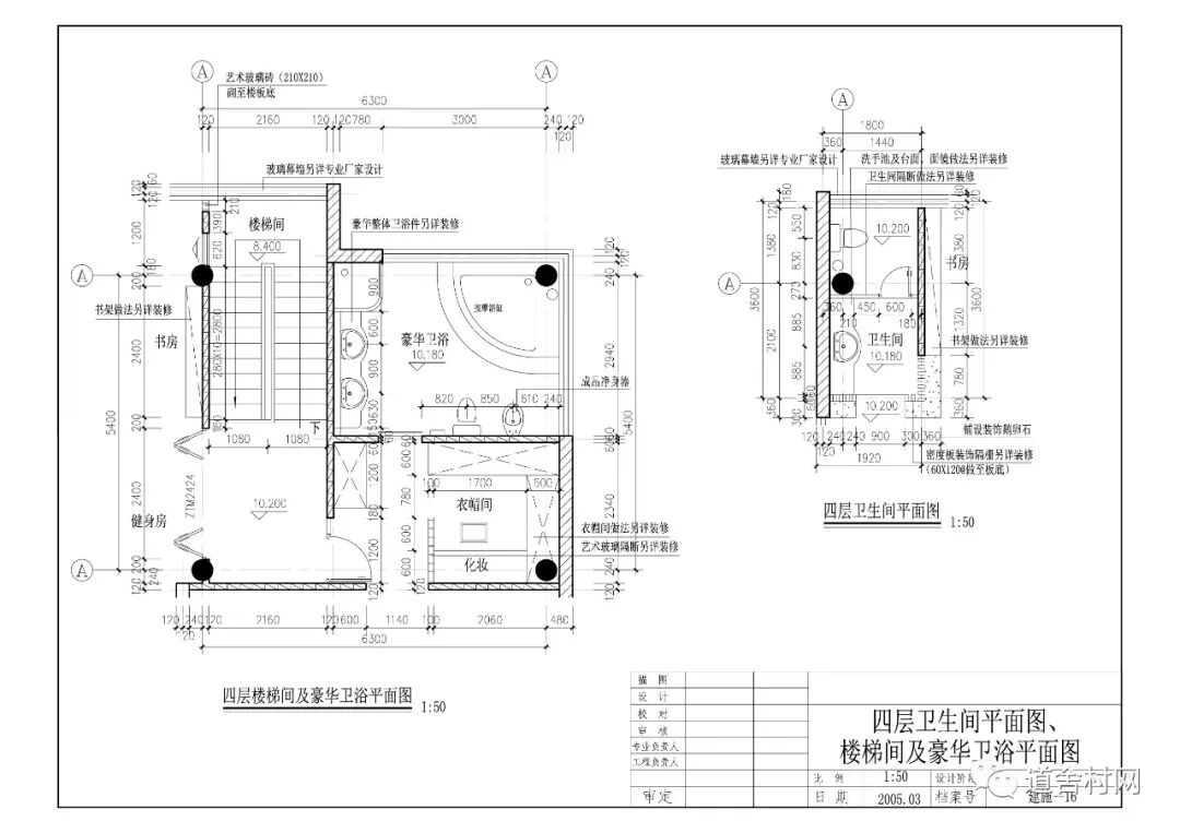
这是四层卫生间平面图、楼梯间及豪华卫浴平面图

△四层卫生间平面图、楼梯间及豪华卫浴平面图
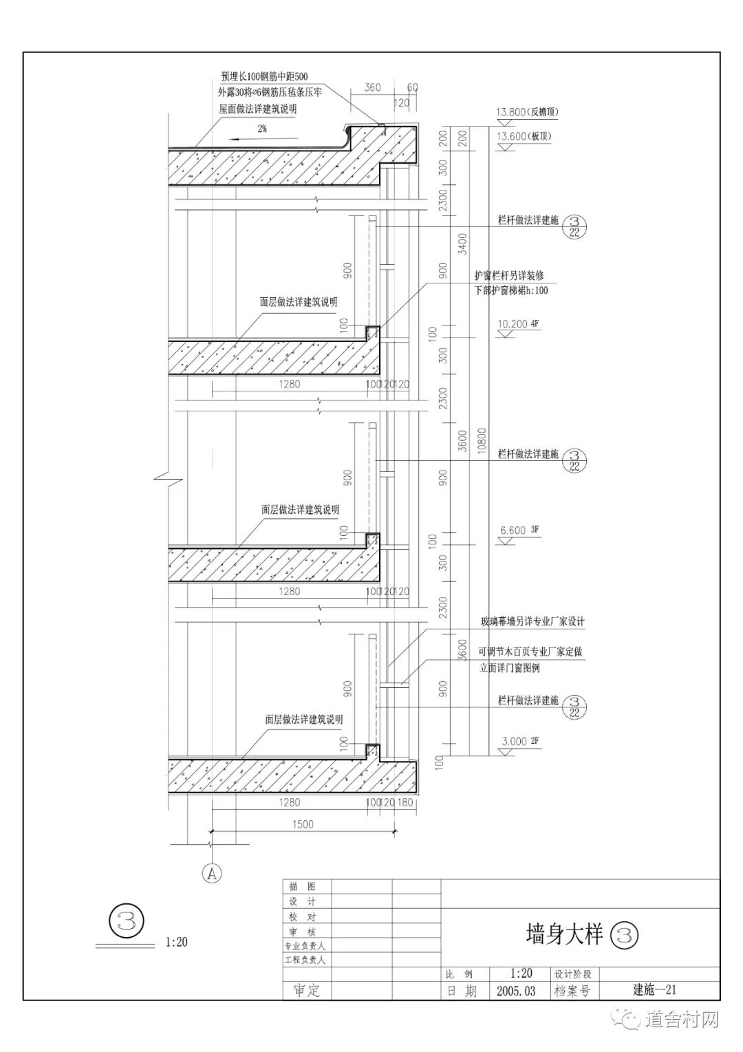
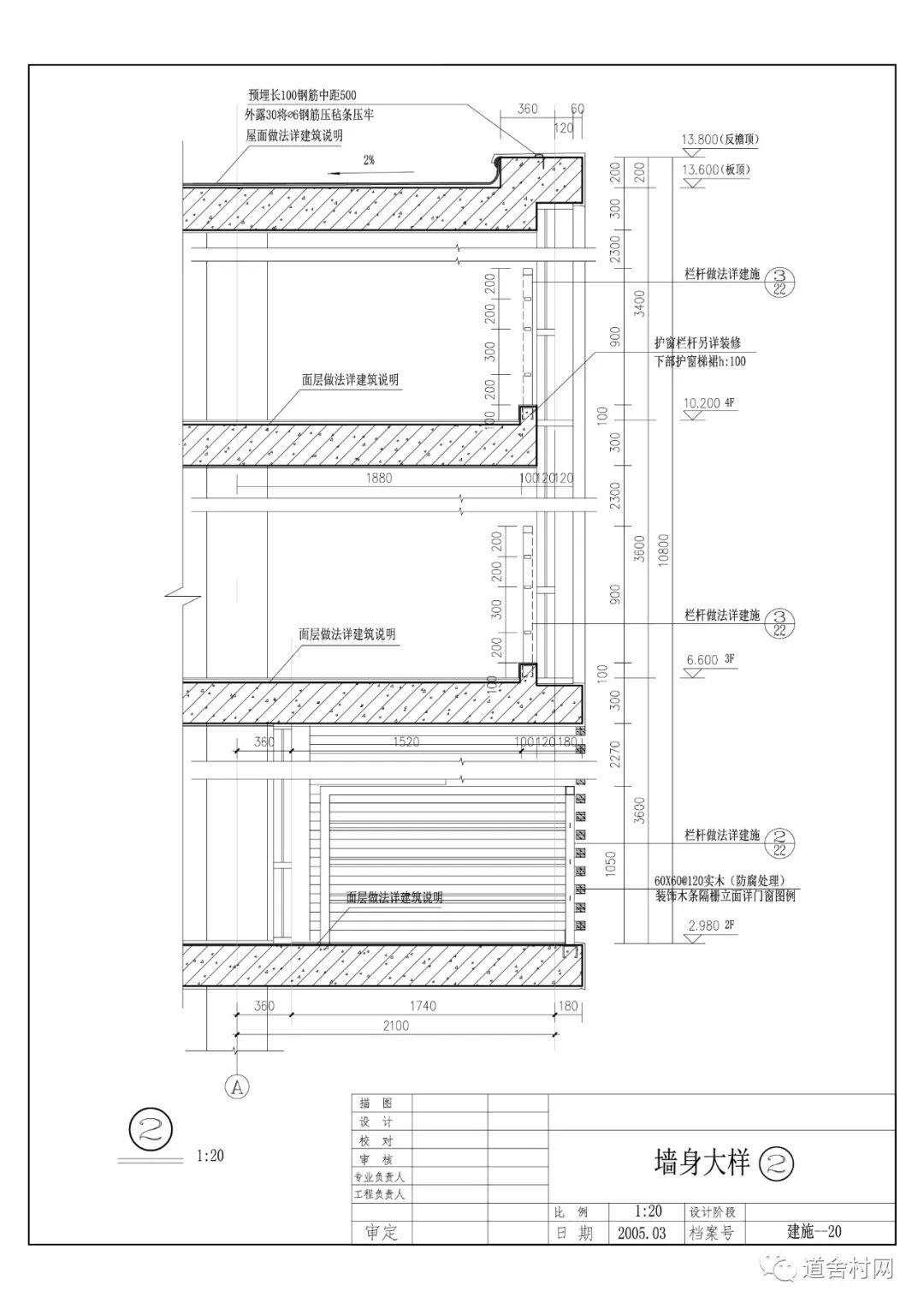
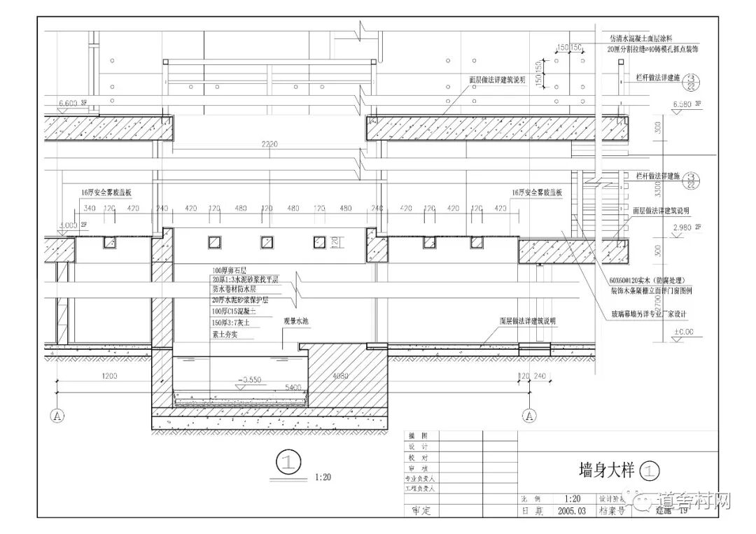
这是墙身大样。



△墙身大样
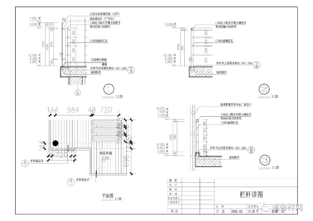
这是栏杆详图

△栏杆详图
当然还有门窗表和单项工程设计说明等等,我这里就不一一分享了,时间有限,反正图纸齐全。
        
      
如果你想盖一栋自己的房子
告诉【道舍村网】您的需求
我们将为您提供一站式服务
设计、施工

扫微信公众号,设计有优惠!
商务合作
诚邀
全球范围有实力的
设计师/施工队/建材厂家/家居厂家
与我们合作
合作咨询电话
027-87509668
18171898565

道舍村网创始人微信二维码
合作交流请扫码
(请您备注来自公众号+来意+城市,谢谢配合)

【招募】城市合伙人。一定要做农村!
【入驻】道舍村网诚邀全球优质施工队入驻
【现场勘测】您知道您为何钱花了房子起不好吗?
全套图纸点击这里免费领取
附上汤亮帅帅的照片,请欣赏

↓↓↓点击【阅读原文】进入道舍村网官网

道  舍  村  网
阅读原文
到顶部