继续操作前请注册或者登录。

道舍村网科技:13.2乘14.1农村3层现代别墅


这是效果图。

△效果图
道舍村网科技案例展示(小部分)



Δ中国湖北汉川夏府别墅项目













Δ中国湖北武汉东西湖四合院项目

Δ加拿大温尼伯mercharts项目

Δ加拿大温尼伯prichard项目


Δ中国浙江桐乡市生态公厕建设项目



Δ中国湖北荆州市鑫利嘉境别墅项目
(篇幅有限,不一一展示了)
农村盖房
上道舍村网
设计施工一站式盖房服务
让您省时、省心、省力、省钱
自建房
别墅
民宿
庄园
设计施工

下单咨询
18171898565
微信扫一扫即可添加汤亮微信
(请您备注来自公众号+来意+城市,谢谢配合)

下单咨询
18171898565
微信扫一扫即可添加汤亮企业微信
(请您备注来自公众号+来意+城市,谢谢配合)

下单咨询
18086036676
(微信同步)
      
      今天的图文呢一定要转发,让更多人看到。耐心看到最后有彩蛋哦,在工作在加班在陪老婆孩子的在喝酒的,不妨先收藏起来,空闲时间好好看看,因为这就是你未来的别野,要相信自己呀。
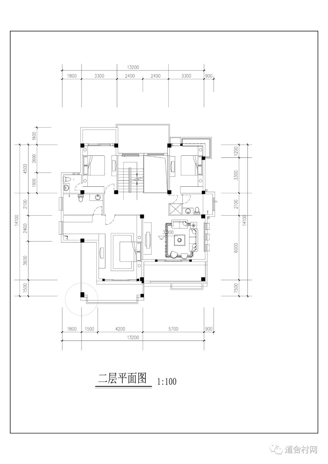
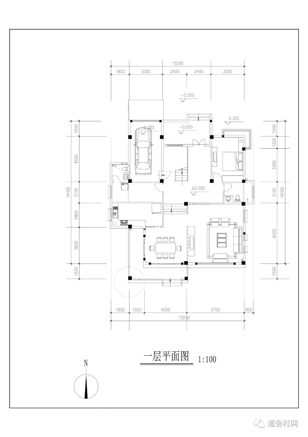
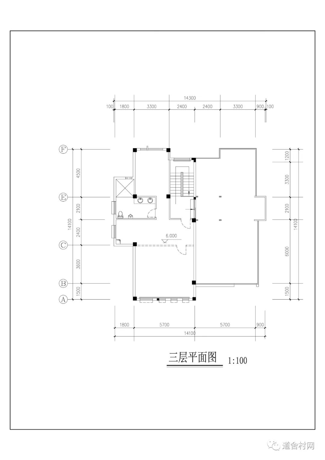
       今天给大家分享一套农村3层现代别野,开间13.2米,进深14.1米,建筑图都有哈,我们来看看建筑图功能布局,

△首层平面图
       我们先来看看首层,首层设有客厅餐厅厨房卫生间、车库、卧室,
我们再来看看二层都有哪些功能,二层设有三间各自带独立卫生间和阳台的卧室借一间带独立卫生间和飘窗的卧室。

△二层平面图
我们再来看看三层设有哪些功能,三层基本上就是卫生间和大露台了。

△三层平面图
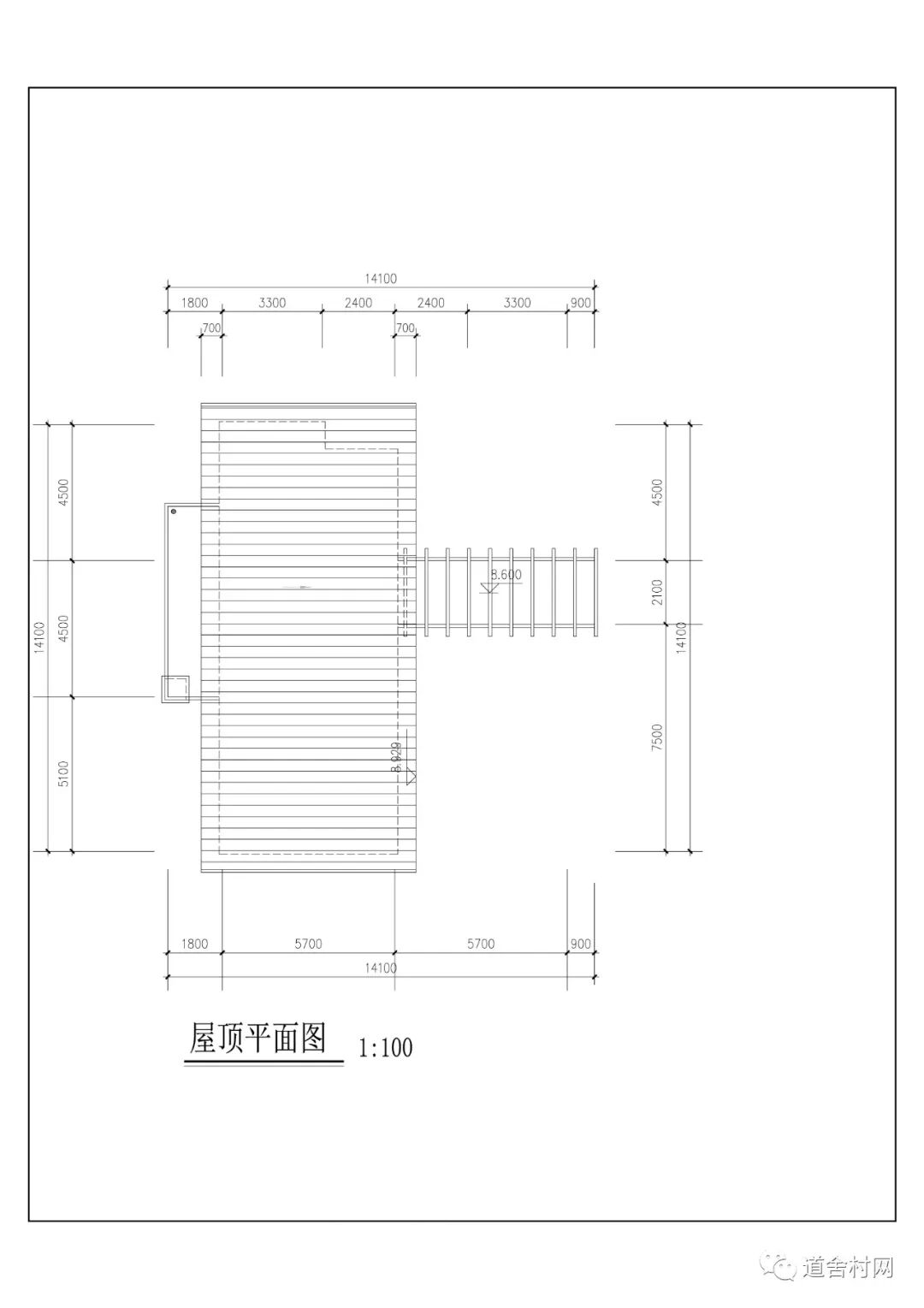
这是屋顶平面图。

△屋顶平面图
这是立面图。

△立面图
     
如果你想盖一栋自己的房子
告诉【道舍村网】您的需求
我们将为您提供一站式服务
设计、施工

扫微信公众号,设计有优惠!
商务合作
诚邀
全球范围有实力的
设计师/施工队/建材厂家/家居厂家
与我们合作
合作咨询电话
027-87509668
18171898565

道舍村网创始人微信二维码
合作交流请扫码
(请您备注来自公众号+来意+城市,谢谢配合)

【招募】城市合伙人。一定要做农村!
【入驻】道舍村网诚邀全球优质施工队入驻
【现场勘测】您知道您为何钱花了房子起不好吗?
全套图纸点击这里免费领取
附上汤亮帅帅的照片,请欣赏

↓↓↓点击【阅读原文】进入道舍村网官网

道  舍  村  网
阅读原文
到顶部