继续操作前请注册或者登录。

道舍村网科技:农村人自建的小别墅真漂亮,我看得心动了,你认为花了多少钱



△效果图
这栋农村自建房,让我看得心动了。你知道这栋农村别墅只要多少米吗?
粉丝说他只有40万,我说31万都多了,于是在我们图库里找了这栋农村自建房设计图。我们一起来看看这栋不要31万的农村自建房吧。

△施工现场实拍图
道舍村网科技案例展示(小部分)



Δ中国湖北汉川夏府别墅项目













Δ中国湖北武汉东西湖四合院项目

Δ加拿大温尼伯mercharts项目

Δ加拿大温尼伯prichard项目


Δ中国浙江桐乡市生态公厕建设项目



Δ中国湖北荆州市鑫利嘉境别墅项目
(篇幅有限,不一一展示了)
农村盖房
上道舍村网
设计施工一站式盖房服务
让您省时、省心、省力、省钱
自建房
别墅
民宿
庄园
设计施工

下单咨询
18171898565
微信扫一扫即可添加汤亮微信
(请您备注来自公众号+来意+城市,谢谢配合)

下单咨询
18171898565
微信扫一扫即可添加汤亮企业微信
(请您备注来自公众号+来意+城市,谢谢配合)

下单咨询
18086036676
(微信同步)
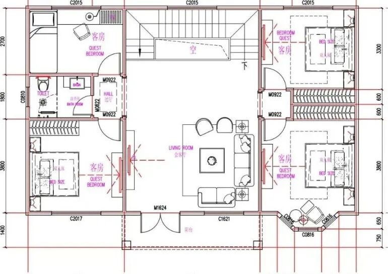
欢迎光临一楼,三室两厅一厨一卫一门廊。
进门是你家客厅,。北边餐厨房隔断,东北角、东南角分别设有一间卧室,东南角卧室独特八角窗设计,既增加别墅利用面积,同时增加了卧室进光率,让别墅采光更加通透高级。点亮小红星,财源滚滚来。正西向设有干湿分离的公卫。

△一层平面图
二楼四室一厅一卫一阳台,
其中西北角、西南角分别设有一间卧室。正西向设有干湿分离公卫,且设在两卧室中间,方便家人使用。
东北角、东南角分别设有一间卧室,二楼东南角卧室也是采用独特八角窗设计,既增加别墅利用面积,同时增加了二楼东南角卧室进光率,让别墅采光更加通透高级。正南向是你家二楼超大会客厅带阳台,阳台可夏乘凉秋赏月。

△二层平面图
这栋农村自建房基本上打工两年就拿下了,你看我们客户不就自建了这栋小别墅吗。看完你心动了吗?
方圆50000公里,找不到第二栋像这栋让我看得心动的农村自建房。
如果你想盖一栋自己的房子
告诉【道舍村网】您的需求
我们将为您提供一站式服务
设计、施工

扫微信公众号,设计有优惠!
商务合作
诚邀
全球范围有实力的
设计师/施工队/建材厂家/家居厂家
与我们合作
合作咨询电话
027-87509668
18171898565

道舍村网创始人微信二维码
合作交流请扫码
(请您备注来自公众号+来意+城市,谢谢配合)

【招募】城市合伙人。一定要做农村!
【入驻】道舍村网诚邀全球优质施工队入驻
【现场勘测】您知道您为何钱花了房子起不好吗?
全套图纸点击这里免费领取
附上汤亮狂拽酷帅吊炸天的照片,请欣赏

↓↓↓点击【阅读原文】进入道舍村网官网

道  舍  村  网
阅读原文
到顶部