继续操作前请注册或者登录。

道舍村网科技:农村自建别墅效果图,朋友预算70万,设计图大家一起来参考参考



△效果图一
这栋农村独栋别墅设计图,高于朋友预期了。你知道这栋农村别墅只要多少米吗?
开公司的一位朋友说他只有70万,多了没有,我说48万都多了,于是在我们图库里找了这栋农村盖房设计图纸。我们一起来看看这栋不要48万的农村自建房吧。
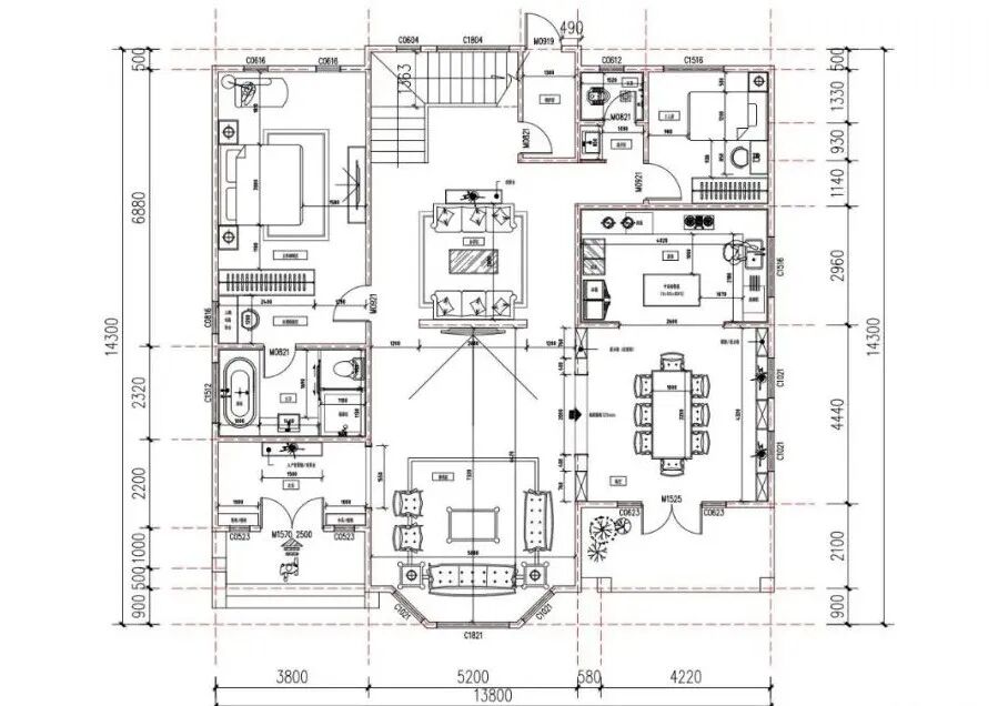
欢迎光临一楼,两室两厅一厨两卫一门厅一玄关一锅炉房,。
门廊进来设有玄关,鞋柜、伞具都可以摆在玄关里头,靠墙可以做一个入户背景墙或对景台都可以。西北角设有一间卧室带独立卫生间,把浴缸、洗脸台、马桶、淋浴区进行了合理分区,卧室里头做了一个衣帽梳妆区,可以采用上翻式梳妆台,我相信女人都懂哈。喜欢就点赞,建房来看看。
中间是你家55平大客厅,做了两个分区,其中客厅南向作为影视区,中间靠近楼梯部分作为会客区。独特八角窗设计,既增加别墅利用面积,同时增加了会客厅进光率,让别墅采光更加通透高级。楼梯东边设有一间锅炉房,这个农村用不上啊,其实你家烧热水的锅就可以当做一个小型锅炉。锅炉房东边设有一间干湿分离的公卫,东北角是你家工人房,东南角餐厨房一体化,也可以做个推拉门隔断。设有单独出入口,干净又卫生。

△首层平面图

△效果图二
道舍村网科技案例展示(小部分)



Δ中国湖北汉川夏府别墅项目













Δ中国湖北武汉东西湖四合院项目

Δ加拿大温尼伯mercharts项目

Δ加拿大温尼伯prichard项目


Δ中国浙江桐乡市生态公厕建设项目



Δ中国湖北荆州市鑫利嘉境别墅项目
(篇幅有限,不一一展示了)
农村盖房
上道舍村网
设计施工一站式盖房服务
让您省时、省心、省力、省钱
自建房
别墅
民宿
庄园
设计施工

下单咨询
18171898565
微信扫一扫即可添加汤亮微信
(请您备注来自公众号+来意+城市,谢谢配合)

下单咨询
18171898565
微信扫一扫即可添加汤亮企业微信
(请您备注来自公众号+来意+城市,谢谢配合)

下单咨询
18086036676
(微信同步)
二楼四室四卫两阳台,
其中西北角、西南角分别设有一间卧室并各自带独立卫生间,西南角卧室还加阳台。东北角设有一间卧室带独立卫生间,正南向设有一间卧室,带独立卫生间加书房加阳台,同样是独特八角窗设计,既增加别墅利用面积,同时增加了卧室进光率,让别墅采光更加通透高级。所有卧室都可以放茶水柜,大卧室门口可以放个换鞋椅,展示柜多打几个,别墅都盖这么好了,还差这几个钱,对吧?阳台可夏乘凉秋赏月。

△二层平面图
这栋农村自建房基本上打工三年就拿下了,朋友看后高兴得整晚睡不着,高于他预期了,48万就能干出70万的事儿,看完你你觉得咋样呢?

△效果图三
方圆50000公里,超出我朋友预期的属这栋农村别墅二层设计图。

 
△效果图四
     
    
如果你想盖一栋自己的房子
告诉【道舍村网】您的需求
我们将为您提供一站式服务
设计、施工

扫微信公众号,设计有优惠!
商务合作
诚邀
全球范围有实力的
设计师/施工队/建材厂家/家居厂家
与我们合作
合作咨询电话
027-87509668
18171898565

道舍村网创始人微信二维码
合作交流请扫码
(请您备注来自公众号+来意+城市,谢谢配合)

【招募】城市合伙人。一定要做农村!
【入驻】道舍村网诚邀全球优质施工队入驻
【现场勘测】您知道您为何钱花了房子起不好吗?
全套图纸点击这里免费领取
附上汤亮帅帅的照片,请欣赏

↓↓↓点击【阅读原文】进入道舍村网官网

道  舍  村  网
阅读原文
到顶部