道舍村网科技:3款农村自建房一层设计图纸,乞丐也盖得起,很多粉丝问到所以安排



△第一款效果图
这3套农村自建房设计方案,造价都不高,乞丐也盖得起。
有些粉丝朋友在评论区互动有没有一层的农村自建房设计图。那么今天汤亮不洗澡也要抽出时间安排,。拿出三套跟大家分享交流一下。我们一起来看看


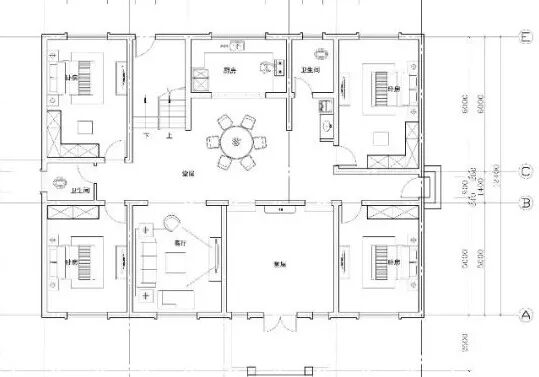
第一套两室两厅一厨一卫一门廊。
门廊进来是你家客厅,北边餐厨房隔断,餐厅设有单独出入口,干净又卫生。正东向设有一间公共卫生间,西北角西南角分别设有一间卧室。三大材料用量预算:砖:54立方, 混凝土:46立方,钢筋:4吨。参考造价9.8万左右。

△第一款首层平面图

△第一款屋面层平面图
道舍村网科技案例展示(小部分)



Δ中国湖北汉川夏府别墅项目













Δ中国湖北武汉东西湖四合院项目

Δ加拿大温尼伯mercharts项目

Δ加拿大温尼伯prichard项目


Δ中国浙江桐乡市生态公厕建设项目



Δ中国湖北荆州市鑫利嘉境别墅项目
(篇幅有限,不一一展示了)
农村盖房
上道舍村网
设计施工一站式盖房服务
让您省时、省心、省力、省钱
自建房
别墅
民宿
庄园
设计施工

下单咨询
18171898565
微信扫一扫即可添加汤亮企业微信
(请您备注来自公众号+来意+城市,谢谢配合)

△第二款效果图
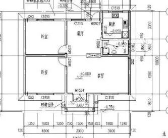
第二套三室两厅一厨一卫一储藏间一门廊一玄关。
入户是1.5米的半封闭式门廊,很好的把室内与室外过度,家人可以在这里锻炼乘凉,喜欢就点赞,建房来看看。
观赏家乡美景,还可以摆放一些盆景,摆上小椅子晒太阳,生活惬意自由。门廊进来设有玄关,西南角是你家客厅,西北角餐厨房隔断,厨房设有单独出入口,干净又卫生,正北向设有一间公共卫生间,公共卫生间东边设有一间主卧室,东北角设有一间储藏室,南边设有两间卧室,三大材料用量预算:砖:62立方,混凝土:44立方,钢筋:4.2吨,参考造价13万左右。

△第二款平面图

△第三款效果图一
第三套局部两层,欢迎光临一楼,四室两厅一厨两卫一堂屋一门廊。门廊进来是你家堂屋,这个在农村很常见,堂屋西边是你家客厅,东南角、东北角分别设有一间卧室,北边餐厨房隔断,厨房东边设有一间干湿分离的公共卫生间,洗衣机也摆在里头,有条件的话洗衣机可以单独设个房间
没有条件就这样也是可以的。西北角和西南角分别设有一间卧室,正西向设有一间公共卫生间,且设在两卧室中间,方便家人使用。

△第三款首层平面图
二楼西北角和东北角分别设有一间卧室,正西向设有一间卫生间,且设在两卧室中间,方便家人使用,正南向设有一个露台,可夏乘凉秋赏月。三大材料用量预算:砖:72立方,混凝土:43立方, 钢筋:5.2吨,参考造价15万左右。

△第三款二层平面图
这3套农村自建房设计方案,看完你你觉得咋样呢?造价都不高,乞丐也盖得起。有粉丝问到,所以必须安排到位。

△第三款效果图二
方圆50000公里,造价都不高的属这3栋一层农村自建房设计方案。

△第三款效果图三

△第三款效果图四
  
如果你想盖一栋自己的房子
告诉【道舍村网】您的需求
我们将为您提供一站式服务
设计、施工

扫微信公众号,设计有优惠!
商务合作
诚邀
全球范围有实力的
设计师/施工队/建材厂家/家居厂家
与我们合作
合作咨询电话
027-87509668
18171898565

道舍村网创始人微信二维码
合作交流请扫码
(请您备注来自公众号+来意+城市,谢谢配合)

【招募】城市合伙人。一定要做农村!
【入驻】道舍村网诚邀全球优质施工队入驻
【现场勘测】您知道您为何钱花了房子起不好吗?
全套图纸点击这里免费领取
附上汤亮狂拽酷帅吊炸天的照片,请欣赏

↓↓↓点击【阅读原文】进入道舍村网官网

道  舍  村  网
阅读原文
到顶部