275㎡杭州现代别墅,400万在家里装了个盒子,看完惊呼值了!


| 2021筑巢奖-别墅空间专业金奖作品 |

水光潋滟晴方好,山色空濛雨亦奇。
欲把西湖比西子,淡妆浓抹总相宜。
——宋朝苏轼
杭州西湖,作为独具一格的世界文化景观遗产,春夏秋冬各有景致。本案临湖而居,城中的繁华与世外的清幽一湖之隔,门前不远处是西湖十景之一"柳浪闻莺",暖春时节,柳绿莺啼。 闲暇时可漫步西湖,湖光山色,尽收眼底,眺望间涤静心灵。

房子本身是毛坯房,业主的儿子一开始找过绍兴当地装修公司做,但并不满意。后来由业主推荐,重新推翻进行改造。业主注重睡眠环境,设计师将卧室氛围营造的尽可能舒适。中式加入现代元素,简约不简单,整体简洁不繁复,不冰冷,将光线进行了合理利用。
::
客厅  Living Room 
不同的人对颜色有不同的感受,在五彩斑斓的色彩世界,黑白灰对空间的呈现更为纯粹, 结构主义的小小运用,给灯光的指引做出巧妙的安排。每一件家具,都只为这个空间而生,倾斜出完美的回应,简洁的玻璃门,是墙的另一种陪伴,还有那扇门后的秘密。


不同于以往的电视背景墙,设计师去掉了电视,以大理石瓷砖为背景,做成了装饰的壁炉,同时还兼具储物功能。加上木制的地板,多了些稳重硬朗。

::
走廊  Corridor 
地面的大理石低调又极具张力的纹理,从回廊延伸到每个区域,提示空间应有的温度,一种现代摩登与含蓄东方并存的意趣,方寸之间感受精致优雅,空间关系恰到好处,是本案设计师最喜欢停留的地方。

楼梯转合处错落有致,台阶灯光柔和,体验一步一欢喜。

灰黑色的墙面,不仅不会显得粗糙,和灯光融合反而多了一丝人文的厚重感。

::
书房  Study room 
每一个人都有心中期望的房子,属于自己的风格,适合自己的生活方式,蕴含自己的生活态度,每一个人,都梦想有自己的书房,那是专属的空间。

设计师在客厅中"挑起"空中的盒子,使得空间一分为二,特殊的室内建筑形式,使之形成一个室内的"外"空间,本是"无中生有"的存在,却后来居上,成为整套居室当之无愧的主角。

内嵌的书架,金铜色的线条。在这里,一杯清香的茶,一杯浓醇的咖啡,让繁忙放松下来,安静的阅读,这是一天中最美好的时光。


::
餐厅  Dining Room 
餐厅更加强调线条感的存在,空间之间界限分明,清晰明了。吊灯的设计成为了简约空间中最耀眼的存在。

黑色与黄铜色结合,使整体更具质感。

::
主卧  Host Bedroom 
黑色的背景似乎更加符合“好睡”的哲学。微光的壁灯配合了夜幕的降临,好的睡眠和饮食一样,都是对生活最好的尊重。

卫生间没有明显的边界感,虽然是干湿分离又好像融合成了统一的空间。无边框的镜子,纯透明的玻璃门,传统的黑白灰组合,简约却不简单。

项目名称:空中的盒子
设计风格:现代,中式
项目地区:浙江 杭州市
项目规模:275㎡
建设成本:400万元
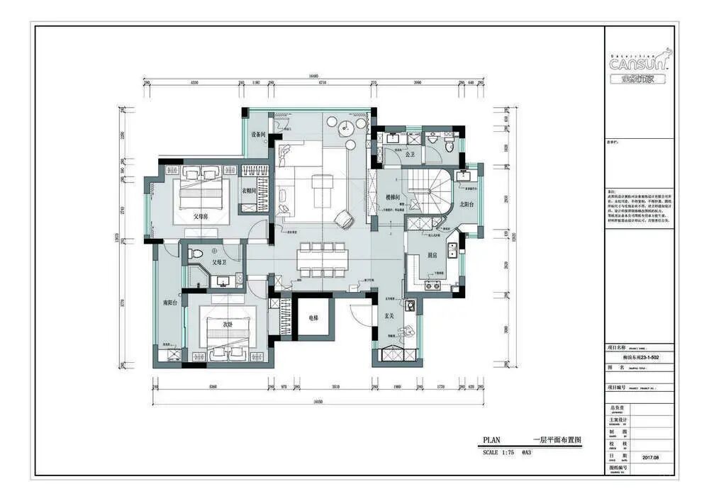
  关于项目平面图  

  关于项目设计师  

设计师团队源木出品

“筑巢奖”于2009年创办,现已成功举办十届。由筑巢奖组委会独立运营,累计近6万人次报名参与,征集作品量近10万。“筑巢奖”关注年轻设计师的成长,倡导以人为本,关注民生,推广具有普适性和示范性的设计,致力于打造中国具有权威性、公信力和影响力的室内设计赛事。
合作联系
广告合作:QQ 2376181903
咨询&找设计师:微信 zc19941873651
作品投稿邮箱:578809721@qq.com
到顶部