300㎡大平层被毁,拆掉重装,花180万只为两代人同住不受影响,太舍得了!


| 2021筑巢奖-大户型空间专业金奖作品 |

今天要和大家分享的个案例有些特别之处,在装修的时候,它既不是毛坯房,也不是精装房,而是快要装修好的300㎡大平层,虽然是不小的一笔开销,但业主决定全部拆掉重装,业主邀请专业设计团队深圳漾空间设计有限公司为其设计,只希望通过设计放大户型的优势,让两代人一起居住的家能更开放化、艺术化,由此,《无垠》诞生。
空间存在的问题:
○现场施工进行到一半,较为复杂,拆除原有装修,重新设计;
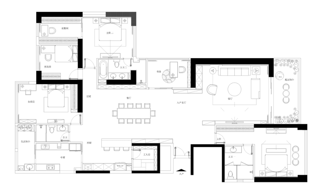
○原户型进门后视线被墙体或房门阻挡,视觉感不够开阔;
○餐厅较细长,对桌子的摆放限制较大;
○总体看来并不像是300㎡的大平层。
▲ 改造后户型图
业主的装修诉求:
○业主多年海外生活经验,喜欢轻硬装重软装的装修效果;
○除了卧室外,都不希望太生活化,房子面积比较大,需要尽量显得大气、突出空间感。
○两代人一起居住,功能方面的需要较多,要考虑周全。
.01
放大空间感,发挥大平层之大
基于不同的生活经历、人生阅历,每位业主对于“家”都有自己的定义。无论是简约大气或奢华高级,还是舒适温馨或精致典雅,业主描绘出了对家的期待,设计师在格局规划上避免了小块区域的划分,尽量以开放的形式融入公共区域,凸显大平层优越的空间感。

设计手法上大量运用体块、穿插、线条等元素,打破空间的局限,让空间更有活力、延展性,空间感、更融合的功能区成就着更和谐的家庭生活……

家人可最常围聚,根据常住人口情况摆放了主沙发、躺椅、单人沙发等家具,围合式布局突破了造型的限制,让空间更为灵活宽敞;以实用和环保为基础,摈弃繁琐的设计元素,让空间大面积的留白,仅在背景墙局部区域排线成面丰富装饰细节,同时将线性收口融入面中,让界面转折处干脆利落、连贯统一,更显极简大气空间感。

客厅以暖灰色为基调彰显精致优雅的空间氛围,时尚现代款家具和暗纹地毯的组合让人视觉焦点顺势下移,而线条感强烈、造型独特的钓鱼灯则又将视觉焦点拉高,上下之间,各有亮点。

沙发后带拱门元素的挂画与边几上弧形摆件相呼应,构建了抽象与现实的气质联结,为空间增添许多生活意趣。


电视背景墙以凹凸款横条瓷砖打底,个性十足,四周则采用了虚实相间且不对称的设计手法,利用体块的形状、线条的密度和疏密交错的对比,创造充满视觉张力的艺术空间。

黑色钢条与大理石、烤漆板和瓷砖之间的体块穿插和组合,让空间更有趣味,同时也便于业主及时看到入户情况,而从外往里看则会觉得内有乾坤,空间更有延伸感。
.02
空间开放又艺术,满足两代人需求
餐厅、与西厨共处在一个空间内,将空间放开,少了拘束,更延续了空间之大,动线设计既自由又有秩序,不会因人多而扰乱生活节奏;中西厨的设计满足了两代人居住的使用需求,中厨拥有完善的厨房设备,各种菜系都能驾驭,无惧油烟。

室内高度既定而宽度是可延展的,将公共区域打造成横轴形态,动线涵盖了客厅、餐厅、厨房等区域,整体利落连贯,视线通透开阔,空间延伸感大大提升。

西厨区域以定制的长吧台融入公共区域,可随时看到孩子的动静,也能享受与亲友无拘束的互动乐趣,无论是视觉上还是使用上都拥有绝佳体验。

餐厅皮质餐椅线条优雅而现代,大理石餐桌简洁而不失质感,搭配中性色马赛克挂画,轻松营造出精致优雅的就餐氛围,为生活注入了艺术美感。


厨房、餐厅和开放式的结构还原了原本空间的大,白色橱柜与黑白相配的吧台结合,延续了业主喜爱的简约设计,过道也并没有做太多的布置,单单用一幅简画装饰出空间的艺术性,那是业主所向往的美好......

厨房吧台白色岩板台面与半封闭式的烤漆柜门相互映衬,吧椅则选用与开放柜同色系的灰色,白灰之间有藏有露,让空间更为灵动。
.03
私人生活区,简单实用

书房以黑色、白色和木色为基调,搭配亮眼的咖色软装,以简洁大气、有设计感的造型让空间充满艺术氛围。

卧室主色调与公共区域的黑白灰相对应,赭石色的床头造型并入灰度递增的硬包与护墙板,搭配富有创意的灯具和床头柜,细节之处表现出的艺术品味让心灵得以放松和休憩。

主卫以大理石材质为主,更显高端大气、气韵悠扬,双台盆和大镜面的设计让空间更加明亮通透,彰显一种美好、精致的生活态度。

卫生间规划合理,布局明确,淋浴区用玻璃门作为隔断,墙面使用现代、有序的瓷砖材质,更显时尚、未来。
《无垠》表达的是人与空间、环境、文化之间的延展性,相互渗透且无边无际。
  关于项目团队  

深圳漾空间设计有限公司

“筑巢奖”于2009年创办,现已成功举办十届。由筑巢奖组委会独立运营,累计近6万人次报名参与,征集作品量近10万。“筑巢奖”关注年轻设计师的成长,倡导以人为本,关注民生,推广具有普适性和示范性的设计,致力于打造中国具有权威性、公信力和影响力的室内设计赛事。
合作联系
广告合作:QQ 2376181903
咨询&找设计师:微信 zc19941873651
作品投稿邮箱:578809721@qq.com
到顶部