继续操作前请注册或者登录。

道舍村网科技:27.6乘10.8农村3层现代联排别墅


这是整容成功的效果......图。

△效果图
道舍村网科技案例展示(小部分)



Δ中国湖北汉川夏府别墅项目













Δ中国湖北武汉东西湖四合院项目

Δ加拿大温尼伯mercharts项目

Δ加拿大温尼伯prichard项目


Δ中国浙江桐乡市生态公厕建设项目



Δ中国湖北荆州市鑫利嘉境别墅项目
(篇幅有限,不一一展示了)
农村盖房
上道舍村网
设计施工一站式盖房服务
让您省时、省心、省力、省钱
自建房
别墅
民宿
庄园
设计施工

下单咨询
18171898565
微信扫一扫即可添加汤亮微信
(请您备注来自公众号+来意+城市,谢谢配合)

下单咨询
18171898565
微信扫一扫即可添加汤亮企业微信
(请您备注来自公众号+来意+城市,谢谢配合)

下单咨询
18086036676
(微信同步)
    
      今天的图文呢一定要转发,让更多人看到。帮助别人就是帮助自己,你的一些看似不起眼的举动就是大爱,因为有很多偏远地区的人还不知道怎么科学盖房,他们只能通过互联网去接触信息。在上班在加班在喝酒吹牛皮的在陪老婆孩子的,不妨先收藏起来,空了的时候再好好看看。因为这就是你未来的别野,心不唤物,物不至,要相信自己,一定可以的。
       今天给大家分享一套农村3层现代联排别野,开间27.6米,进深10.8米,建筑图都有哈,我们来看看建筑图功能布局,

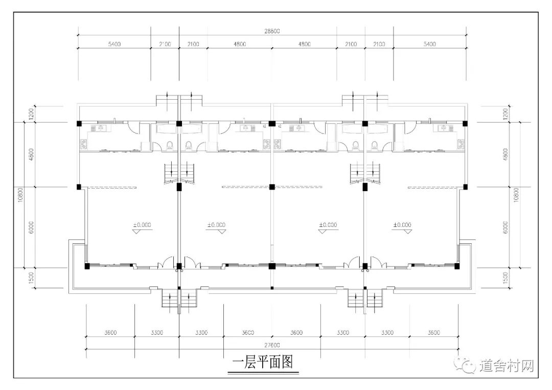
△首层平面图
      先看看首层,南边大门进来是阳台、客厅、餐厅、厨房、卫生间、阳台,厨房带单独出入口,防止蔬菜瓜果、鸡鸭鹅从南大门横冲直撞,保持室内干净整洁,左右对是对称布局,家里兄弟姐妹多的,比如这个4胞胎最合适不过了,气场直接把村里所有房子盖下去。

△二层平面图     
      我们再来看看二层,这就像我们很多男人看美女,先从大腿开始,再往上看,二层南北向各设有一个带独立卫生间的卧室,并各自配有阳台,推开推拉门就可以与大自然深度交流。西南角设有一个带独立阳台的书房,也可以是卧室,这个我都没有标注哈,太忙了,每天时间不够用,每天给大分享图纸都是抽时间,每天搞到好晚,谅解下。
    

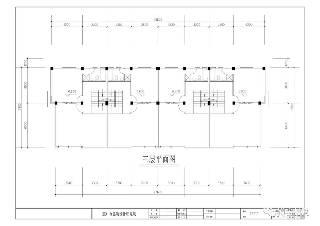
△三层平面图
      我们再来看看脸,也就是三层,三层就是北边一个带独立卫生间的卧室,南边一个大露台,傍晚烤全猪,品82年的白开水都没人管,yyds,左右都是一样的,对称布局,因为它是联排别野,不要搞特殊、
这是立面图。

△立面图
如果你想盖一栋自己的房子
告诉【道舍村网】您的需求
我们将为您提供一站式服务
设计、施工

扫微信公众号,设计有优惠!
商务合作
诚邀
全球范围有实力的
设计师/施工队/建材厂家/家居厂家
与我们合作
合作咨询电话
027-87509668
18171898565

道舍村网创始人微信二维码
合作交流请扫码
(请您备注来自公众号+来意+城市,谢谢配合)

【招募】城市合伙人。一定要做农村!
【入驻】道舍村网诚邀全球优质施工队入驻
【现场勘测】您知道您为何钱花了房子起不好吗?
全套图纸点击这里免费领取
附上汤亮帅帅的照片,请欣赏

↓↓↓点击【阅读原文】进入道舍村网官网

道  舍  村  网
阅读原文
到顶部