道舍村网科技:13.8乘10.5农村3层现代双拼别墅


这是小......效果图。

△效果图
道舍村网科技案例展示(小部分)



Δ中国湖北汉川夏府别墅项目













Δ中国湖北武汉东西湖四合院项目

Δ加拿大温尼伯mercharts项目

Δ加拿大温尼伯prichard项目


Δ中国浙江桐乡市生态公厕建设项目



Δ中国湖北荆州市鑫利嘉境别墅项目
(篇幅有限,不一一展示了)
农村盖房
上道舍村网
设计施工一站式盖房服务
让您省时、省心、省力、省钱
自建房
别墅
民宿
庄园
设计施工

下单咨询
18171898565
微信扫一扫即可添加汤亮微信
(请您备注来自公众号+来意+城市,谢谢配合)

下单咨询
18171898565
微信扫一扫即可添加汤亮企业微信
(请您备注来自公众号+来意+城市,谢谢配合)

下单咨询
18086036676
(微信同步)
       今天的图文呢一定要转发,让更多人看到。您转发说明您是一位有大爱的人,因为还有多少人不知道盖房是有方法的,您的转发就帮助到了他们,我们人类终其一生最大的成功就是你帮助了多少人,到我们最后走的时候,还有多少人记得我们。如果看不懂,不妨先收藏起来,多看几遍。今天给大家分享一套农村双拼别野,家里有两兄弟或者两姐妹的,正好可以盖栋双拼别野,兄弟姐妹情谊比天还高比地还辽阔。建筑层数3层。开间13.8米,进深10.5米,建筑图都有哈,
       我们来看看建筑施工图功能布局,首次按看看一层,北边大门进来西边是卫生间、厨房、餐厅,东边是卧室、客厅,上楼上的楼梯,楼梯平台下方设有洗衣房,你和你兄弟姐妹儿布局一模一样,对称布局。

△首层平面图
       我们再看看二层平面布局,二层北边是卧室。西北角设有卫生间,西边有个阳台,南边是带独立卫生间和书房的卧室,并且拥有一个超大阳台。可以跟媳妇傍晚在上面搞点烤全牛和品82年的雪碧。左右两边对称布局。

△二层平面图
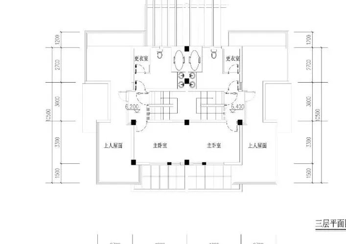
      三层主要是带更衣室的主卧室,然后上人屋面也给你独享了,可以看星星盼月亮。yyds。

△三层平面图
      
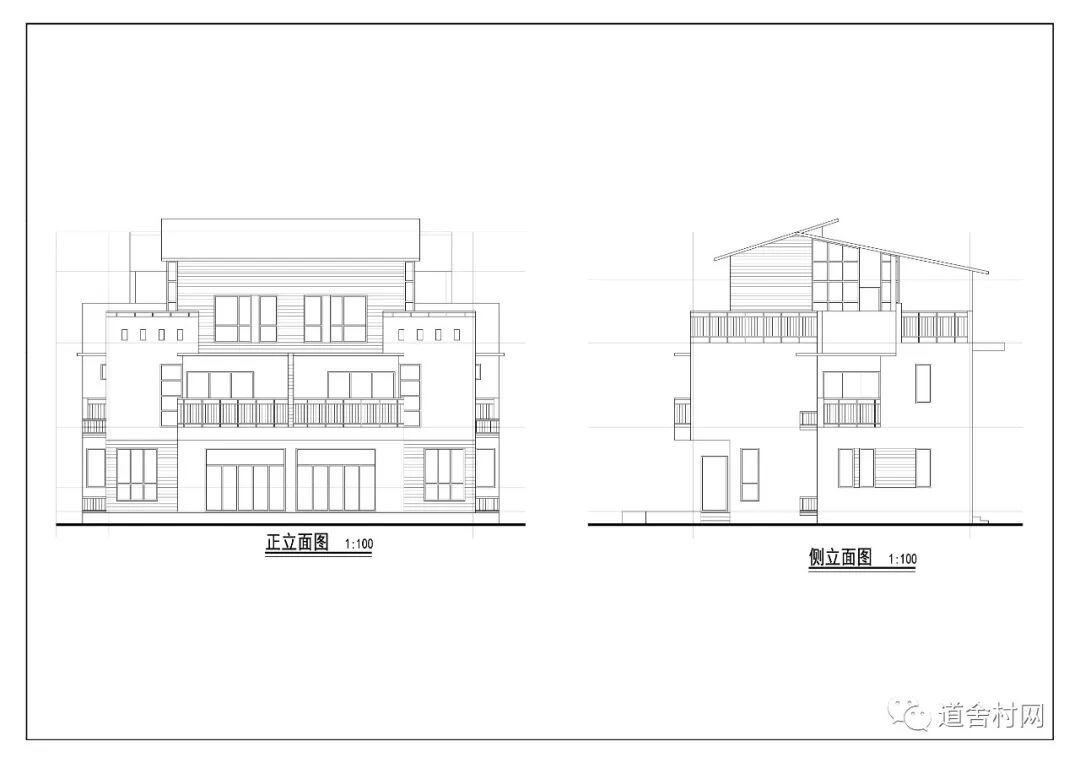
       这是立面图

     △立面图
   
       
如果你想盖一栋自己的房子
告诉【道舍村网】您的需求
我们将为您提供一站式服务
设计、施工

扫微信公众号,设计有优惠!
商务合作
诚邀
全球范围有实力的
设计师/施工队/建材厂家/家居厂家
与我们合作
合作咨询电话
027-87509668
18171898565

道舍村网创始人微信二维码
合作交流请扫码
(请您备注来自公众号+来意+城市,谢谢配合)

【招募】城市合伙人。一定要做农村!
【入驻】道舍村网诚邀全球优质施工队入驻
【现场勘测】您知道您为何钱花了房子起不好吗?
全套图纸点击这里免费领取
附上汤亮帅帅的照片,请欣赏

↓↓↓点击【阅读原文】进入道舍村网官网

道  舍  村  网
阅读原文
到顶部