道舍汤亮:对大家的热情回应表示感谢,这个活动已接近尾声。附上5套农村自建房实景加设计图


       我是汤亮,感谢大家对道舍村网科技:简短声明及求助 的热情回应,这个活动已经接近尾声,我感到非常的高兴。
       
        另外给大家分享几套农村自建房的设计图纸。
农村自建房一



△效果图
△首层平面布置图
   欢迎光临一楼,会客厅、餐厅、厨房,紧紧相拥,抱着不放,与子携手,白头到死。这样的自建房二层设计图布局很符合人们日常生活的习惯。全部开敞式的,开间进深虽小,但是给人视觉上面积很大。当然荡气回肠的卫生间是必不可少的,解决新陈代谢问题,有益于身心健康,延年益寿。上下楼梯放在角落,我好孤独呀,但是不占位置,不影响其他重要功能的布置,家居也好摆放,也不影响到交通流线,niceplus版本。

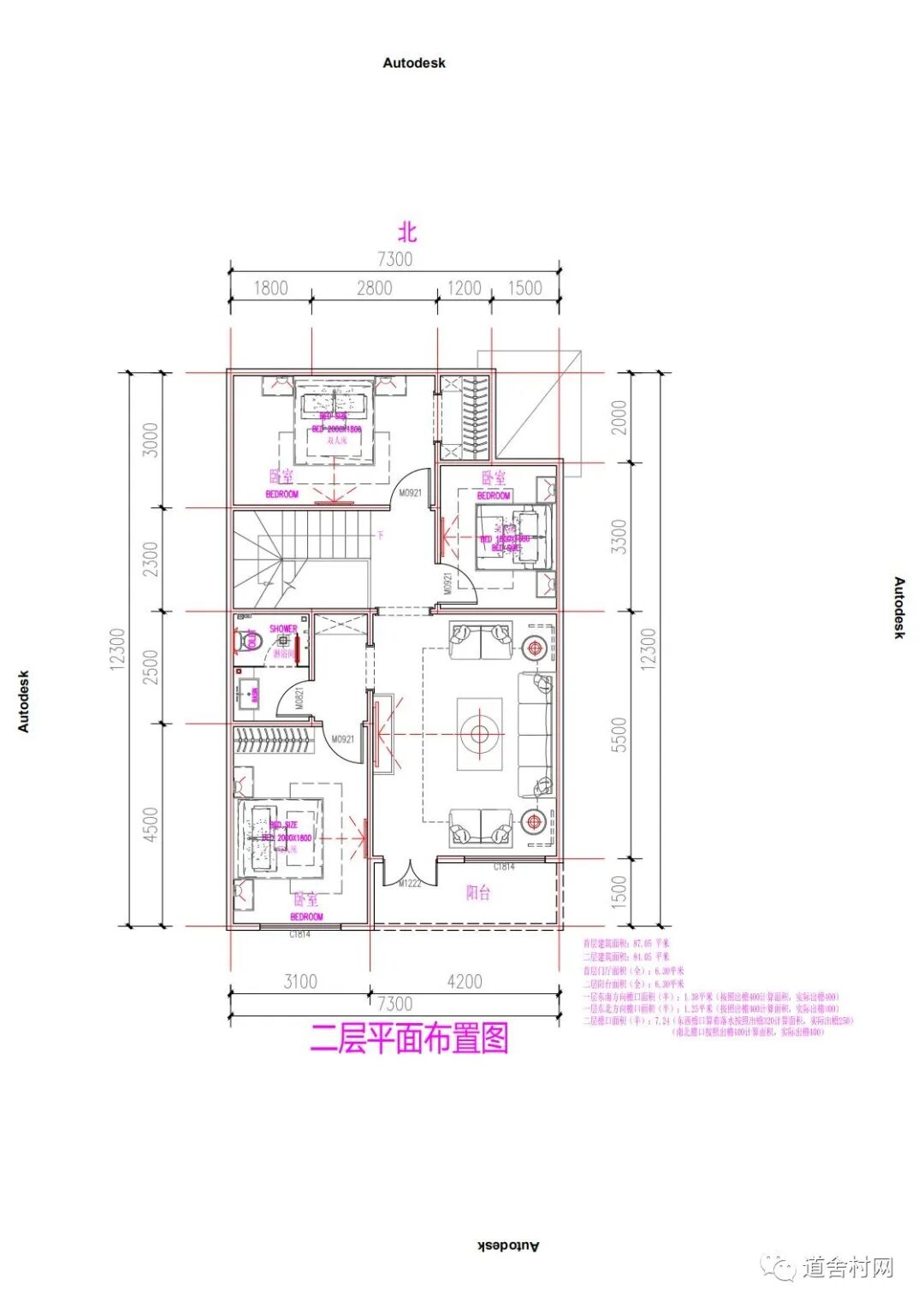
△二层平面布置图
  二层就很简单了,肯定就是睡觉觉的地方了,不然睡哪里,不可能睡沙发吧,那样一辈子下去估计一身病。所以二楼搞了个带独立荡气回肠的睡觉觉的地方,麻雀虽小,但五脏俱全呀,书房、衣帽间该有的都有。也是牛叉到掉渣了,毕竟开间只有4200,进深只有5600,两层加起来土建部分造价不到6万。
农村自建房二


△效果图
  

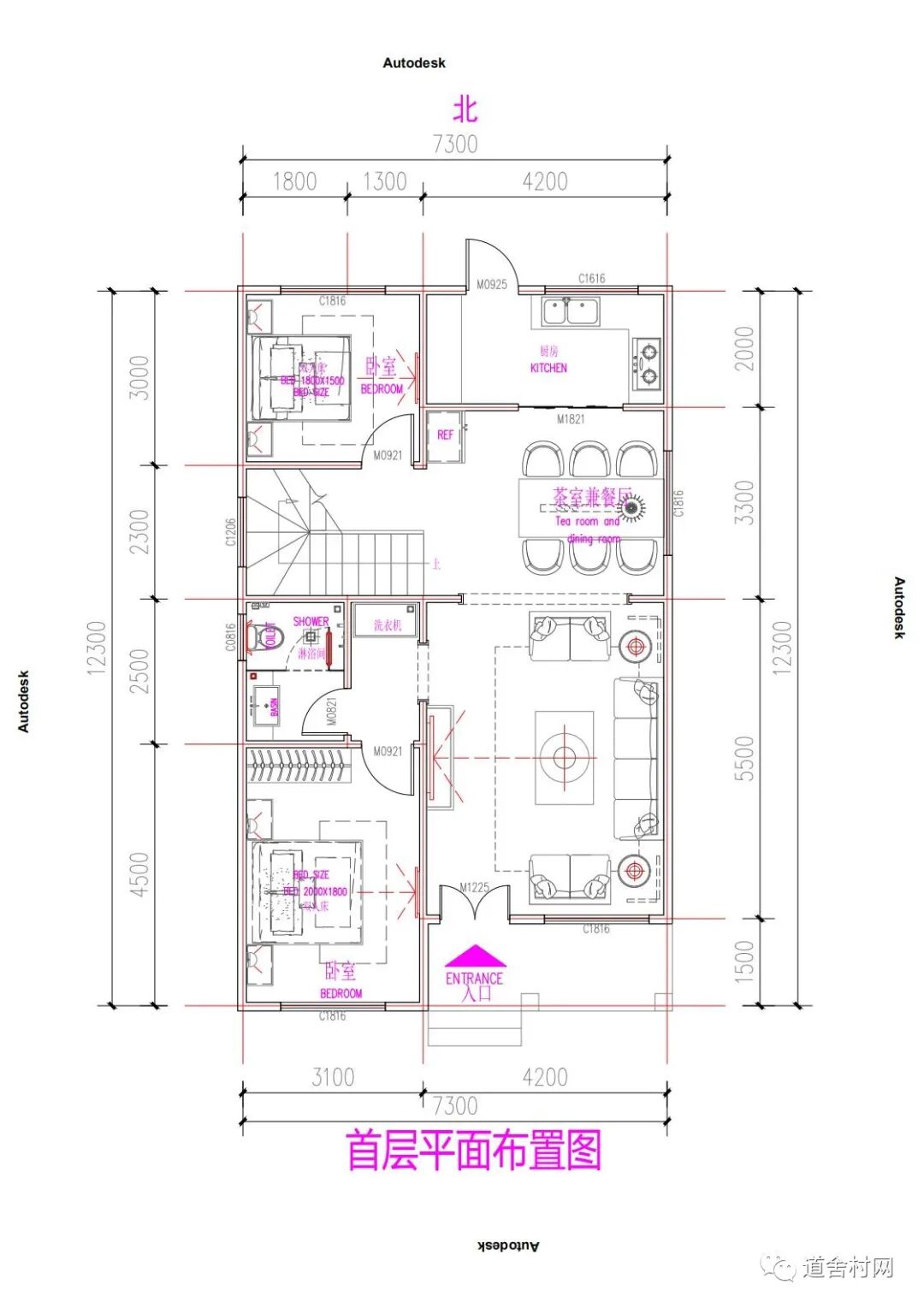
△首层平面布置图
 欢迎光临一楼,休息区、卫生间,上二楼的楼梯,嗯?有点不对劲,民以食为天,厨房呢?拐子。哦,可能在二楼,待会上去看看。楼梯放在角落,我好寂寞呀,但是不占位置,空间合理利用,不干扰交通流线。家居好摆放。

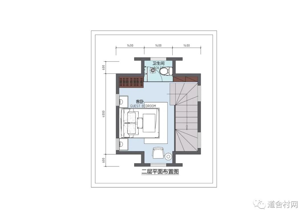
△二层平面布置图
  上二楼看看,走,咦,睡觉觉的地方,还搞了个露台,夏乘凉秋赏月,左手叼根烟,右手82年白开水,yyds牛叉pro版本,还搞了个荡气回肠的地方,我造,从头到脚没看到吃饭做饭的地,也许这家别墅房主喜欢点外卖,也或许厨房是单独做的
  如果农村自建房没有单独厨房、餐厅,千万就别这样设计了,如果你的宅基地开间5200,进深5400,建议一楼餐厅、厨房、卫生间,小一点,二楼卧室,客厅,搞什么露台啊,咱们先得解决温饱问题,才能谈生活,对不?
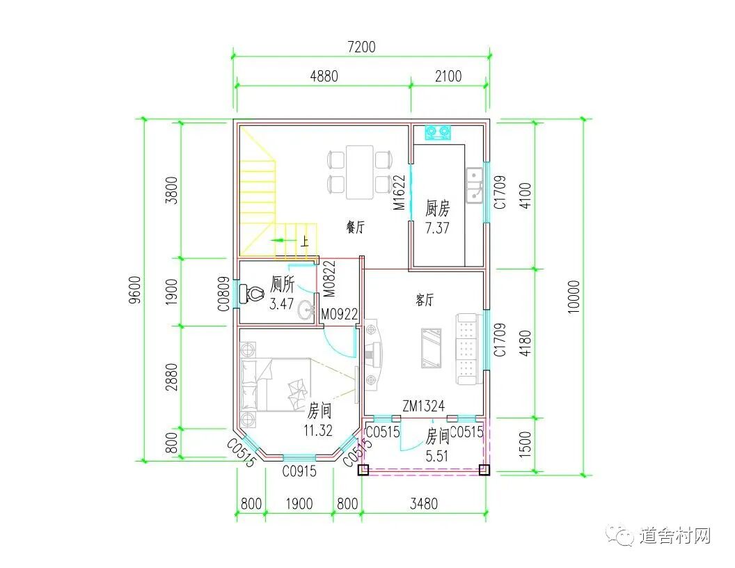
农村自建房三

△实景图

△首层平面图
  欢迎光临一楼,客厅,餐厅、厨房,这里的厨房如果有条件,最好是单独设置一个出入口,这样的话就不至于蔬菜瓜果、鸡鸭鹅从客厅穿插到厨房,影响室内干净卫生,还有一间睡觉觉的地方,疏散楼梯中间位置,保证了其他房间的通风采光,楼梯格局比较大,成全别人,毁灭自己。

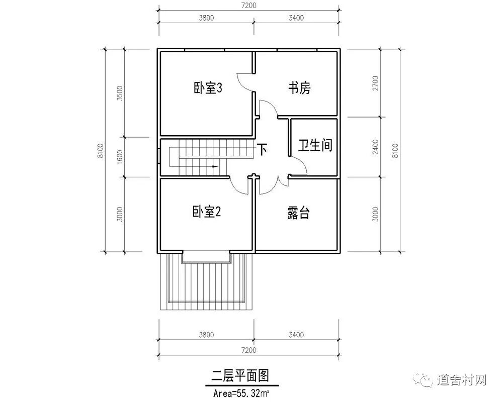
△二层平面图
  上二楼看看,两间睡觉觉的卧室,一间学习的书房,农村教育少不了,当然书房也可以改成卧室,一张床的事情,还带了个露台,很好的偷了下面积,当然这个露台也可以做成卧室,看自己需求,有一个露台的话,外立面造型要丰富些。还留有一间解决新陈代谢问题的卫生间。
开间7200,进深8100,造价14万左右就可以搞定。
农村自建房四

△实景图

△效果图

△一层平面图
  欢迎光临一楼,门廊,客厅,餐厅、厨房,这里的厨房如果有条件,最好是单独设置一个出入口,这样的话就不至于蔬菜瓜果、鸡鸭鹅从客厅穿插到厨房,影响室内干净卫生,还有一间睡觉觉的地方,疏散楼梯西北角布置,保证其他房间通风采光,同时不占位置,不干扰重要交通流线。还留有一间荡气回肠的卫生间,解决新陈代谢问题,有益于身心健康。

△二层平面图
  上二楼看看,二楼基本上都是睡觉觉的卧室,3间卧室,带一间荡气回肠的卫生间,减少尿急去一楼的时间成本,毕竟远水救不了近火,搞裤裆
里了就尴尬了,开间7200,进深9600,造价17万左右就可以搞定。
农村自建房五


△实景图

△效果图

△首层平面图
  欢迎光临一楼,门廊,客厅、茶室兼餐厅、厨房紧紧相拥,抱得一身汗,夏天有点受不了啊,好耶,耶不耶啊?但是呢符合人们生活习惯,厨房设置了个单独出入口,很牛叉,保证了室内干净整洁,南北各一间睡觉觉的卧室,留了间荡气回肠的卫生间,喜欢就点赞,建房来看看。

△二层平面图
  二楼呢北边和东边各一间睡觉觉的卧室,南边一间卧室。二楼也留了间客厅,还带了个阳台,很好的偷了一半面积,也丰富了外立面造型,还可以夏乘凉秋赏月,左手叼根烟,右手82年雪碧,牛叉到掉渣。还留有一间荡气回肠的卫生间。楼梯放在西边,保证其它房间正常通风采光,同时不影响重要的交通流线。

扫码关注      道舍汤亮
(备注来自道舍村网公众号)
到顶部