继续操作前请注册或者登录。

道舍村网科技:9.9乘以13.8 4层农村别野,如何设计



△效果图
这栋4层现代别野亮瞎了我的眼!效果图附上,外观时尚,你知道建造这栋别野只花了多少钱吗?
道舍村网科技案例展示(小部分)



Δ中国湖北汉川夏府别墅项目













Δ中国湖北武汉东西湖四合院项目

Δ加拿大温尼伯mercharts项目

Δ加拿大温尼伯prichard项目


Δ中国浙江桐乡市生态公厕建设项目



Δ中国湖北荆州市鑫利嘉境别墅项目
(篇幅有限,不一一展示了)
农村盖房
上道舍村网
设计施工一站式盖房服务
让您省时、省心、省力、省钱
自建房
别墅
民宿
庄园
设计施工

下单咨询
18171898565
微信扫一扫即可添加汤亮微信
(请您备注来自公众号+来意+城市,谢谢配合)

下单咨询
18171898565
微信扫一扫即可添加汤亮企业微信
(请您备注来自公众号+来意+城市,谢谢配合)

下单咨询
18086036676
(微信同步)
首层大面积绿化,私家车位,尊享荣华,依势而建,造型丰富,大师手笔。二层挑空客厅,增加室内空间层次感,客厅餐厅丢一块,符合人们生活习惯。工人房、洗衣房、储物间、卫生间、厨房设施齐全。天然温泉泡池,泡个澡舒服。喜欢就点赞,建房来看看。

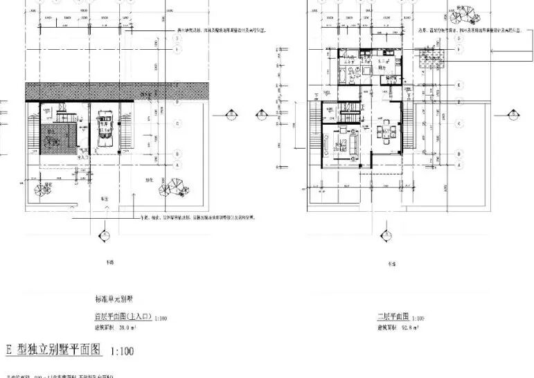
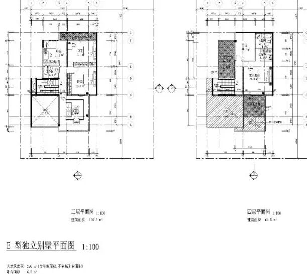
△一、二层平面图
3楼3间卧室加间蹲坑,荡气回肠。生活厅往下俯瞰,飚一句:众爱卿平身。
4楼带超大衣帽间及独立卫生间加私享超大可利用平台的主人套房,烤全猪香喷喷,给我来一杯82年的白开水。既要四肢发达,头脑也要牛叉,书房搞起,加上超大可利用平台,夏乘凉秋赏月,yyds

△三、四层平面图
       
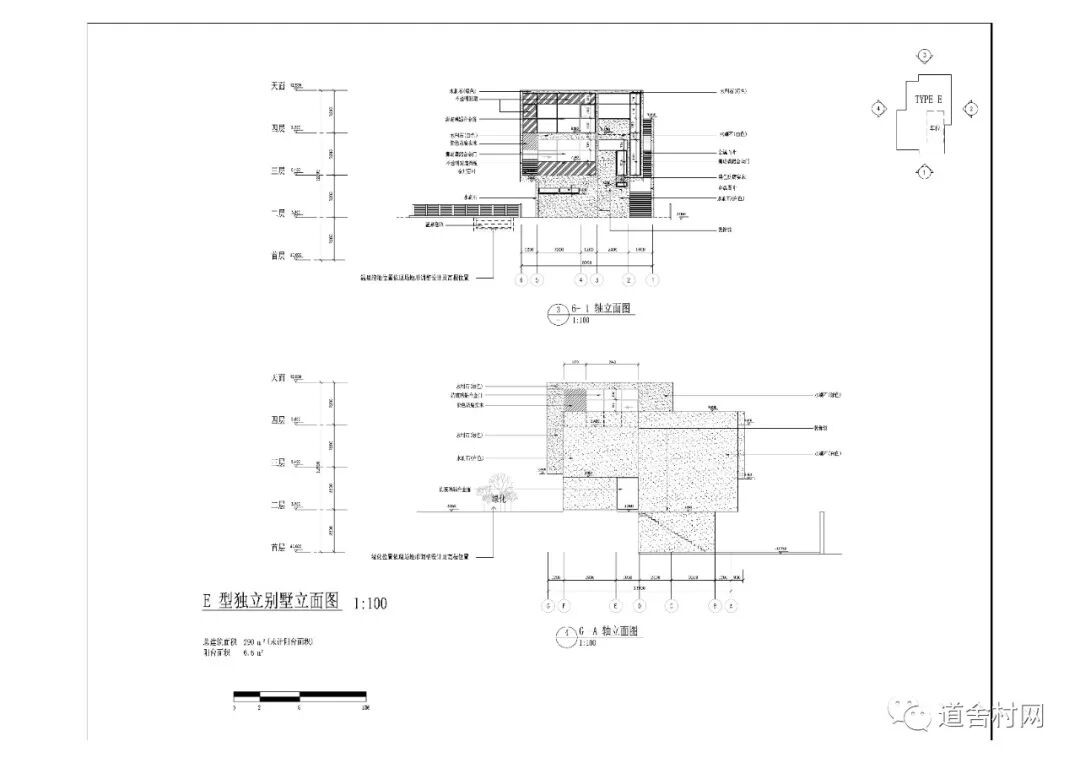
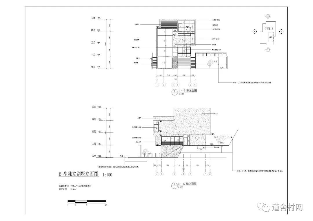
天面图、立面图、剖面图全都有。

△天面图


△立面图

△剖面图
找遍互联网半壁江山,没有比这栋别野更牛叉。
如果你想盖一栋自己的房子
告诉【道舍村网】您的需求
我们将为您提供一站式服务
设计、施工

扫微信公众号,设计有优惠!
商务合作
诚邀
全球范围有实力的
设计师/施工队/建材厂家/家居厂家
与我们合作
合作咨询电话
027-87509668
18171898565

道舍村网创始人微信二维码
合作交流请扫码
(请您备注来自公众号+来意+城市,谢谢配合)

【招募】城市合伙人。一定要做农村!
【入驻】道舍村网诚邀全球优质施工队入驻
【现场勘测】您知道您为何钱花了房子起不好吗?
全套图纸点击这里免费领取
附上汤亮狂拽酷帅吊炸天的照片,请欣赏

↓↓↓点击【阅读原文】进入道舍村网官网

道  舍  村  网
阅读原文
到顶部