道舍村网科技:16.2乘以13.8 3层农村别野,如何设计



△效果图
这间农村别野的套房大到我有点像蚂蚁一样小。你知道这间套房多大吗?
这栋别野,外观时尚,造型方正。
道舍村网科技案例展示(小部分)



Δ中国湖北汉川夏府别墅项目













Δ中国湖北武汉东西湖四合院项目

Δ加拿大温尼伯mercharts项目

Δ加拿大温尼伯prichard项目


Δ中国浙江桐乡市生态公厕建设项目



Δ中国湖北荆州市鑫利嘉境别墅项目
(篇幅有限,不一一展示了)
农村盖房
上道舍村网
设计施工一站式盖房服务
让您省时、省心、省力、省钱
自建房
别墅
民宿
庄园
设计施工

下单咨询
18171898565
微信扫一扫即可添加汤亮微信
(请您备注来自公众号+来意+城市,谢谢配合)

下单咨询
18171898565
微信扫一扫即可添加汤亮企业微信
(请您备注来自公众号+来意+城市,谢谢配合)

下单咨询
18086036676
(微信同步)
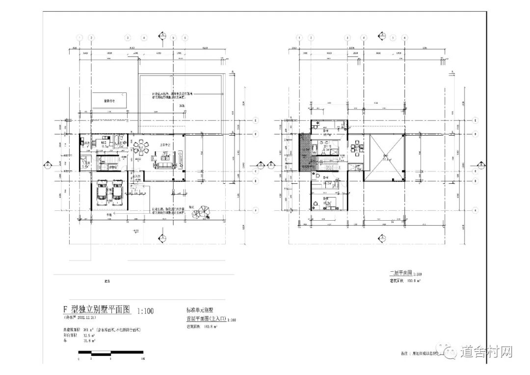
一楼超大挑空客厅,增加室内空间层次感,落地玻璃窗设计,通风,采光都屌爆了,客厅餐厅相连,满足人们日常生活习惯,私家双车位,尊享荣华。楼梯间下方设储藏室,空间不浪费,私房钱可以试试 ,厨房、洗衣房、工人房、卫生间应有尽有。超大泳池和天然温泉泡池,来一杯82年的雪碧,cheers!
二楼3间卧室,其中一间私享超大可利用平台,烤全牛,yyds。卫生间,荡气回肠用。生活厅往下俯瞰,这都是朕为你打下的江山,别往那边看,那边还没有打下来。喜欢就点赞,建房来看看,

△方案一 一、二层平面图
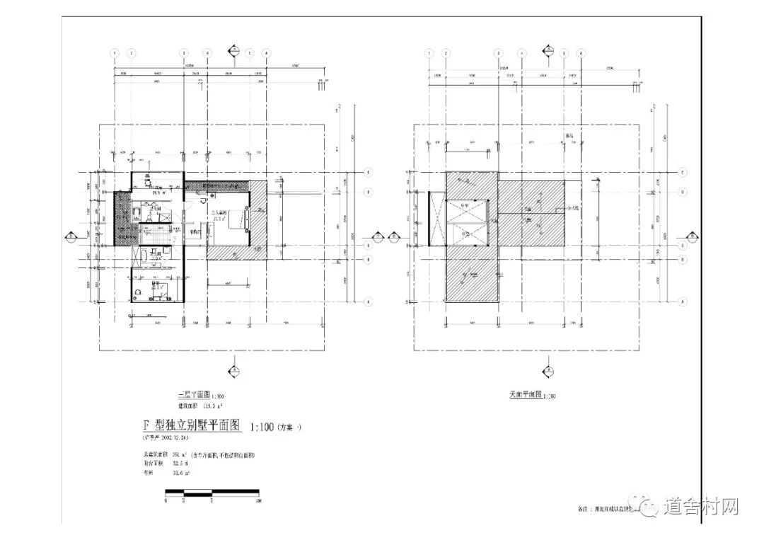
三楼,一间带独立卫生间的卧室加上这个超级超级豪华套房,带超大书房,超大卫生间,超大衣帽间,两个超大可利用平台,你猜下就这套房在一线城市租多少钱?五星级酒店里多少钱一晚上?yyds都形容不了。
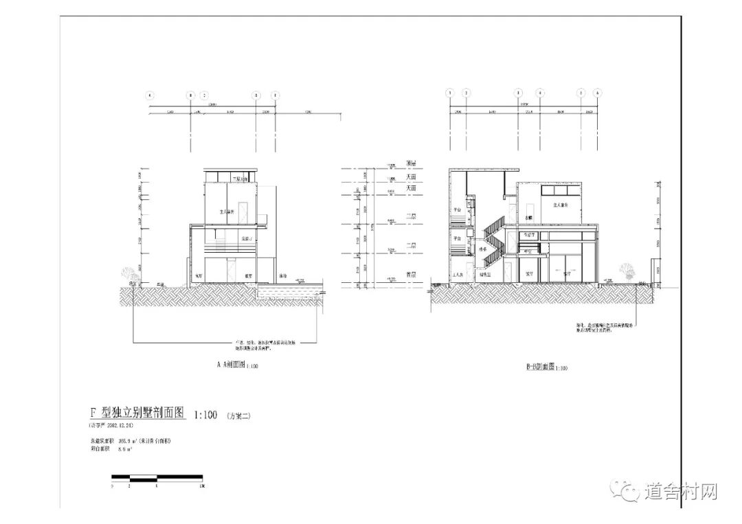
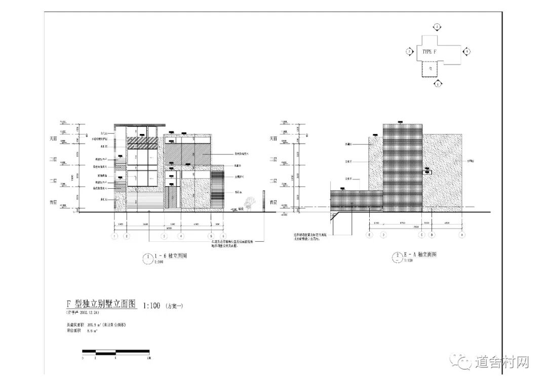
天面、立面、剖面全部都有。还有方案二,就不多介绍了。

△方案一 三层、天面平面图

△方案一 顶层天面平面图


△方案一立面图

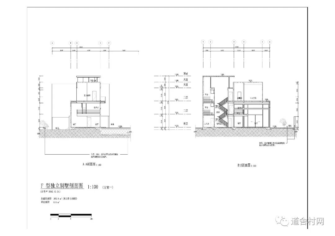
△方案一剖面图

△方案二 二、天面图


△方案二 立面图

△方案二 剖面图
方圆1000公里内,没有哪一家比这家牛叉的。
  
如果你想盖一栋自己的房子
告诉【道舍村网】您的需求
我们将为您提供一站式服务
设计、施工

扫微信公众号,设计有优惠!
商务合作
诚邀
全球范围有实力的
设计师/施工队/建材厂家/家居厂家
与我们合作
合作咨询电话
027-87509668
18171898565

道舍村网创始人微信二维码
合作交流请扫码
(请您备注来自公众号+来意+城市,谢谢配合)

【招募】城市合伙人。一定要做农村!
【入驻】道舍村网诚邀全球优质施工队入驻
【现场勘测】您知道您为何钱花了房子起不好吗?
全套图纸点击这里免费领取
附上汤亮狂拽酷帅吊炸天的照片,请欣赏

↓↓↓点击【阅读原文】进入道舍村网官网

道  舍  村  网
阅读原文
到顶部