道舍村网科技:农村4层别野这样建,100年不过时



△效果图
农村4层别野这样建,100年不过时。开间10.2米,进深9米。这是效果图。
道舍村网科技案例展示(小部分)



Δ中国湖北汉川夏府别墅项目













Δ中国湖北武汉东西湖四合院项目

Δ加拿大温尼伯mercharts项目

Δ加拿大温尼伯prichard项目


Δ中国浙江桐乡市生态公厕建设项目



Δ中国湖北荆州市鑫利嘉境别墅项目
(篇幅有限,不一一展示了)
农村盖房
上道舍村网
设计施工一站式盖房服务
让您省时、省心、省力、省钱
自建房
别墅
民宿
庄园
设计施工

下单咨询
18171898565
微信扫一扫即可添加汤亮微信
(请您备注来自公众号+来意+城市,谢谢配合)

下单咨询
18171898565
微信扫一扫即可添加汤亮企业微信
(请您备注来自公众号+来意+城市,谢谢配合)

下单咨询
18086036676
(微信同步)
一层设有车库、工人房、卫生间、洗衣房,楼梯间平台下方设有储藏间,空间充分利用。

△一、二层平面图
二层挑空客厅,丰富室内空间层次,餐厅、厨房在一块,符合人们生活习惯,超大可利用平台,烤全猪品82年雪碧,yyds。

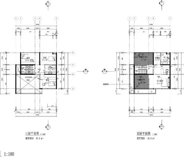
△三、四层平面图
三层3个卧室带一个卫生间,栏杆这里吟诗一首:飞流直下三千尺。
四层一个带超大衣帽间和独立卫生间的主卧室,拥有两个超大可利用平台,住在这4楼卡哇伊。

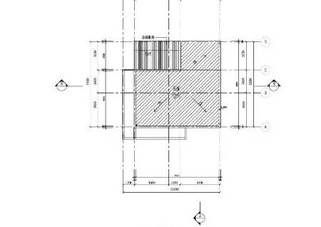
△天面平面图
天面平面图。
立面图。


△立面图
剖面图。

△剖面图
     
方正简约,喜欢就点赞。
   
如果你想盖一栋自己的房子
告诉【道舍村网】您的需求
我们将为您提供一站式服务
设计、施工

扫微信公众号,设计有优惠!
商务合作
诚邀
全球范围有实力的
设计师/施工队/建材厂家/家居厂家
与我们合作
合作咨询电话
027-87509668
18171898565

道舍村网创始人微信二维码
合作交流请扫码
(请您备注来自公众号+来意+城市,谢谢配合)

【招募】城市合伙人。一定要做农村!
【入驻】道舍村网诚邀全球优质施工队入驻
【现场勘测】您知道您为何钱花了房子起不好吗?
全套图纸点击这里免费领取
附上汤亮狂拽酷帅吊炸天的照片,请欣赏

↓↓↓点击【阅读原文】进入道舍村网官网

道  舍  村  网
阅读原文
到顶部