继续操作前请注册或者登录。

道舍村网科技:农村别野,可以现代点,18.6乘以11.7



△效果图
农村想建个现代点的别野,这栋怎么样?比农村常见的简欧风格别野如何?方正造型好建造,主体造价低,这是效果图,外观时尚,布局nice,

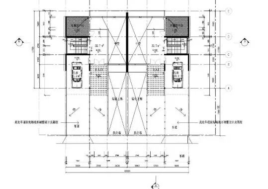
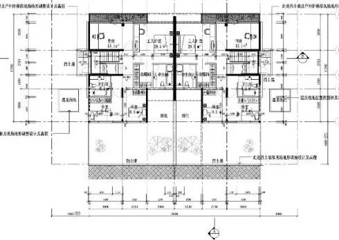
△首层平面图
入户大门设在楼梯平台下方,一楼设有带可利用平台的书房,热爱学习是好事,一间带独立卫生间的卧室,这间卧室惨点,光杆司令。一间带超大衣帽间的主卧室,加上独立卫生间,住宅这样的房子里简直yyds。温泉泡池,高端大气 上档次。
  
道舍村网科技案例展示(小部分)



Δ中国湖北汉川夏府别墅项目













Δ中国湖北武汉东西湖四合院项目

Δ加拿大温尼伯mercharts项目

Δ加拿大温尼伯prichard项目


Δ中国浙江桐乡市生态公厕建设项目



Δ中国湖北荆州市鑫利嘉境别墅项目
(篇幅有限,不一一展示了)
农村盖房
上道舍村网
设计施工一站式盖房服务
让您省时、省心、省力、省钱
自建房
别墅
民宿
庄园
设计施工

下单咨询
18171898565
微信扫一扫即可添加汤亮微信
(请您备注来自公众号+来意+城市,谢谢配合)

下单咨询
18171898565
微信扫一扫即可添加汤亮企业微信
(请您备注来自公众号+来意+城市,谢谢配合)

下单咨询
18086036676
(微信同步)
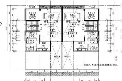
二层客厅餐厅挑空,增加室内空间层次感。客厅餐厅放一块,符合人们的日常生活习惯。厨房、工人房、洗衣房、卫生间。娱乐室。这原本是双拼啊,左右对称的。

△二层平面图
三楼主要是个车库和一个超大可利用平台,可夏乘凉求赏月。这个宅基地地形地势很有特点哈,依势而建,主入口在三楼,从这里俯瞰一二楼,飚一句:这是朕为你打下的江山,哎,别往那边看,那边还没打下来。

△三层平面图
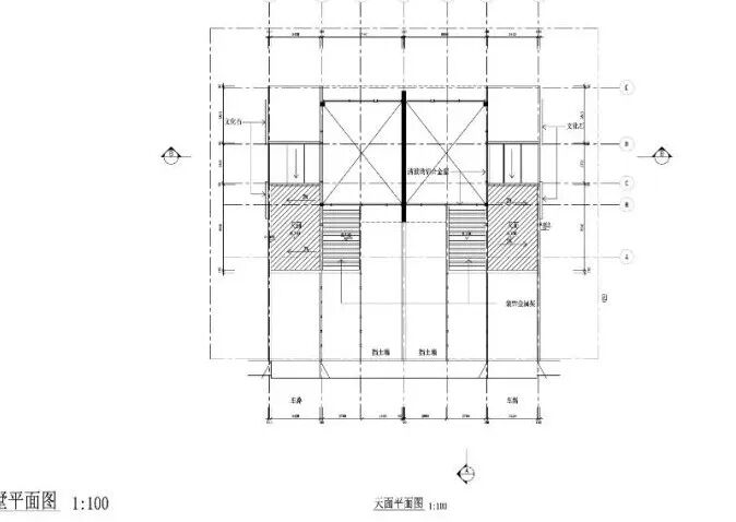
       天面平面图。

△天面平面图

△顶层天面平面图
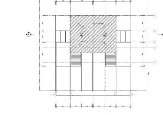
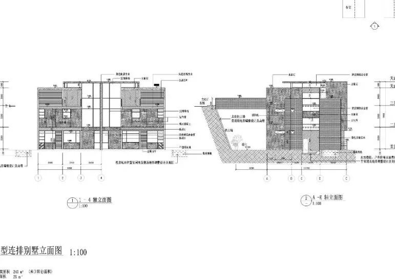
      立面图。


△立面图
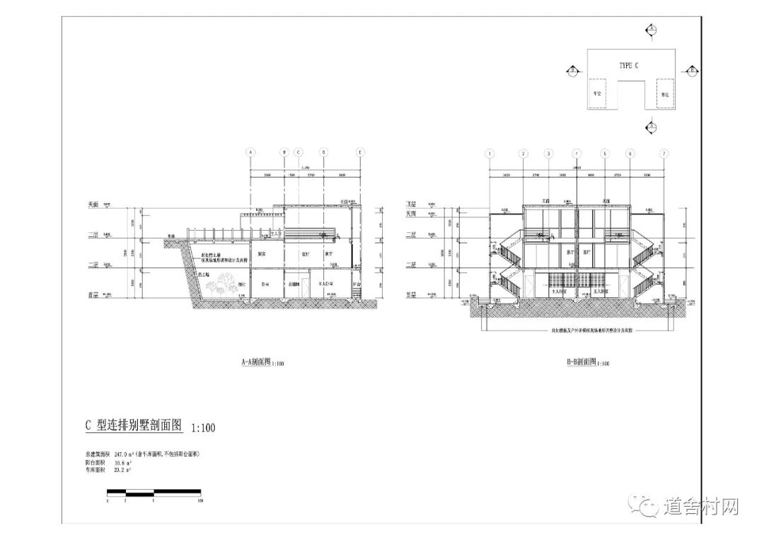
剖面图。

△剖面图
   欢迎关注转发或收藏,下期更精彩。
    
如果你想盖一栋自己的房子
告诉【道舍村网】您的需求
我们将为您提供一站式服务
设计、施工

扫微信公众号,设计有优惠!
商务合作
诚邀
全球范围有实力的
设计师/施工队/建材厂家/家居厂家
与我们合作
合作咨询电话
027-87509668
18171898565

道舍村网创始人微信二维码
合作交流请扫码
(请您备注来自公众号+来意+城市,谢谢配合)

【招募】城市合伙人。一定要做农村!
【入驻】道舍村网诚邀全球优质施工队入驻
【现场勘测】您知道您为何钱花了房子起不好吗?
全套图纸点击这里免费领取
附上汤亮帅帅的照片,请欣赏

↓↓↓点击【阅读原文】进入道舍村网官网

道  舍  村  网
阅读原文
到顶部