道舍村网科技:农村自建房设计图,11.04米乘9.24米,粉丝托我帮他找



△效果图一
这栋农村自建房设计图,开间11.04米,进深9.24米。造价不高25万不到
有个粉丝朋友说他家宅基地面宽11.2米,进深10.5米,要和邻居家对齐,左右两边呢挨着邻居无法自然通风采光,想找一个方正点户型,客厅大点,盖个两层,砖混结构,自己画了个图,怕有问题,问我有没有类似户型推荐,经过一番交流,私人订制的话我们都是收费的的,考虑经济最大化,有合适图肯定最好了,没有再来定制也不迟。我在我们图库里找了一些,拿出来一套跟大家分享交流一下。造价不高,25万左右,我们一起来看看这栋造价25万左右的农村自建房吧。
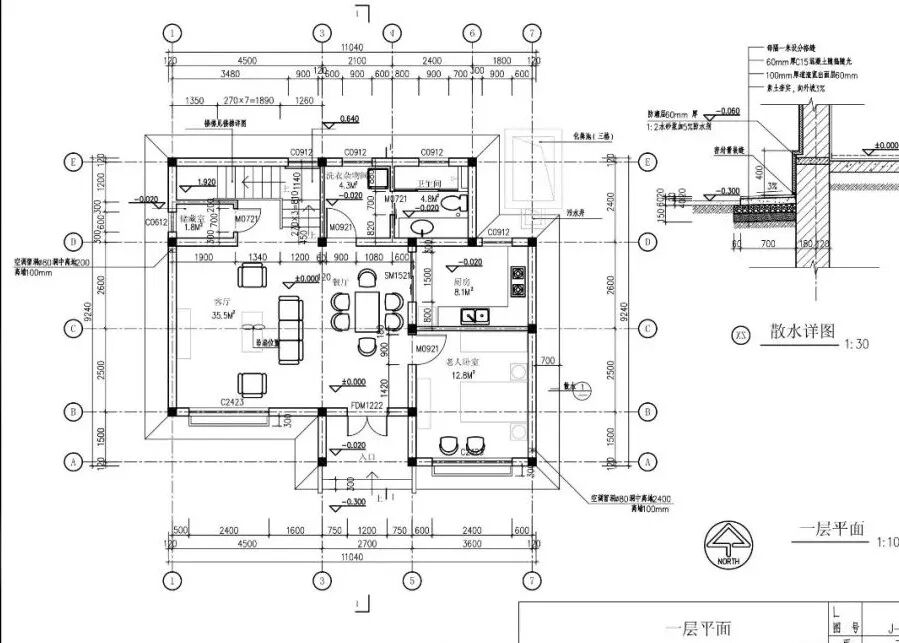
欢迎光临一楼,一室两厅一厨一卫一洗衣杂物间一储藏室。
门廊进来是你家37平客厅餐厅相连,东北角餐厨房一体化,西北角楼梯设在储藏室旁边,宅基地西边有条件可以开窗的,储藏室就可以这样做,没有条件的储藏室可以不要,或者直接储藏室不开窗,还有办法,大家自己去思考?也欢迎评论区见高低。。。我那位粉丝朋友他家宅基地东西都无法自然通风采光,东北角设有一间公共卫生间,正北向设有一间洗衣杂物间,老人卧室朝南,采光充足。

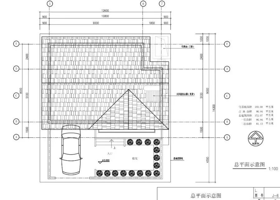
△总平面图

△一层平面图
道舍村网科技案例展示(小部分)



Δ中国湖北汉川夏府别墅项目













Δ中国湖北武汉东西湖四合院项目

Δ加拿大温尼伯mercharts项目

Δ加拿大温尼伯prichard项目


Δ中国浙江桐乡市生态公厕建设项目



Δ中国湖北荆州市鑫利嘉境别墅项目
(篇幅有限,不一一展示了)
农村盖房
上道舍村网
设计施工一站式盖房服务
让您省时、省心、省力、省钱
自建房
别墅
民宿
庄园
设计施工

下单咨询
18171898565
微信扫一扫即可添加汤亮微信
(请您备注来自公众号+来意+城市,谢谢配合)

下单咨询
18171898565
微信扫一扫即可添加汤亮企业微信
(请您备注来自公众号+来意+城市,谢谢配合)

下单咨询
18086036676
(微信同步)
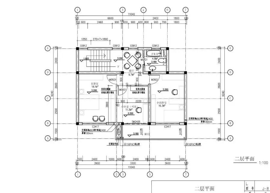
二楼三室一厅一卫一阳台,
其中西南角设有一间主卧室,正南向设有一间小卧室兼做书房带阳台,书房方便孩子阅读学习,。喜欢就点点关注,设计盖房不迷路。
东南角设有一间小孩卧室。东北角设有一间公共卫生间,正北向设有一间敞厅。
这栋农村自建房设计图,是我帮粉丝按照他所提供的的信息在我们建房图库里找的相近的,这是其中一套,25万左右?每栋农村自建房都有自己独特的性格、外观及空间,地理位置、地形特点,历史文脉,气候状况,周边情况,法律规范等等都是有点差异的,最好的房子就是通过私人订制,没有这个条件那就找相似的图。看完你你觉得咋样呢?

△二层平面图
方圆50000公里,造价25万左右经典实用接地气的属这栋农村自建别墅设计图。

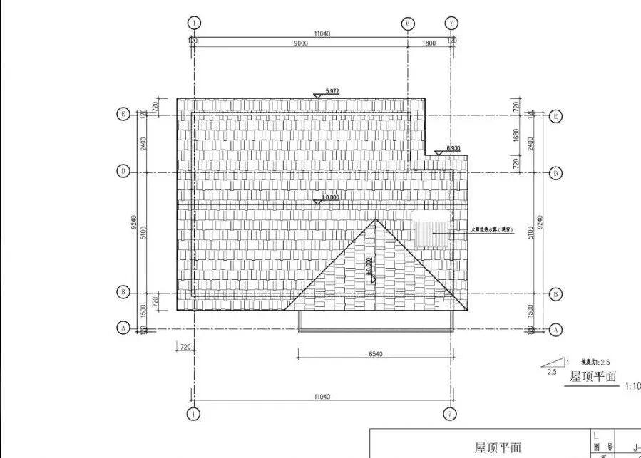
△屋顶层平面图

△效果图二
如果你想盖一栋自己的房子
告诉【道舍村网】您的需求
我们将为您提供一站式服务
设计、施工

扫微信公众号,设计有优惠!
商务合作
诚邀
全球范围有实力的
设计师/施工队/建材厂家/家居厂家
与我们合作
合作咨询电话
027-87509668
18171898565

道舍村网创始人微信二维码
合作交流请扫码
(请您备注来自公众号+来意+城市,谢谢配合)

【招募】城市合伙人。一定要做农村!
【入驻】道舍村网诚邀全球优质施工队入驻
【现场勘测】您知道您为何钱花了房子起不好吗?
全套图纸点击这里免费领取
附上汤亮狂拽酷帅吊炸天的照片,请欣赏

↓↓↓点击【阅读原文】进入道舍村网官网

道  舍  村  网
阅读原文
到顶部