道舍村网科技:农村自建别墅效果图,人人盖得起,造价不到39万



△效果图
这栋农村别墅,造价39万不到。
粉丝说他只有50w,我说39w都不要,我给你推荐一套农村自建别墅设计图,图库在手,盖房不愁。
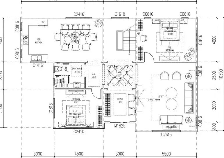
欢迎光临一楼,开间16米,进深10米,两室两厅一厨一卫一玄关。
进门设有挑高玄关,丰富室内空间层次。鞋柜、伞具都可以摆在玄关里头,靠墙可以摆上休闲椅休闲桌,东南角是你家35平大客厅,东北角设有一间卧室,西南角设有一间卧室,西北角餐厨房一体化,正西向设有干湿分离公卫

△首层平面图
道舍村网科技案例展示(小部分)



Δ中国湖北汉川夏府别墅项目













Δ中国湖北武汉东西湖四合院项目

Δ加拿大温尼伯mercharts项目

Δ加拿大温尼伯prichard项目


Δ中国浙江桐乡市生态公厕建设项目



Δ中国湖北荆州市鑫利嘉境别墅项目
(篇幅有限,不一一展示了)
农村盖房
上道舍村网
设计施工一站式盖房服务
让您省时、省心、省力、省钱
自建房
别墅
民宿
庄园
设计施工

下单咨询
18171898565
微信扫一扫即可添加汤亮微信
(请您备注来自公众号+来意+城市,谢谢配合)

下单咨询
18171898565
微信扫一扫即可添加汤亮企业微信
(请您备注来自公众号+来意+城市,谢谢配合)

下单咨询
18086036676
(微信同步)
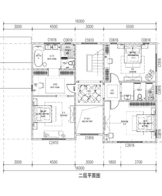
二楼三室两卫。
其中东北角东南角分别设有一间卧室,正东向设有一间干湿分离的公卫,且设在两卧室中间,方便家人使用,西南角设有一间卧室带衣帽间加独立卫生间,,喜欢就点点关注,设计盖房不迷路,

△二层平面图
方圆50000公里,找不到第二栋像这栋让我看得口水直流的一层四合院别墅。
  
如果你想盖一栋自己的房子
告诉【道舍村网】您的需求
我们将为您提供一站式服务
设计、施工

扫微信公众号,设计有优惠!
商务合作
诚邀
全球范围有实力的
设计师/施工队/建材厂家/家居厂家
与我们合作
合作咨询电话
027-87509668
18171898565

道舍村网创始人微信二维码
合作交流请扫码
(请您备注来自公众号+来意+城市,谢谢配合)

【招募】城市合伙人。一定要做农村!
【入驻】道舍村网诚邀全球优质施工队入驻
【现场勘测】您知道您为何钱花了房子起不好吗?
全套图纸点击这里免费领取
附上汤亮狂拽酷帅吊炸天的照片,请欣赏

↓↓↓点击【阅读原文】进入道舍村网官网

道  舍  村  网
阅读原文
到顶部