道舍村网科技:10.7X5.6农村一层自建房,评论区评论“图纸”两字,免费送10套农村自建房施工图


道舍村网科技案例展示(小部分)



Δ中国湖北汉川夏府别墅项目













Δ中国湖北武汉东西湖四合院项目

Δ加拿大温尼伯mercharts项目

Δ加拿大温尼伯prichard项目


Δ中国浙江桐乡市生态公厕建设项目



Δ中国湖北荆州市鑫利嘉境别墅项目
(篇幅有限,不一一展示了)
农村盖房
上道舍村网
设计施工一站式盖房服务
让您省时、省心、省力、省钱
自建房
别墅
民宿
庄园
设计施工

下单咨询
18171898565
微信扫一扫即可添加汤亮微信
(请您备注来自公众号+来意+城市,谢谢配合)

下单咨询
18171898565
微信扫一扫即可添加汤亮企业微信
(请您备注来自公众号+来意+城市,谢谢配合)

下单咨询
18086036676
(微信同步)
       这是效果图,

       今天的图文呢一定要转发,让更多人看到。如果数据不佳,我可能过两天就删了,为什么呢,那证明老铁们不喜欢这种类型的话题,所以不妨先收藏起来。今天给大家分享一套农村自建房图纸,建筑层数一层。开间10.7米,进深5.6米,建筑结构水电施工图都有哈,
       我们来看看建筑施工图功能布局,从大门进来是客厅,餐厅,正对客厅餐厅右手边是厨房和卧室,正对客厅餐厅左手边是卫生间和卧室,

        结构形式是砖混结构。这是屋顶层平面图,
       这是立面图和剖面图,

      这是卫生间平面详图,厨房平面详图和门窗详图,

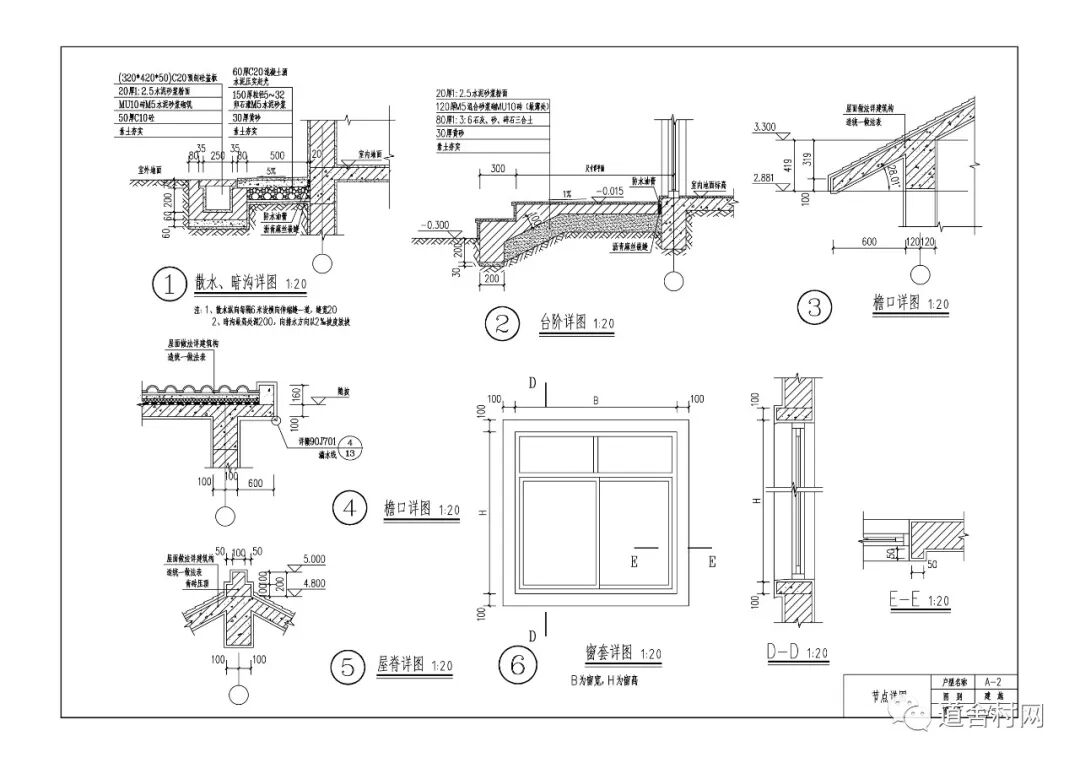
      这是散水、暗沟详图,台阶详图,檐口详图,屋脊详图和窗套详图,

       三大材料用量预算:       砖:49立方       混凝土:28立方       钢筋:2.9吨       参考造价9w左右
       我们的施工图免费送,请在评论区评论图纸两字,
如果你想盖一栋自己的房子
告诉【道舍村网】您的需求
我们将为您提供一站式服务
设计、施工

扫微信公众号,设计有优惠!
商务合作
诚邀
全球范围有实力的
设计师/施工队/建材厂家/家居厂家
与我们合作
合作咨询电话
027-87509668
18171898565

道舍村网创始人微信二维码
合作交流请扫码
(请您备注来自公众号+来意+城市,谢谢配合)

【招募】城市合伙人。一定要做农村!
【入驻】道舍村网诚邀全球优质施工队入驻
【现场勘测】您知道您为何钱花了房子起不好吗?
全套图纸点击这里免费领取
附上汤亮帅帅的照片,请欣赏

↓↓↓点击【阅读原文】进入道舍村网官网

道  舍  村  网
阅读原文
到顶部