道舍村网科技:29.1X27.9农村二层仿古四合院,评论区评论“图纸”两字,免费送10套农村自建房施工图


这是效果图。

△效果图
道舍村网科技案例展示(小部分)



Δ中国湖北汉川夏府别墅项目













Δ中国湖北武汉东西湖四合院项目

Δ加拿大温尼伯mercharts项目

Δ加拿大温尼伯prichard项目


Δ中国浙江桐乡市生态公厕建设项目



Δ中国湖北荆州市鑫利嘉境别墅项目
(篇幅有限,不一一展示了)
农村盖房
上道舍村网
设计施工一站式盖房服务
让您省时、省心、省力、省钱
自建房
别墅
民宿
庄园
设计施工

下单咨询
18171898565
微信扫一扫即可添加汤亮微信
(请您备注来自公众号+来意+城市,谢谢配合)

下单咨询
18171898565
微信扫一扫即可添加汤亮企业微信
(请您备注来自公众号+来意+城市,谢谢配合)

下单咨询
18086036676
(微信同步)
    
      今天的图文呢一定要转发,让更多人看到。耐心看到最后有彩蛋哦。在工作在加班在喝酒在陪老婆孩子的,不妨先收藏起来,空闲时间在好好看看,因为这就是你未来的四合院,要相信自己。
       今天给大家分享一套农村二层仿古四合院,开间29.1米,进深27.9米,建筑图都有哈,我们来看看建筑图功能布局,先看首层功能布局。

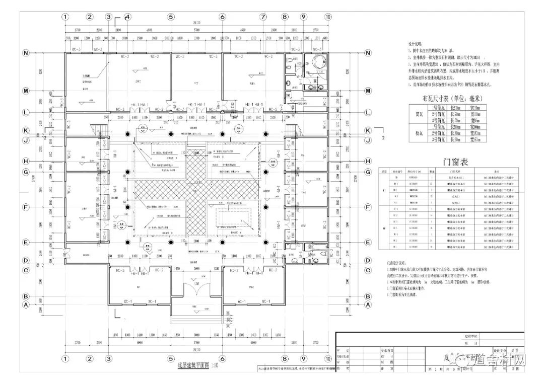
△首层平面图
       从垂花门进来是廊子,廊子西边通向花园,东边是洗手间、卫生间。南边是餐厅和健身房。在往北走是中庭,中庭西边设有大餐厅和厨房,东边设有娱乐厅、工人房和琴房。东西各设有一部疏散楼梯。中庭再往北走是中堂,中堂西边设有会客厅和茶艺厅,中堂东边设有大卧室,带独立洗手间、卫生间、浴室以及衣帽间。
       

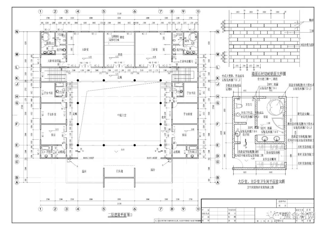
△二层平面图及大卧室、主卧室卫生间平面放大图
我们再来看看二层平面图,门口龛西边是露台,东边露台,中庭上空西边设有客房,带独立衣帽间和卫生间,子女卧室。带独立卫生间的子女书房,中庭上空北边是带独立卫生间、浴室、洗手间、衣帽间的大卧室,住在里面绝对的yyds,中庭上空北边是带佛堂的书房,然后就是带衣帽间、浴室、卫生间及洗手间的主卧室,像这种房间城里出租2000每个月。中庭上空东边是带衣帽间及卫生间的客房、子女卧室和带独立卫生间的子女书房。     
        这是屋面层平面图和AB曲线网格放样图。

△屋面层平面图和AB曲线网格放样图
      这是1-10、10-1轴线建筑立面图。子女卧室卫生间平面放大图,客房卫生间平面放大图和一楼公共卫生间平面放大图

△1-10、10-1轴线建筑立面图。子女卧室卫生间平面放大图,客房卫生间平面放大图和一楼公共卫生间平面放大图
    这是A-N、N-A轴线建筑立面图、花园入口侧门大样图和1-1断面图

△A-N、N-A轴线建筑立面图、花园入口侧门大样图和1-1断面图
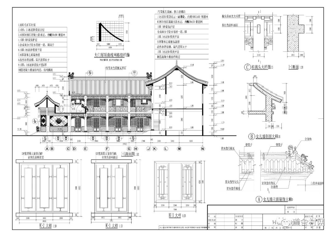
这是1-1剖面图、大门屋顶曲线网格放样图、柱挑头大样图、1-1断面图、女儿墙剖面大样、WC-2大样、WC-3大样、HC-3大样、女儿墙剖面大样和女儿墙立面装饰大样。

△1-1剖面图、大门屋顶曲线网格放样图、柱挑头大样图、1-1断面图、女儿墙剖面大样、WC-2大样、WC-3大样、HC-3大样、女儿墙剖面大样和女儿墙立面装饰大样
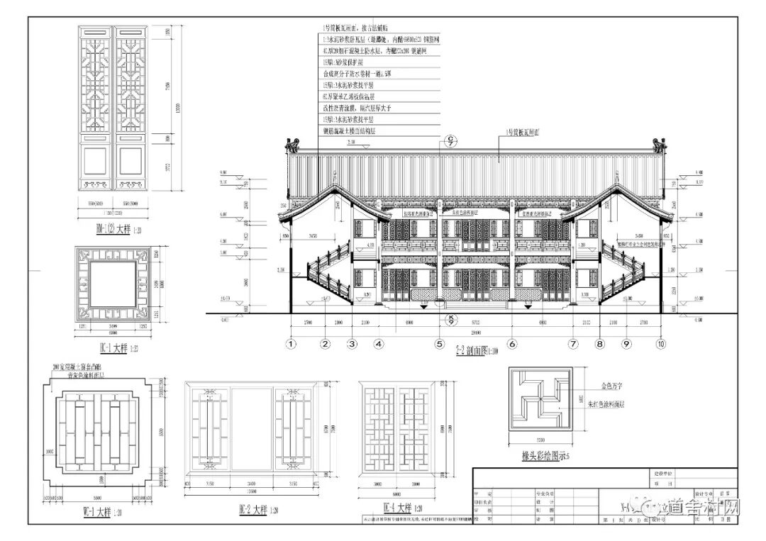
这是2-2剖面图、HM-1(2)大样、HC-1大样、WC-1大样、HC-2大样、HC-4大样和椽头彩绘图示。

△2-2剖面图、HM-1(2)大样、HC-1大样、WC-1大样、HC-2大样、HC-4大样和椽头彩绘图示
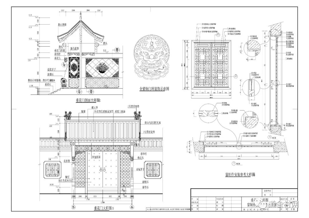
这是垂花门大样图、垂花门剖面大样图、窗制作安装参考大样图

△垂花门大样图、垂花门剖面大样图、窗制作安装参考大样图
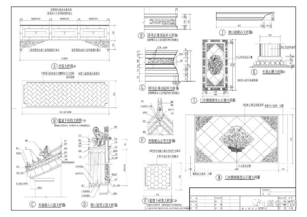
这是挂落大样图、槛墙下砖饰大样图一、外墙硬山山面大样图、硬山屋顶立面大样图、300高台基须弥座大样图、600高台基须弥座大样图、外墙硬山山脊大样图、槛墙下砖饰大样图二、檐口挑檐石大样图、门外侧墙棋盘心石雕大样图、门内侧墙棋盘心石雕大样图、柱础石雕大样图。


挂落大样图、槛墙下砖饰大样图一、外墙硬山山面大样图、硬山屋顶立面大样图、300高台基须弥座大样图、600高台基须弥座大样图、外墙硬山山脊大样图、槛墙下砖饰大样图二、檐口挑檐石大样图、门外侧墙棋盘心石雕大样图、门内侧墙棋盘心石雕大样图、柱础石雕大样图

    我们的施工图免费送,请在评论区评论图纸两字,
如果你想盖一栋自己的房子
告诉【道舍村网】您的需求
我们将为您提供一站式服务
设计、施工

扫微信公众号,设计有优惠!
商务合作
诚邀
全球范围有实力的
设计师/施工队/建材厂家/家居厂家
与我们合作
合作咨询电话
027-87509668
18171898565

道舍村网创始人微信二维码
合作交流请扫码
(请您备注来自公众号+来意+城市,谢谢配合)

【招募】城市合伙人。一定要做农村!
【入驻】道舍村网诚邀全球优质施工队入驻
【现场勘测】您知道您为何钱花了房子起不好吗?
全套图纸点击这里免费领取
附上汤亮帅帅的照片,请欣赏

↓↓↓点击【阅读原文】进入道舍村网官网

道  舍  村  网
阅读原文
到顶部