道舍村网科技:21.3X26.2 一层小型四合院,评论区评论“图纸”两字,免费送10套农村自建房施工图


这是效果图。

△效果图
道舍村网科技案例展示(小部分)



Δ中国湖北汉川夏府别墅项目













Δ中国湖北武汉东西湖四合院项目

Δ加拿大温尼伯mercharts项目

Δ加拿大温尼伯prichard项目


Δ中国浙江桐乡市生态公厕建设项目



Δ中国湖北荆州市鑫利嘉境别墅项目
(篇幅有限,不一一展示了)
农村盖房
上道舍村网
设计施工一站式盖房服务
让您省时、省心、省力、省钱
自建房
别墅
民宿
庄园
设计施工

下单咨询
18171898565
微信扫一扫即可添加汤亮微信
(请您备注来自公众号+来意+城市,谢谢配合)

下单咨询
18171898565
微信扫一扫即可添加汤亮企业微信
(请您备注来自公众号+来意+城市,谢谢配合)

下单咨询
18086036676
(微信同步)
    
       今天的图文呢一定要转发,让更多人看到。耐心看到最后有彩蛋。在工作在加班在陪老婆孩子的,不妨先收藏起来。空闲时间在好好看看。今天给大家分享一套21.3X26.2 一层小型四合院,评论区评论“图纸”两字,免费送10套农村自建房施工图,建筑施工图都有哈,
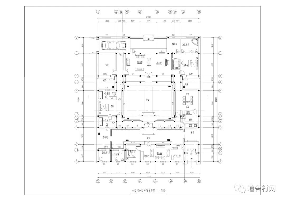
       我们来看看建筑施工图功能布局,从门洞进来是影壁。左拐是前院,前院南边是工人房、会客室、客房、卫生间、洗衣房、杂物院。
       前院往北边走,进入廊子,廊子西边是卫生间,东边是厨房。
       廊子再直行往北边走就进入了内院,内院再往北是起居室。内院和起居室西边设有客卧、卫生间、庭院、书房、车库。内院和起居室东边设有餐厅、庭院、主卧室、卫生间和储藏间。

△小型四合院平面布置图   
 
        这是1-A8立面图和1-1剖面图,

△1-A8立面图和1-1剖面图
      这是西立面图和2-2剖面图,

    △西立面图和2-2剖面图
     
       我们的施工图免费送,请在评论区评论图纸两字,
如果你想盖一栋自己的房子
告诉【道舍村网】您的需求
我们将为您提供一站式服务
设计、施工

扫微信公众号,设计有优惠!
商务合作
诚邀
全球范围有实力的
设计师/施工队/建材厂家/家居厂家
与我们合作
合作咨询电话
027-87509668
18171898565

道舍村网创始人微信二维码
合作交流请扫码
(请您备注来自公众号+来意+城市,谢谢配合)

【招募】城市合伙人。一定要做农村!
【入驻】道舍村网诚邀全球优质施工队入驻
【现场勘测】您知道您为何钱花了房子起不好吗?
全套图纸点击这里免费领取
附上汤亮帅帅的照片,请欣赏

↓↓↓点击【阅读原文】进入道舍村网官网

道  舍  村  网
阅读原文
到顶部