继续操作前请注册或者登录。

道舍村网科技:18X13.5标准型四合院CAD建筑图和效果图片,评论区评论“图纸”两字,免费送10套农村自建房施工图


这是效果图。


△效果图
道舍村网科技案例展示(小部分)



Δ中国湖北汉川夏府别墅项目













Δ中国湖北武汉东西湖四合院项目

Δ加拿大温尼伯mercharts项目

Δ加拿大温尼伯prichard项目


Δ中国浙江桐乡市生态公厕建设项目



Δ中国湖北荆州市鑫利嘉境别墅项目
(篇幅有限,不一一展示了)
农村盖房
上道舍村网
设计施工一站式盖房服务
让您省时、省心、省力、省钱
自建房
别墅
民宿
庄园
设计施工

下单咨询
18171898565
微信扫一扫即可添加汤亮微信
(请您备注来自公众号+来意+城市,谢谢配合)

下单咨询
18171898565
微信扫一扫即可添加汤亮企业微信
(请您备注来自公众号+来意+城市,谢谢配合)

下单咨询
18086036676
(微信同步)
      今天的图文呢一定要转发,让更多人看到。耐心看到最后有彩蛋,在工作在加班在陪老婆孩子的,不妨先收藏起来,空闲时间再好好看看。
今天给大家分享一套标准型四合院,建筑层数一层。开间18米,进深13.5米,建筑图都有哈,
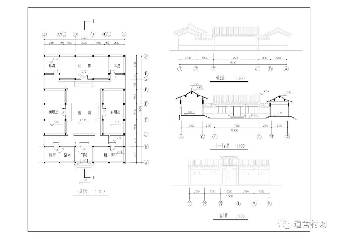
      这是平立剖面,我们来看看建筑图功能布局,

△平立剖
       从门洞进来是庭院和正房,正对庭院和正房左手边是耳房、西厢房、厕所和浴室。正对正房 庭院右手边是耳房、东厢房和厨房。这是很标准的四合院了,有条件的可以搞一套,住起来还是很yyds的。

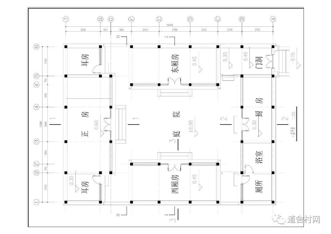
△平面图
这张平面图是把门洞换了个位置,把门洞放到东南向了,紫气东来也不错。    

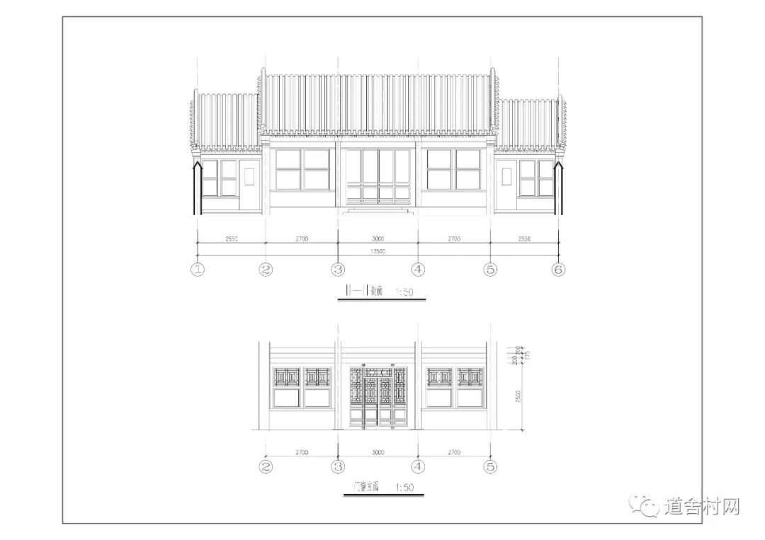
△入口立面和剖面
这是入口立面和剖面。 
   

△剖面和门窗立面
这是剖面和门窗立面。



△剖面
这些是剖面。由于四合院的细节还是有些复杂的,所以它的剖面比较多点。

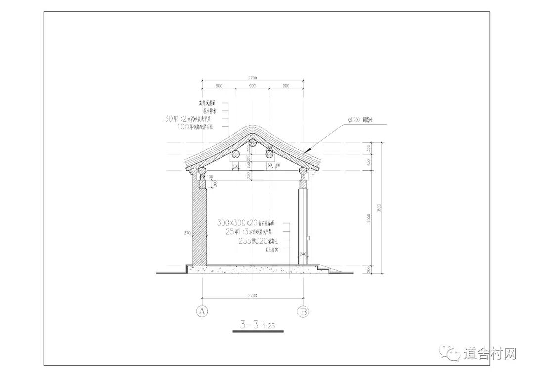
△檐口立面 檐口剖面 屋脊立面和屋脊剖面
这是檐口立面 和檐口剖面 、屋脊立面和屋脊剖面。’
   
我们的施工图免费送,请在评论区评论图纸两字,
如果你想盖一栋自己的房子
告诉【道舍村网】您的需求
我们将为您提供一站式服务
设计、施工

扫微信公众号,设计有优惠!
商务合作
诚邀
全球范围有实力的
设计师/施工队/建材厂家/家居厂家
与我们合作
合作咨询电话
027-87509668
18171898565

道舍村网创始人微信二维码
合作交流请扫码
(请您备注来自公众号+来意+城市,谢谢配合)

【招募】城市合伙人。一定要做农村!
【入驻】道舍村网诚邀全球优质施工队入驻
【现场勘测】您知道您为何钱花了房子起不好吗?
全套图纸点击这里免费领取
附上汤亮帅帅的照片,请欣赏

↓↓↓点击【阅读原文】进入道舍村网官网

道  舍  村  网
阅读原文
到顶部