继续操作前请注册或者登录。

道舍村网科技:3款农村自建房布局设计推荐,最后一款20万不到,自建别墅可参考


这3套自建房户型设计,性价比高尤其最后一款3层20万不到,,农村自建别墅可以参考。
有粉丝朋友在评论区留言,想看三层农村自建房,还有的说一层的住不了,


那么今天汤亮拿出三套跟大家分享交流一下。家里人口多的,可以考虑。人口少的也看看,反正造价都不高,户型实用接地气,我们一起来看看
第一套。开间12.5米,进深13.7米。

△效果图
欢迎光临一楼,两室两厅一厨两卫一院子。入户设有40平院子。在农村光有个房子搞毛线,还得有个院子,南边超大的庭院景观,闲时喝茶赏花,生活惬意。可夏乘凉秋赏月。东南角餐厨房隔断,院子进来是你家大堂客厅,大堂以东设有一间卧室带独立卫生间,西北角设有一间干湿分离的公共卫生间,东北角设有一间卧室。

△首层平面图
二楼三室一厅三卫一阳台一露台,其中西北角设有一间公共卫生间,西南角设有一间卧室带独立卫生间加阳台,阳台可夏乘凉秋赏月,正南向是你家二楼客厅共用西南角阳台,东北角设有一间卧室,正东向设有一间卧室带超大露台,露台可夏乘凉秋赏月,屌的呀。

△二层平面图
三楼很简单了,西北角,东北角分别设有一间杂物间,正南向设有一个超大露台,夏乘凉秋赏月晒晒被子,yyds。参考造价47万左右。

△三层平面图
农村盖房
上道舍村网
设计施工一站式盖房服务
让您省时、省心、省力、省钱
自建房
别墅
民宿
庄园
设计施工

下单咨询
18171898565
微信扫一扫即可添加汤亮企业微信
(请您备注来自公众号+来意+城市,谢谢配合)
第二套,开间12.9,进深11.4米,

△效果图一
欢迎光临一楼,三室一厅一大堂一卫,他这个厨房餐厅是单独做的哈,这个在农村很常见,我农村老家也是这样的,入口做了个门廊,门廊进来是你家超大大堂,有点昆明飞机场候机厅的感觉,这个你家办喜事摆宴席就方便了,家庭宴会厅,屌的呀,西北角是你家客厅,正西向设有一间公共卫生间,西北角设有一间卧室,东北角、东南角分别设有一间卧室,

△首层平面图
二楼,四室一厅一卫两露台。其中西北角设有一间卧室,西南角设有一间卧室带露台,露台可夏乘凉秋赏月,正西向设有一间干湿分离的公共卫生间,且设在两卧室中间,方便家人使用,东北角设有一间卧室,东南角设有一间卧室带露台。北边是你家二楼休息厅。

△二层平面图
三楼,三室一厅一卫一露台,其中西北角设有一间卧室,西南角设有一间卧室带超大露台,正西向设有一间公共卫生间,东北角设有一间卧室,北边是你家三楼休息厅,南边露台是共用的,点点关注,设计盖房不迷路。可夏乘凉秋赏月晒晒被子,屌的呀。

△三层平面图
当然这套农村自建房还设置了闷顶层,我就不讲了。

△闷顶层平面图
参考造价,40万左右。

△效果图二

△效果图三

△效果图四
第三套,开间8.8米,进深8米。户型比较方正,

△效果图
欢迎光临一楼,两厅一厨一卫一门廊一储藏间,,入口设有门廊,入户是你家堂屋,这个农村人应该都知道,没有堂屋的农村自建房是没有灵魂的,也是餐厅的功能,堂屋以西是你家客厅,东北家是你家厨房,带单独出入口,干净又卫生,东北角楼梯设在储藏间旁边,正西向设有一间干湿分离的公共卫生间。

△首层平面图
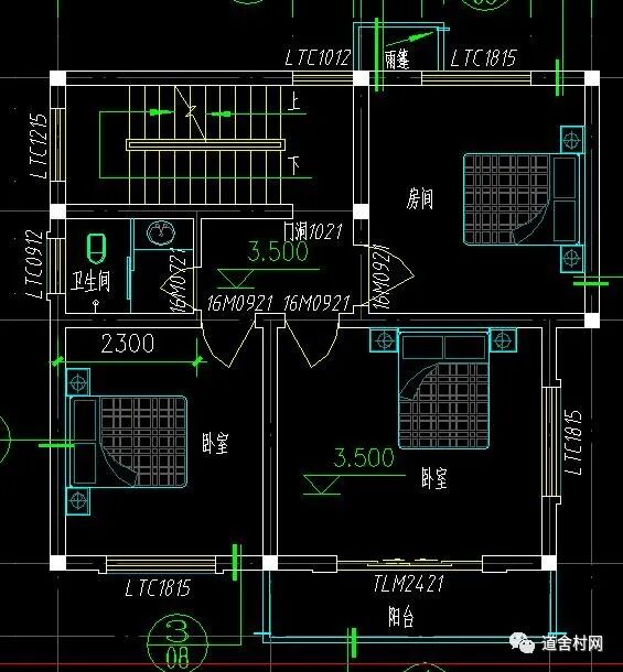
二楼。三室一卫一阳台,其中西南角、东北角分别设有一间卧室。东南角设有一间卧室,带阳台,阳台可夏乘凉秋赏月。

△二层平面图
三楼,三楼跟二楼一样的布局,我就不多讲了。

△三层平面图
造价20万左右。
这3套农村自建别墅,看完你你觉得咋样呢?造价都不高,户型也不赖,性价比高。实用接地气,有粉丝问到,所以必须安排到位。
方圆50000公里,性价比高,户型经典接地气的属这3栋农村三层自建房设计图。
如果你想盖一栋自己的房子
告诉【道舍村网】您的需求
我们将为您提供一站式服务
设计、施工

扫微信公众号,设计有优惠!
商务合作
诚邀
全球范围有实力的
设计师/施工队/建材厂家/家居厂家
与我们合作
合作咨询电话
027-87509668
18171898565

道舍村网创始人微信二维码
合作交流请扫码
(请您备注来自公众号+来意+城市,谢谢配合)

【招募】城市合伙人。一定要做农村!
【入驻】道舍村网诚邀全球优质施工队入驻
【现场勘测】您知道您为何钱花了房子起不好吗?
全套图纸点击这里免费领取
到顶部