道舍村网科技:农村一层自建房效果图,户型采光通风好,造价低自建养老房可参考


这套农村自建房一层设计图纸,户型自然通风采光好,,户型实用造价低,农村自建养老房可以参考。

△效果图
既然粉丝朋友们大多数比较青睐农村自建房一层设计图纸,那汤亮就多发点这方面的相关视频。如果你家宅基地相似可以借鉴。


当然也有粉丝朋友找我私人订制的,私人订制的话,那感觉又是一个档次了。
毕竟是付费了的嘛,付费才是服务的开始,对吧?这是人之常情,人情世故,当然如果说我推荐的图纸你能直接用那最好,改改也能用也可以。我汤亮做人做事,我分享我的,总有人认可我,总有人不认可我,对不对,我做不到人人认可,喜欢就点赞,建房来看看。你认可我,我当然会多关注你一点。我们一起来看看
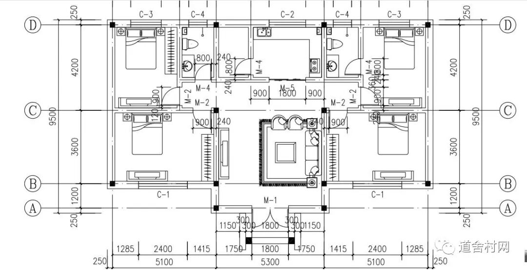
我们先来看看这套农村自建房一层设计图纸。开间16米,进深9.5米。四室两厅一厨两卫一门廊。这是一个欧式农村一层自建房。入户设有门廊,并设有三步台阶,入户进来是你家客厅,客厅以北餐厨房隔断,西北角、西南角分别设有一间卧室,西北角卧室以东设有一间公共卫生间,东南角、东北角分别设有一间卧室,东北角卧室以西设有一间公共卫生间。

△平面图
户型很简单哈,没有那么复杂。每个房间都能够自然通风采光。三大材料用量预算:砖:58立方,点点关注,设计盖房不迷路。混凝土:42立方,钢筋:3.5吨。参考造价15万左右。
农村盖房
上道舍村网
设计施工一站式盖房服务
让您省时、省心、省力、省钱
自建房
别墅
民宿
庄园
设计施工

下单咨询
18171898565
微信扫一扫即可添加汤亮企业微信
(请您备注来自公众号+来意+城市,谢谢配合)
这套农村一层自建房,看完你你觉得咋样呢?造价低户型却能自然通风采光。户型都可以改,图纸是死的,人是活的,随便改。欧式风格不喜欢也可以改,改成现代、中式都没问题。随便改,每个人的喜好不同,根据自己喜好来即可。有粉丝朋友问一层农村自建房 多点,所以必须安排到位。私人订制也必须安排到位。
方圆50000公里,造价不高户型自然通风采光好,农村养老房首选属农村一层自建房。
如果你想盖一栋自己的房子
告诉【道舍村网】您的需求
我们将为您提供一站式服务
设计、施工

扫微信公众号,设计有优惠!
商务合作
诚邀
全球范围有实力的
设计师/施工队/建材厂家/家居厂家
与我们合作
合作咨询电话
027-87509668
18171898565

道舍村网创始人微信二维码
合作交流请扫码
(请您备注来自公众号+来意+城市,谢谢配合)

【招募】城市合伙人。一定要做农村!
【入驻】道舍村网诚邀全球优质施工队入驻
【现场勘测】您知道您为何钱花了房子起不好吗?
全套图纸点击这里免费领取
到顶部