道舍村网科技:3款农村一层自建房设计图,户型实用乞丐能盖,自建养老房首选


这3套农村自建房一层设计图纸,造价都不高,乞丐也盖得起。户型实用,农村自建养老房首选,
最近还是有些粉丝朋友在评论区互动有没有农村一层自建房设计图。开来我还得出农村自建房一层设计图纸相关视频,意味着我又要不洗澡了,。好吧,拿出三套跟大家分享交流一下。我们一起来看看

第一套两室两厅一厨一卫带院子。开间10.7米,进深5.6米。

△第一套效果图
入户进来是你家客厅,北边餐厨房隔断,西南角、东南角分别设有一间卧室,西北角设有一间干湿分离的公共卫生间。三大材料用量预算:砖:49立方,混凝土:28立方,钢筋:2.9吨。参考造价9万左右。

△第一套平面图
农村盖房
上道舍村网
设计施工一站式盖房服务
让您省时、省心、省力、省钱
自建房
别墅
民宿
庄园
设计施工

下单咨询
18171898565
微信扫一扫即可添加汤亮企业微信
(请您备注来自公众号+来意+城市,谢谢配合)
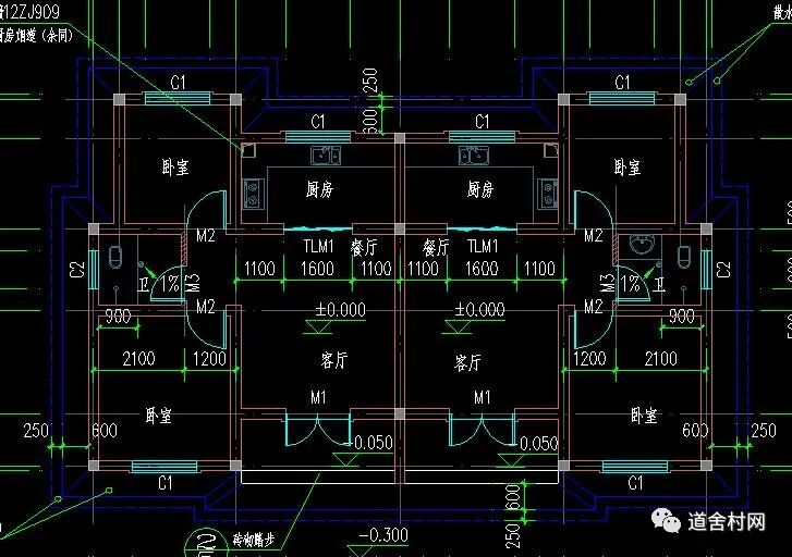
第二套是个一层双拼,如果是家里有两兄弟或者两姐妹可以这样自建别墅,如果是一个家庭自建别墅,那么就盖一半就可以了,开间13.4,进深7.6米,也是两室两厅一厨一卫。

△第二套效果图一
入户是1米的半封闭式门廊,很好的把室内与室外过度,家人可以在这里锻炼乘凉,喜欢就点赞,建房来看看。观赏家乡美景,还可以摆放一些盆景,摆上小椅子晒太阳,生活惬意自由。门廊进来是你家客厅,北边餐厨房隔断,西北角、西南角分别设有一间卧室,正西向设有一间卫生间,且设在两卧室中间,方便家人使用,

△第二套平面图
三大材料用量预算:砖:52立方,混凝土:40立方,钢筋:4.2吨,参考造价12万左右。只盖一半的话,参考造价6万左右。

△第二套效果图二
第三套也是个双拼,跟第二套功能布局差不多,只是说外立面造型不同而已,这就是汤亮经常跟大家讲效果图都可以改,不一定要这样做的原因了,哪怕功能布局一模一样的两套农村自建房,外立面也可以作出很多不同版本。开间14.44米,进深8.74米。

△第三套效果图
还是跟第二套一样,入口往北边退进去1.2米做了一个半封闭式门廊,点点关注,设计盖房不迷路。很好的把室内与室外过度,家人可以在这里锻炼乘凉,观赏家乡美景,还可以摆放一些盆景,摆上小椅子晒太阳,生活惬意自由。
门廊进来是你家客厅,北边餐厨房隔断,西北角、西南角分别设有一间卧室,正西向设有一间卫生间,且设在两卧室中间,方便家人使用,东边对称的哈,这里就不多啰嗦了。三大材料用量预算:

△第三套平面图
砖:42立方, 混凝土:38立方,钢筋:3.7吨,参考造价14万左右。做一半的话,7万不到。
这3套农村一层自建房设计图,看完你你觉得咋样呢?造价都不高,乞丐也盖得起。户型都可以改,图纸是死的,人是活的,随便改。有粉丝问到,所以必须安排到位。
方圆50000公里,造价都不高,自建养老房首选的属这3栋农村一层自建房。
如果你想盖一栋自己的房子
告诉【道舍村网】您的需求
我们将为您提供一站式服务
设计、施工

扫微信公众号,设计有优惠!
商务合作
诚邀
全球范围有实力的
设计师/施工队/建材厂家/家居厂家
与我们合作
合作咨询电话
027-87509668
18171898565

道舍村网创始人微信二维码
合作交流请扫码
(请您备注来自公众号+来意+城市,谢谢配合)

【招募】城市合伙人。一定要做农村!
【入驻】道舍村网诚邀全球优质施工队入驻
【现场勘测】您知道您为何钱花了房子起不好吗?
全套图纸点击这里免费领取
到顶部